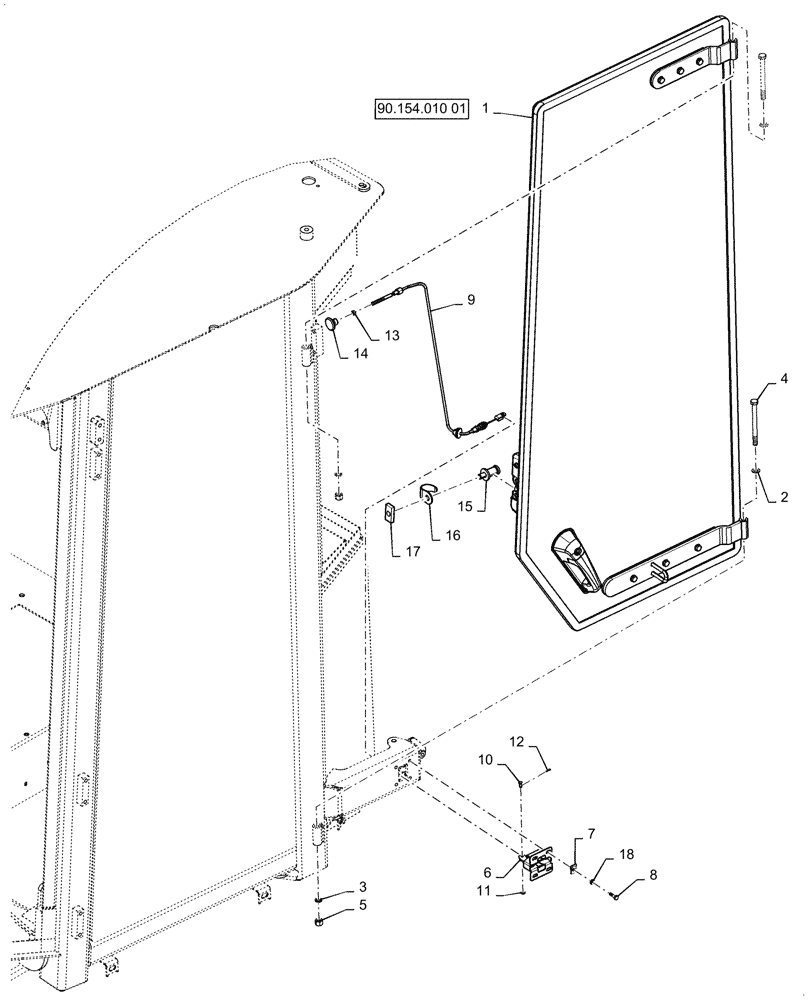
Запчасти Case 821G (90.154.010) - LEFT DOOR INSTALLATION (90) - PLATFORM, CAB, BODYWORK AND DECALS

Схема запчастей Case 821G - (90.154.010) - LEFT DOOR INSTALLATION (90) - PLATFORM, CAB, BODYWORK AND DECALS
90.154.010 01
3
14
8
16
10
4
11
6
15
1
18
7
13
5
2
12
9
17
FIT
1:1
100%

Артикул

Название

Примечание

Количество

1

47505666

DOOR

Left Door Assembly

1шт.

2

F64046

WASHER,9.91mm ID x 19.05mm OD x 0.76mm Thk

Thrust

2шт.

3

86547919

WASHER,10.3mm ID x 16.1mm OD x 2.1mm Thk

2шт.

4

827-10120

BOLT,Hex, M10 x 1.5 x 120mm, Cl 10.9

2шт.

5

832-10410

NUT,M10 x 1.5, Cl 8

2шт.

6

4227178

LOCK

Latch Door Block

1шт.

7

833-40306

SPRING NUT,M6, U

4шт.

8

614-6020

BOLT,Hex, M6 x 1 x 20mm, Cl 8.8, Full Thd

4шт.

9

47760980

CABLE

Door Release

1шт.

10

71485274

PIN,5mm OD x 13mm L

Door Latch

1шт.

11

895-11005

WASHER,5.5mm ID x 10mm OD x 1mm Thk

1шт.

12

732-1610

COTTER PIN,M1.6 x 10

1шт.

13

829-1406

NUT,Hex, M6 x 1, Cl 10.9

1шт.

14

76303157

KNOB

M6

1шт.

15

321277A1

PIN,17.2mm OD x 52mm L

Lock

1шт.

16

321535A1

PROTECTOR

Door Striker

1шт.

17

275444A1

PLATE

Door Latch Pin

1шт.

18

895-11006

WASHER,6.6mm ID x 12mm OD x 1.6mm Thk

4шт.

Выбрано товаров: 18