Запчасти Case W12 (054) - CHASSIS ELECTRICAL W/HEAVY DUTY ALTERNATOR, (HEAVY DUTY 60 (04) - ELECTRICAL SYSTEMS

Схема запчастей Case W12 - (054) - CHASSIS ELECTRICAL W/HEAVY DUTY ALTERNATOR, (HEAVY DUTY 60 (04) - ELECTRICAL SYSTEMS
FIT
1:1
100%

Артикул

Название

Примечание

Количество

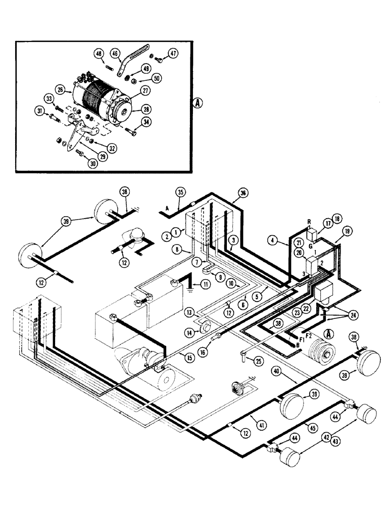
1

A18428

SOCKET ASSY. - chassis wiring R.H., Includes: Ref. 2 - 8

1шт.

2

A13777

BLOCK - socket wiring

1шт.

3

NSS

NOT SOLD SEPARAT

WIRE - socket to conv. temp. unit (Black 65")

1шт.

4

NSS

NOT SOLD SEPARAT

WIRE - socket to indic. relay "R" term. (Black 91")

1шт.

5

NSS

NOT SOLD SEPARAT

WIRE - socket to eng. temp. unit (White 133")

1шт.

6

NSS

NOT SOLD SEPARAT

WIRE - socket to fuel sender (White 80")

1шт.

7

NSS

NOT SOLD SEPARAT

WIRE - socket to stop lite swt. (Red 43")

1шт.

8

NSS

NOT SOLD SEPARAT

WIRE - socket to battery post. term. (Red 47")

1шт.

9

A12491

SWITCH

ASSY - brake, stop light

1шт.

10

A14754

WIRE - stop swt. to stop light (White 111")

1шт.

11

A27069

CABLE

-, Serial Range: battery-ground

1шт.

12

A27213

CONNECTOR - two wire

4шт.

13

A13793

WIRE - fuel sender to connector (White 10")

1шт.

14

A15997

SENDER UNIT

UNIT ASSY. - fuel sender

1шт.

15

A18427

WIRE - starter sol. to field relay "2" term. (Red. 39")

1шт.

16

A13795

SENDER UNIT

UNIT ASSY. - sending, converter temperature

1шт.

17

A18432

RELAY ASSY. - indicator lamp

1шт.

18

173-95

SCREW,Sl Rnd Hd, #10 - 24 x 3/8"

- mach., #10-24 x 3/8" rd. hd.

2шт.

19

A18434

WIRE - ind. relay "G" term. to altern. (Red 62")

1шт.

20

L11509

RELAY

ASSY. - field (Replaces A18431)

1шт.

21

13-46

BOLT,Hex, 1/4" - 20 x 3/8", Gr 5, Full Thd

- hex. hd., 1/4" x 3/8" N.C.

2шт.

22

A55703

REGULATOR

ASSY. - voltage (Replaces A18430)

1шт.

23

13-414

BOLT,Hex, 1/4" - 20 x 7/8", Gr 5, Full Thd

3шт.

24

A56185

PLUG ASSY. - wiring, regulator

1шт.

25

A21462

SENDER UNIT

UNIT ASSY. - sending, engine temp. (Replaces A13796)

1шт.

26

A18417

ALTERNATOR ASSY. - generator (Repairs, figure 64)

1шт.

27

A18424

FAN - alternator pulley

1шт.

28

A18423

PULLEY - drive, alternator

1шт.

29

A18418

BRACKET

- alternator mounting

1шт.

30

14-1236

BOLT,Hex, 3/4" - 16 x 2-1/4", Gr 5, Full Thd

- hex. hd. 3/4 x 2-1/2" N.F.

1шт.

31

A7442

BOLT - shoulder, bracket mounting

1шт.

32

25-1110

NUT,5/8"-18, G5

- hex., 5/8" N.F.

1шт.

33

14-728

BOLT,Hex, 7/16" - 20 x 1-3/4", Gr 5

- hex. hd., 7/16" x 1-3/4" N.F.

1шт.

34

14-720

BOLT,Hex, 7/16" - 20 x 1-1/4", Gr 5, Full Thd

- hex. hd., 7/16" x 1-1/4" N.F.

1шт.

35

A11945

WIRE - ign. switch "A" term. to conn. (Black 12")

1шт.

36

A8212

WIRE - conn. to field relay "3" term. (Black 80-1/2")

1шт.

37

A18429

WIRE - field relay "2" term. to altern. "B" term. (Red 50")

1шт.

38

A15941

ELECTRICAL WIRE

WIRE - front & rear lamp to ground (Black 5")

2шт.

39

A15932

X

LAMP ASSY. - front and rear (Repairs, figure 68)

4шт.

40

A16367

ELECTRICAL WIRE

WIRE - cross, rear lamp to lamp (Black 20")

1шт.

41

A15948

ELECTRICAL WIRE

WIRE - left rear lamp to conn. (Black 46")

1шт.

42

L11000

INTERIOR LIGHT

LIGHT ASSY. - stop & tail (Repairs, figure 68)

2шт.

43

A16734

X

LIGHT ASSYL. - stop & tail (Order L11000) (Rep., figure 68)

2шт.

44

A8210

CONNECTOR, ELEC

CONNECTOR - three wire

2шт.

45

A13252

ELECTRICAL WIRE

WIRE - cross, stop light to stop light (Black 18")

1шт.

46

A18425

STRAP - adjusting, alternator

1шт.

47

13-614

BOLT,Hex, 3/8" - 16 x 7/8", Gr 5, Full Thd

1шт.

48

A7391

STUD

- adj. to water pump

1шт.

49

193-46

LOCK WASHER,Ext-Int Tooth, 3/8"

WASHER - lock, 3/8" int.-ext. Shakeproof

1шт.

50

25-116

NUT,Hex, 3/8"-24, G5

- hex., 3/8" N.F.

1шт.

Выбрано товаров: 50