Запчасти Case W20 (218) - FRONT FRAME AND FENDERS (09) - CHASSIS

Схема запчастей Case W20 - (218) - FRONT FRAME AND FENDERS (09) - CHASSIS
FIT
1:1
100%

Артикул

Название

Примечание

Количество

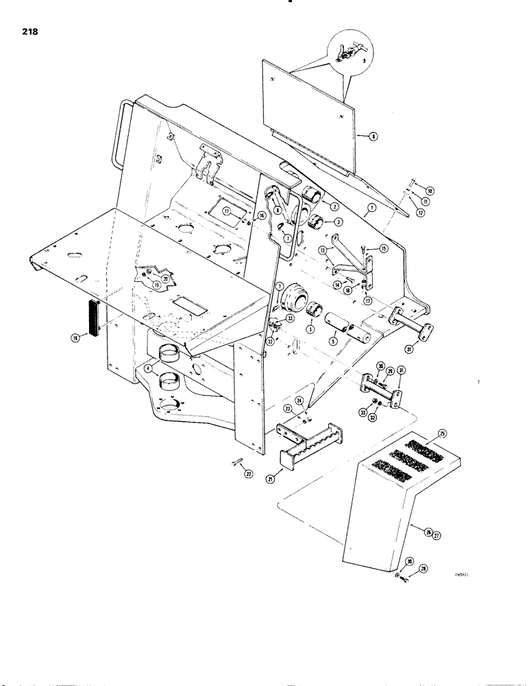
L76762

FRONT FRAME ASSEMBLY - articulated loader, Includes: Ref. 1 - 7

1шт.

1

NSS

NOT SOLD SEPARAT

FRAME ASSEMBLY - articulated loader

1шт.

2

L47305

BUSHING

- tilt cylinder pivot

2шт.

3

L47306

BUSHING,76.45mm ID x 88.14mm OD x 57.15mm L

- lift cylinder and lift frame pivot

4шт.

4

L17466

BUSHING,100.05mm ID x 112.82mm OD x 37.4mm L

- frame pivot

2шт.

5

L47564

SHAFT

- pivot, lift cylinder

1шт.

6

219-55

LUBE NIPPLE,90 Degree Elbow, 1/8" - 27 NPTF

NIPPLE, LUBE, , Tilt cylinder pivot 90º, 1/8" NPT x .84" lg

2шт.

7

219-36

LUBE NIPPLE,45 Degree Elbow, 1/8" - 27 NPTF

FITTING - grease, 45 degree (1/8" NPT) Lift cylinder and lift frame pivot

4шт.

8

L48440

COVER

- front frame

1шт.

9

L48438

HANDLE

ASSEMBLY - front cover

2шт.

10

13-624

BOLT,Hex, 3/8" - 16 x 1-1/2", Gr 5

HHCS - 3/8" - 16 NC x 1-1/2"

4шт.

11

92-6

LOCK WASHER,3/8"

4шт.

12

95-6

WASHER,3/8"

- standard wrot () 3/8"

4шт.

13

L47787

SUPPORT

BRACKET - light mounting

4шт.

14

13-624

BOLT,Hex, 3/8" - 16 x 1-1/2", Gr 5

HHCS - 3/8" - 16 NC x 1-1/2" (Bracket to front frame)

4шт.

15

13-620

BOLT,Hex, 3/8" - 16 x 1-1/4", Gr 5, Full Thd

(Bracket to bracket) Hex, 3/8"-16 x 1 1/4", G5, Full Thd

2шт.

16

92-6

LOCK WASHER,3/8"

6шт.

17

25-106

NUT,3/8"-16, G5

- hex. (3/8" - 16 NC)

6шт.

18

L47997

ELASTIC STOP

STOP - front to rear frame

2шт.

19

92-6

LOCK WASHER,3/8"

4шт.

20

25-106

NUT,3/8"-16, G5

- hex. (3/8" - 16 NC)

4шт.

21

L58286

STEP

- operator's compartment access

6шт.

22

13-832

BOLT,Hex, 1/2" - 13 x 2", Gr 5

12шт.

23

92-8

LOCK WASHER,1/2"

12шт.

24

25-108

NUT,1/2"-13, G5

- hex. (1/2" - 13 NC)

12шт.

25

A55582

PAD

- no slip

6шт.

26

L48237

FENDER

- front, R.H.

1шт.

27

L48238

FENDER

- front, L.H. (Not shown)

1шт.

28

13-620

BOLT,Hex, 3/8" - 16 x 1-1/4", Gr 5, Full Thd

(Fender to support) Hex, 3/8"-16 x 1 1/4", G5, Full Thd

8шт.

29

13-624

BOLT,Hex, 3/8" - 16 x 1-1/2", Gr 5

HHCS - 3/8" - 16 NC x 1-1/2" (Support to front frame)

8шт.

30

95-6

WASHER,3/8"

- standard wrot () 3/8"

16шт.

31

L74731

SUPPORT

- front fender

4шт.

32

92-6

LOCK WASHER,3/8"

16шт.

33

25-106

NUT,3/8"-16, G5

- hex. (3/8" - 16 NC)

16шт.

Выбрано товаров: 34