Запчасти Case W20 (056) - ELECTRICAL SYSTEM, FRONT HARNESS AND INSTRUMENT PANELS (04) - ELECTRICAL SYSTEMS

Схема запчастей Case W20 - (056) - ELECTRICAL SYSTEM, FRONT HARNESS AND INSTRUMENT PANELS (04) - ELECTRICAL SYSTEMS
FIT
1:1
100%

Артикул

Название

Примечание

Количество

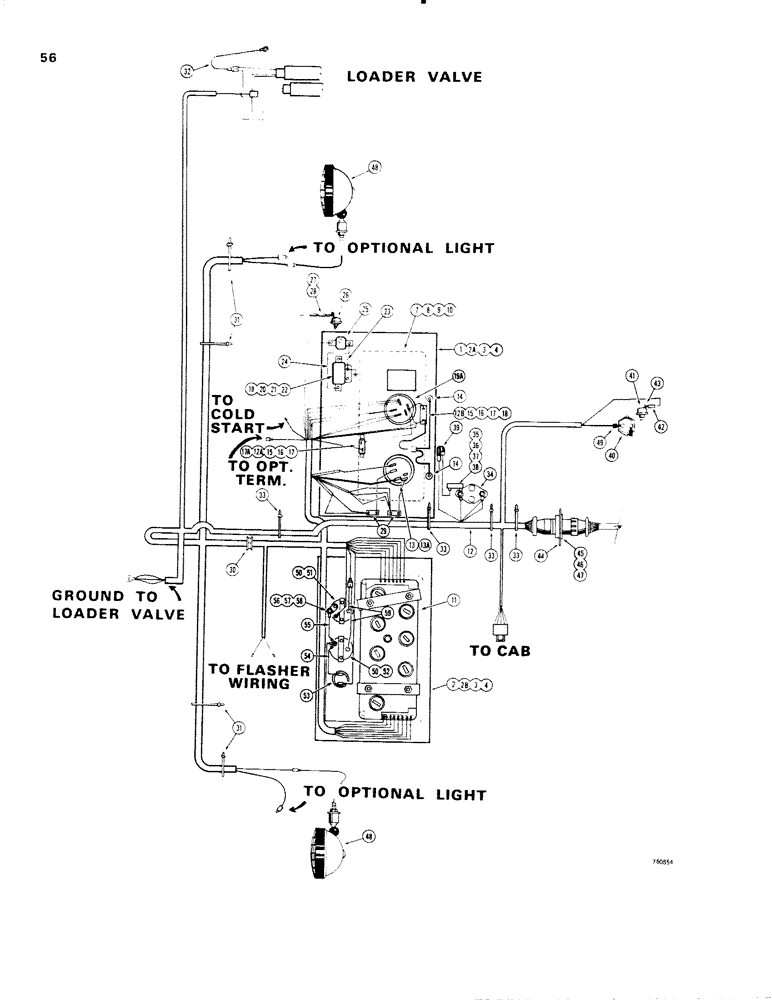
1

L72547

PANEL - instrument, R.H.

1шт.

2

L76632

PANEL - instrument, L.H.

1шт.

2a

L57916

STRIP

- filler, instrument panel and frame (R.H.)

1шт.

2b

L57917

STRIP

- filler, instrument panel and frame (L.H.)

1шт.

3

77-412

SCREW

- truss head (1/4" - 20 NC x 3/4")

8шт.

4

131-630

SPRING NUT,Tinn, U, 1/4"-20

- clip

8шт.

7

L55774

PANEL

- instrument mounting, R.H.

1шт.

8

164-215

HEX SOC SCREW,#6 - 32 x 3/4", SST

SCREW - flat head hex. socket (#6 - 32 NC x 3/4") Stainless

4шт.

9

192-15

LOCK WASHER,Helical Spring, #6, 0.145" ID, CST, ZND

Washer, Lock, #6

4шт.

10

129-15

NUT,#6-32

4шт.

11

L55650

CLUSTER

- instrument panel, L.H. (Parts list figure 66)

1шт.

12

L76629

HARNESS - front, electrical, Includes: Ref. 12A and 12B

1шт.

12a

L59799

RESISTOR

- 15 ohm

1шт.

12b

L57178

RESISTOR

- front harness, 15 ohm

1шт.

13

L55655

SWITCH

- ignition, Includes: Ref. 13A

1шт.

13a

D36822

KEY

S - ignition (Set of two)

1шт.

14

L55568

INTERIOR LIGHT

LIGHT - instrument panel, parts list figure 70

2шт.

15

171-61

SCREW,Sl Flat Hd, #6 - 32 x 1/2"

- flat head (#6 - 23 NC x 1/2")

2шт.

16

192-15

LOCK WASHER,Helical Spring, #6, 0.145" ID, CST, ZND

Washer, Lock, #6

2шт.

17

129-15

NUT,#6-32

2шт.

17a

L73526

CLAMP

- resistor

1шт.

18

L73415

CLAMP

- resistor

1шт.

18a

L55654

SWITCH

- light

1шт.

19

L15056

BUZZER

- warning, air pressure

1шт.

20

73-48

SCREW,Slotted Flat Hd, 1/4"-20 x 1/2"

- flat head (1/4" - 20 NC x 1/2")

2шт.

21

192-19

LOCK WASHER,Helical Spring, 0.256" ID, CST, ZND

WASHER, LOCK, 1/4"

2шт.

22

7770

NUT,Hex, 1/4 - 20, Cl 5

1/4"-20, G5

2шт.

23

A31060

ELECTRICAL WIRE

WIRE -, Serial Range: buzzer-ground

1шт.

24

A18457

ELECTRICAL WIRE

WIRE -, Serial Range: buzzer-switch

1шт.

25

L48480

SWITCH

- air pressure

1шт.

26

L57937

SWITCH

- air parking brake

1шт.

27

L58497

RESISTOR

- air brake switch (40 ohm)

1шт.

28

L58511

TERMINAL CONNECTOR

TERMINAL - resistor to wire harness

1шт.

29

L59970

BREAKER

- circuit, 5 Amp

2шт.

30

L53783

GROMMET,1 1/4" ID x 2 3/8" Groove Dia, Str Cut

- split

1шт.

31

L11541

CABLE TIE,203.2mm L, Nylon

STRAP - tie

1шт.

32

L50380

ELECTRICAL WIRE

WIRE - ground, valve to tractor frame

1шт.

33

L18331

CABLE TIE,375.9mm L, Nylon, Black

STRAP - tie

4шт.

34

L48128

VALVE

SWITCH - stop light (Double check valve)

1шт.

35

L58697

RESISTOR

- stop light switch

1шт.

36

173-274

SCREW,Sl Rnd Hd, #8 - 32 x 1/2"

- round head (#8 - 2 NC x 1/2")

1шт.

37

195-10

WASHER,#8

1шт.

38

129-6

NUT,#8-32

1шт.

39

L11760

DIODE

- stoplight switch protecting

1шт.

40

L57855

SWITCH

- neutral start

1шт.

41

L71751

PRESSURE SWITCH

SWITCH - clutch, pressure

1шт.

42

L58497

RESISTOR

- switch protecting, 40 ohm

1шт.

43

L58511

TERMINAL CONNECTOR

TERMINAL - resistor

1шт.

44

L76630

BRACKET - harness

1шт.

45

173-203

SCREW,Sl Rnd Hd, #6 - 32 x 1/2"

- round head (#6 - 32 NC x 1/2")

4шт.

46

192-15

LOCK WASHER,Helical Spring, #6, 0.145" ID, CST, ZND

Washer, Lock, #6

4шт.

47

129-15

NUT,#6-32

4шт.

48

L71729

LAMP

- flood (Parts list figure 70)

2шт.

49

L59682

TERMINAL CONNECTOR

TERMINAL - straight

1шт.

50

B50213

BULB

- #53

2шт.

51

L76563

GAUGE

- oil pressure

1шт.

52

L76562

GAUGE

- voltmeter

1шт.

53

L47161

LAMP BASE

LAMP - warning

1шт.

54

L76685

WIRE

1шт.

55

L72107

WIRE

1шт.

56

A19349

RESISTOR

- 75 ohm

1шт.

57

129-27

NUT,Hex, #10 - 32

- hex., #10 - 24 NC

2шт.

58

92-3

LOCK WASHER,#10

WASHER, LOCK, #10

1шт.

59

L76565

SOCKET - lamp, includes wire

2шт.

Выбрано товаров: 64