Запчасти Case TY45 (ET03 D01.0) - GRAB DIPPERSTICK - 1,20 M (3 10") (14) - DIPPERSTICKS

Схема запчастей Case TY45 - (ET03 D01.0) - GRAB DIPPERSTICK - 1,20 M (3 10") (14) - DIPPERSTICKS
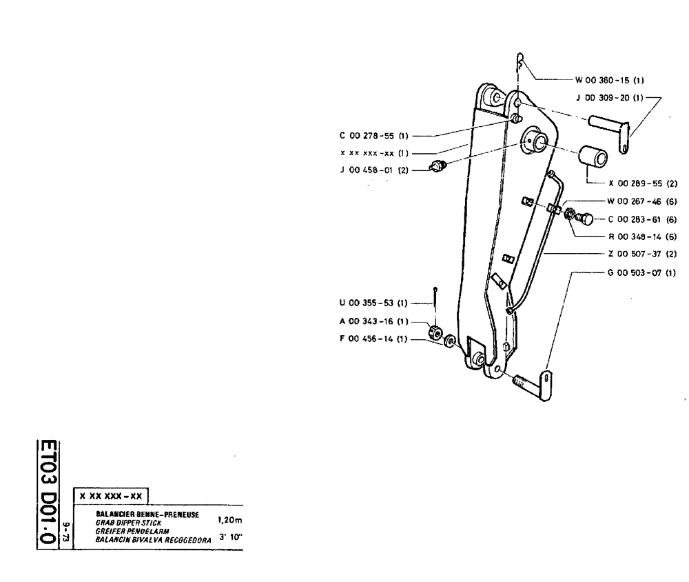
c00283-61
f00456-14
z00507-37
w00360-15
x00289-55
g00503-07
c00278-55
j00309-20
j00458-01
a00343-16
r00348-14
w00267-46
u00355-53
FIT
1:1
100%

Артикул

Название

Примечание

Количество

c00278-55

C27855

SHAFT LOCK

1шт.

j00458-01

J45801

LUBE NIPPLE,M8 x 1.25

2шт.

u00355-53

U35553

SPLIT PIN/SAFETY PIN

1шт.

a00343-16

A34316

BRACKET

1шт.

f00456-14

F45614

WASHER,33.5mm ID x 70mm OD x 10mm Thk

1шт.

w00360-15

W36015

SPLIT PIN/SAFETY PIN

1шт.

j00309-20

J30920

PIN

1шт.

x00289-55

X28955

BUSHING

2шт.

w00267-46

W26746

PIPE CLAMP

6шт.

c00283-61

43140

BOLT,Hex, M10 x 1.5 x 30mm, Cl 8.8

6шт.

r00348-14

R34814

WASHER

6шт.

z00507-37

Z50737

PIPE

SPARE PART

2шт.

g00503-07

G50307

PIN

1шт.

Выбрано товаров: 13