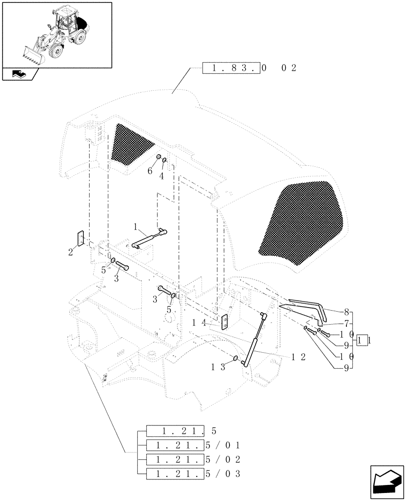
Запчасти Case 321E (1.83.0[01]) - ENGINE GUARD INSTALLATION (02) - ENGINE EQUIPMENT

Схема запчастей Case 321E - (1.83.0[01]) - ENGINE GUARD INSTALLATION (02) - ENGINE EQUIPMENT
5
8
3
9
9
1
3
12
13
1.21.5/01
1.21.5
1.21.5/03
1.21.5/02
4
5
11
10
14
2
7
home
1.83.0 02
10
6
FIT
1:1
100%

Артикул

Название

Примечание

Количество

1

84129842

GAS STRUT

1шт.

Only for 21E

1шт.

1

84129841

GAS STRUT

1шт.

Only for 121E, 221E, 321E

1шт.

2

2929669

PLATE

1шт.

3

55098

BOLT,Hex, M10 x 40mm, Cl 8.8

4шт.

4

2975165

WASHER

1шт.

5

2977453

WASHER

4шт.

6

68841

NUT,M8 x 1.25, Cl 8

1шт.

7

87635150

LID

1шт.

Only for 21E

1шт.

7

87635138

COVER

1шт.

Only for 121E, 221E, 321E

1шт.

8

47605914

SEAL

L.815mm for 21E, L.780mm for 121E,221E,321E

1шт.

9

62543

WASHER

2шт.

10

7121462

BOLT,Hex, M8 x 14mm, Cl 8.8

2шт.

11

87635149

COVER

Assy

1шт.

Only for 21E

1шт.

11

87635148

COVER

Assy

1шт.

Only for 121E, 221E, 321E

1шт.

12

87754621

GAS STRUT

1шт.

13

57111

WASHER,8.4mm ID x 21mm OD x 4mm Thk

1шт.

14

87754583

PLATE

1шт.

Выбрано товаров: 23