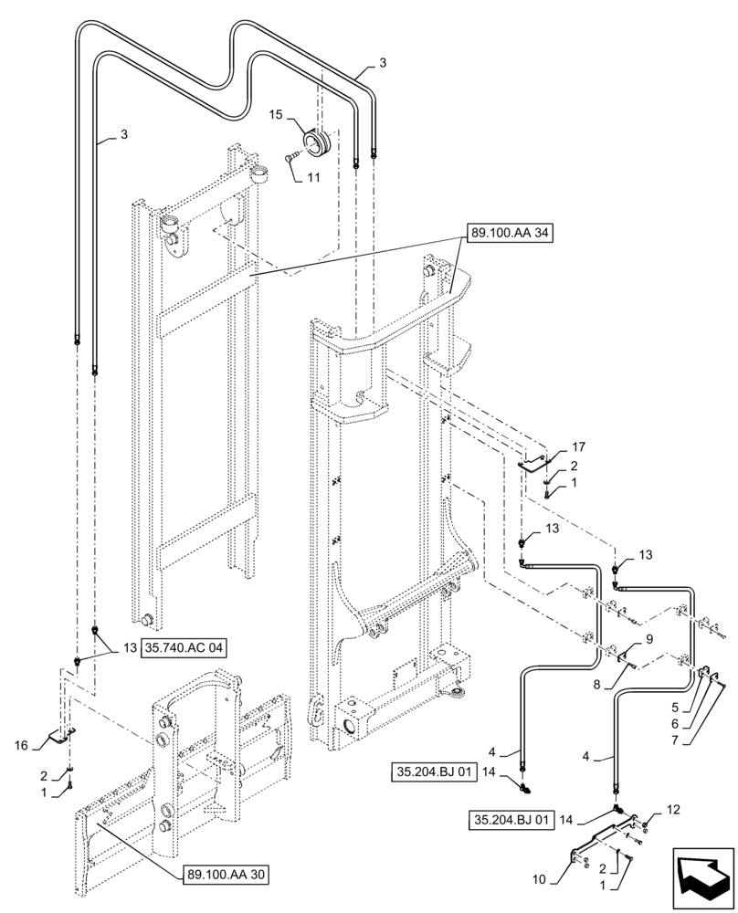
Запчасти Case 588H (35.740.AC[03]) - 8000 LB 15 FT 2 STAGE 84" HOOK W/FPS MAST, HYD. LINE, FORK POSITION (35) - HYDRAULIC SYSTEMS

Схема запчастей Case 588H - (35.740.AC[03]) - 8000 LB 15 FT 2 STAGE 84" HOOK W/FPS MAST, HYD. LINE, FORK POSITION (35) - HYDRAULIC SYSTEMS
7
35.204.bj 01
4
13
4
13
2
3
6
5
1
2
15
89.100.aa 30
8
35.740.ac 04
11
89.100.aa 34
1
35.204.bj 01
14
16
14
3
1
12
13
17
10
9
2
FIT
1:1
100%

Артикул

Название

Примечание

Количество

1

88206

BOLT,Hex, 3/8" - 16 x 1", Gr 5

6шт.

2

492-11038

LOCK WASHER,3/8"

6шт.

3

47781785

HYDRAULIC HOSE,10mm ID x 2768.6mm L

2шт.

4

47781787

HYDRAULIC HOSE,10mm ID x 2311.4mm L

2шт.

5

47782196

CLAMP

4шт.

6

47782205

PLATE

2шт.

7

179800

BOLT,Hex, 1/4" - 20 x 1 3/8", Gr 5

4шт.

8

47781772

BOLT,6.35mm OD x 41.4mm L

4шт.

9

47782198

PLATE

2шт.

10

47781818

BRACKET

1шт.

11

353025A1

BOLT

1шт.

12

574342

CAP,9/16" - 18 JIC

4шт.

13

86513087

FITTING,Blkhd, 9/16"-18, 37 Degree x 9/16"-18, 37 Degree

4шт.

14

253449

90 ELBOW,90 Degree Blkhd, 9/16"-18, 37 Degree x 9/16"-18, 37 Degree

2шт.

15

47782226

PULLEY

1шт.

16

47781820

BRACKET

1шт.

17

47781821

BRACKET

1шт.

Выбрано товаров: 17