Запчасти Case 588H (89.100.AA[23]) - VAR - 745115 - MAST ASSEMBLY, 8000 LB, 22 FT, FREELIFT, 60 IN, SHAFT (89) - TOOLS

Схема запчастей Case 588H - (89.100.AA[23]) - VAR - 745115 - MAST ASSEMBLY, 8000 LB, 22 FT, FREELIFT, 60 IN, SHAFT (89) - TOOLS
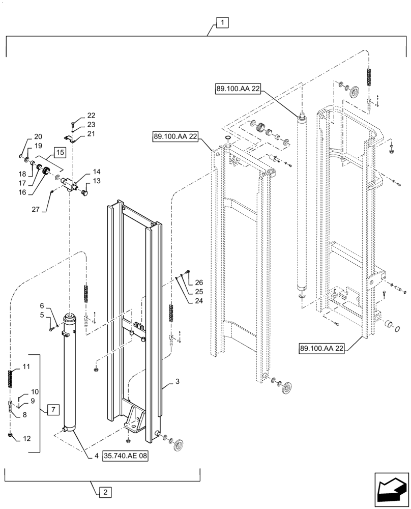
13
8
6
7
89.100.aa 22
16
89.100.aa 22
2
23
11
15
14
19
9
5
20
22
10
35.740.ae 08
1
89.100.aa 22
21
12
25
27
24
3
26
17
4
18
FIT
1:1
100%

Артикул

Название

Примечание

Количество

1

47631432

MAST ASSEMBLY

8000 Lb, 22 Ft, Freelift, Complete, Incl 2 - 27

1шт.

2

47772431

SUPPORT

Rail, Incl 3 - 27

1шт.

3

47778365

FRAME

Inner

1шт.

4

47778435

HYDRAULIC CYLINDER

Freelift Mast

1шт.

5

414-620

BOLT,Hex, 3/8" - 24 x 1-1/4", Gr 5

1шт.

6

492-11038

LOCK WASHER,3/8"

1шт.

7

47778637

CHAIN

Incl 8 - 12

1шт.

8

339819A1

ANCHOR

Chain

2шт.

9

339820A1

PIN

Mast

2шт.

10

339784A1

PIN, SPLIT (COTTER)

4шт.

11

47778638

CHAIN

2шт.

12

231-24412

LOCK NUT,3/4"-16, GB

1шт.

13

353378A1

PLUG

M20 x 1.75 x 20mm

2шт.

14

47806877

CYLINDER HEAD

1шт.

15

47803803

CHAIN

Incl 16 - 18

1шт.

16

339814A1

SHEAVE

1шт.

17

339816A1

BALL BEARING

Freelift Guard

1шт.

18

339817A1

RACE

1шт.

19

339818A1

THRUST WASHER,44.45mm ID x 88.9mm OD x 4.76mm Thk

2шт.

20

100-11156

SNAP RING,#156, Ext

4шт.

21

352992A1

GUARD

2шт.

22

461-32512

HEX SOC SCREW,1/4"-20 x 3/4"

4шт.

23

492-11025

LOCK WASHER,1/4"

4шт.

24

495-11053

WASHER,1/2", SAE

2шт.

25

492-11050

LOCK WASHER,1/2"

2шт.

26

413-824

BOLT,Hex, 1/2" - 13 x 1-1/2", Gr 5

2шт.

27

88775

LUBE NIPPLE,1/4"-28

1шт.

Выбрано товаров: 27