Запчасти Case 580SE (582) - HOOD AND SIDE PANEL NOISE REDUCTION PADS, MODELS WITHOUT TURBOCHARGED ENG (09) - CHASSIS/ATTACHMENTS

Схема запчастей Case 580SE - (582) - HOOD AND SIDE PANEL NOISE REDUCTION PADS, MODELS WITHOUT TURBOCHARGED ENG (09) - CHASSIS/ATTACHMENTS
2
1
3
FIT
1:1
100%

Артикул

Название

Примечание

Количество

1

REF

INSTRUCTION

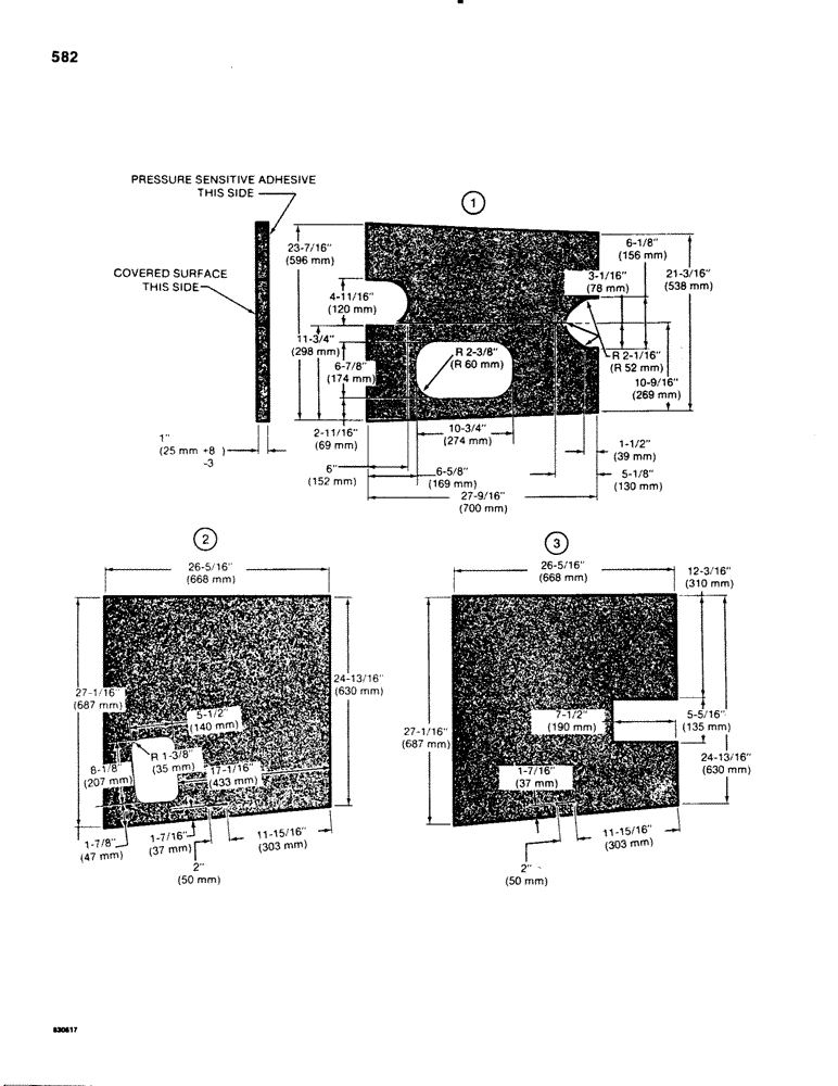
PAD hood, cut from P/N D89609

1шт.

2

REF

INSTRUCTION

PAD engine side panel, left hand, cut from P/N D89609

1шт.

3

REF

INSTRUCTION

PAD engine side panel, right hand, cut from P/N D89609

1шт.

D89609

PAD

bulk, adhesive, 54" (1372 mm) x 36" (914 mm) x 1" (25 mm), not shown

1шт.

Выбрано товаров: 4