Запчасти Case 580F (047A) - ELECTRICAL REAR LIGHTS, STARTING WITH NO 3.823.702 (55) - ELECTRICAL SYSTEMS

Схема запчастей Case 580F - (047A) - ELECTRICAL REAR LIGHTS, STARTING WITH NO 3.823.702 (55) - ELECTRICAL SYSTEMS
30
8
36
29
1
31
9
17
23
25
22
15
24
16
34
2
18
16
12
3
4
26
13
21
10
18
27
7
20
19
6
2
17
11
14
18
33
5
28
35
32
2
FIT
1:1
100%

Артикул

Название

Примечание

Количество

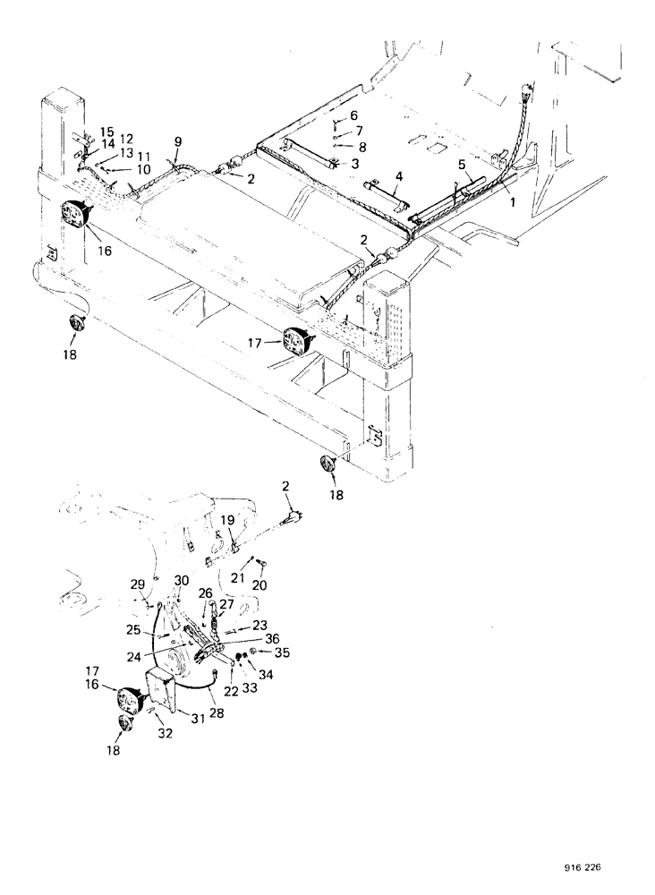
1

E40277

HARNESS

1шт.

1

E34881

GUARD

SEAL, not illustrated

2шт.

2

E40262

HARNESS

SPARE PART

2шт.

3

E40345

GAURD left-hand

1шт.

4

E40346

GAURD right-hand

1шт.

5

E40347

GUARD

1шт.

6

13-612

BOLT,Hex, 3/8" - 16 x 3/4", Gr 5, Full Thd

Cap

2шт.

7

92-6

LOCK WASHER,3/8"

2шт.

8

195-25

WASHER,3/8"

2шт.

9

L11541

CABLE TIE,203.2mm L, Nylon

CABLE STRAP

8шт.

10

113-101

BOLT,Hex, 5/16" - 18 x 1-1/2", Gr 5

2шт.

11

113-101

BOLT,Hex, 5/16" - 18 x 1-1/2", Gr 5

For Germany only

6шт.

12

192-20

LOCK WASHER,Helical Spring, 0.318" ID, CST, ZND

2шт.

13

192-20

LOCK WASHER,Helical Spring, 0.318" ID, CST, ZND

for Germany only

6шт.

14

49838

CLAMP

2шт.

15

49838

CLAMP

for Germany only

6шт.

16

E37274

INTERIOR LIGHT

rear, right-hand

1шт.

16

E33509

LENS

1шт.

16

E32057

BULB

SHUTTLE, 5 watt

1шт.

16

E32056

LAMP, TAIL

LIGHT, TAIL BULB, 21 watt

2шт.

17

E37275

LIGHT ASSY.

rear, left-hand

1шт.

17

E33508

LENS

1шт.

17

E32057

BULB

SHUTTLE, 5 watt

1шт.

17

E32056

LAMP, TAIL

LIGHT, TAIL BULB, 21 watt

2шт.

18

E41350

REFLECTOR

2шт.

19

515-23159

CLAMP,5/8", Insul, 3/8" Bolt

4шт.

20

113-101

BOLT,Hex, 5/16" - 18 x 1-1/2", Gr 5

4шт.

21

192-20

LOCK WASHER,Helical Spring, 0.318" ID, CST, ZND

4шт.

22

E30998

ARM

BAR

2шт.

23

13-414

BOLT,Hex, 1/4" - 20 x 7/8", Gr 5, Full Thd

2шт.

24

131-2

NUT,1/4"-20, GB

2шт.

25

13-620

BOLT,Hex, 3/8" - 16 x 1-1/4", Gr 5, Full Thd

2шт.

26

131-6

LOCK NUT,3/8"-16, GC

2шт.

27

E31002

FASTENER

SPARE PART HOOK

2шт.

28

E33915

CABLE

WIRE

2шт.

29

182-528

SCREW,Sl Pan Hd, #10 - 32 x 1/2"

CAP

2шт.

30

129-37

NUT,#10-32

2шт.

30

193-6

LOCK WASHER,Ext Tooth, #10

2шт.

31

E30935

BRACKET

SPARE PART

2шт.

32

13-514

BOLT,Hex, 5/16" - 18 x 7/8", Gr 5

4шт.

33

49838

CLAMP

2шт.

34

92-5

LOCK WASHER,5/16"

4шт.

35

9635082

NUT,5/16" - 18, Gr 5

4шт.

36

L11541

CABLE TIE,203.2mm L, Nylon

CABLE STRAP CLAMP

4шт.

Выбрано товаров: 44