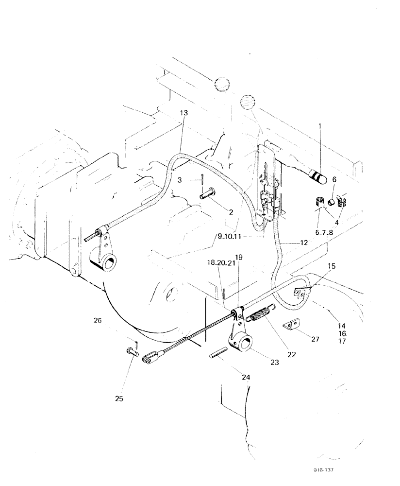
Запчасти Case 580F (125A) - PARKING BRAKE, STARTING WITH NO 3.702.078, DC AND 3.733.488, TC (33) - BRAKES & CONTROLS

Схема запчастей Case 580F - (125A) - PARKING BRAKE, STARTING WITH NO 3.702.078, DC AND 3.733.488, TC (33) - BRAKES & CONTROLS
19
2
12
23
22
7
25
14
4
16
13
5
11
26
18
15
17
6
24
1
9
20
21
3
10
8
27
FIT
1:1
100%

Артикул

Название

Примечание

Количество

1

E40929

LEVER

1шт.

E41392

STOP

ASSEMBLY, Includes: stop, screw, washer, and nut

1шт.

2

D54574

CLEVIS PIN

2шт.

3

132-5

COTTER PIN,1/16" x 1/2"

2шт.

4

D40684

CLAMP,12.7mm ID, 8.78mm Bolt Hole, P Type

2шт.

UP TO NO. 3.736.611

1шт.

5

13-528

BOLT,Hex, 5/16" - 18 x 1-3/4", Gr 5

CAP

1шт.

UP TO NO. 3.736.611

1шт.

6

D68858

SPACER

SPACER

1шт.

UP TO NO. 3.736.611

1шт.

7

92-5

LOCK WASHER,5/16"

1шт.

UP TO NO. 3.736.611

1шт.

8

9635082

NUT,5/16" - 18, Gr 5

1шт.

UP TO NO. 3.736.611

1шт.

9

13-512

BOLT,Hex, 5/16" - 18 x 3/4", Gr 5

2шт.

10

92-5

LOCK WASHER,5/16"

2шт.

11

9635082

NUT,5/16" - 18, Gr 5

2шт.

12

D74907

CABLE

right-hand

1шт.

13

D74908

CABLE

left-hand

1шт.

14

13-516

BOLT,Hex, 5/16" - 18 x 1", Gr 5

CAP

3шт.

15

49836

CLAMP

3шт.

16

92-5

LOCK WASHER,5/16"

3шт.

17

9635082

NUT,5/16" - 18, Gr 5

3шт.

18

13-516

BOLT,Hex, 5/16" - 18 x 1", Gr 5

CAP

2шт.

19

D40684

CLAMP,12.7mm ID, 8.78mm Bolt Hole, P Type

2шт.

20

92-5

LOCK WASHER,5/16"

2шт.

21

9635082

NUT,5/16" - 18, Gr 5

2шт.

22

A35789

SPRING

2шт.

23

D77691

LEVER

2шт.

UP TO NO. 3.702.261, DRY CLUTCH/NO. 3.734.736, TORQUE CONVERTER

1шт.

23

E37995

LEVER

2шт.

STARTING WITH NO. 3.702.262, DRY CLUTCH/NO. 3.734.737, TORQUE CONVERTER

1шт.

24

135-101

GROOVED PIN,3/8" x 1 3/4", Type A

2шт.

25

141-3

CLEVIS PIN,5/16" x .940"

2шт.

26

132-26

COTTER PIN

3/32" x 3/4"

2шт.

27

D77680

SUPPORT

2шт.

Выбрано товаров: 36