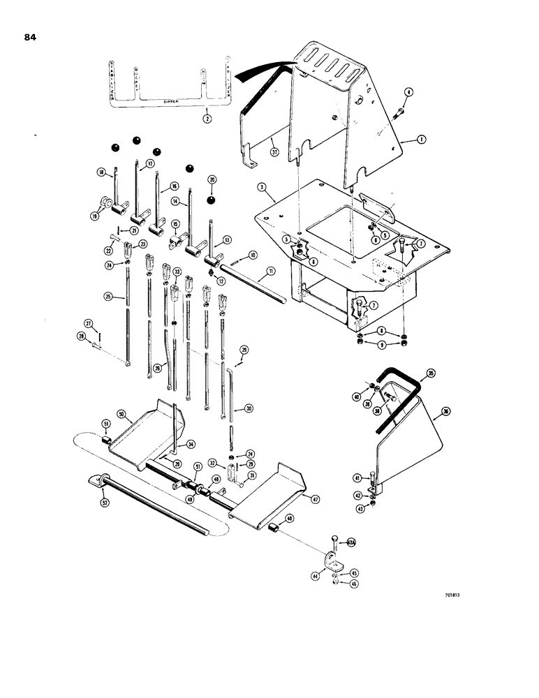
Запчасти Case 26S (084) - INDIVIDUAL LEVER BACKHOE CONTROL, FOOT SWING, FOR 450 CRAWLERS

Схема запчастей Case 26S - (084) - INDIVIDUAL LEVER BACKHOE CONTROL, FOOT SWING, FOR 450 CRAWLERS
FIT
1:1
100%

Артикул

Название

Примечание

Количество

1

D38311

BOOM

CONSOLE - backhoe control (See Figure 18 for swing down seat and tail light) Used before backhoe Sn. 5224733 (When stock is exhausted, order D56529 console for service)

1шт.

1

D56529

BOOM

CONSOLE - backhoe control (See Figure 18 for swing down seat and tail light) Used on backhoe Sn. 5224733 and after as production item, prior to Sn. 5224733 as service replace- ment

1шт.

2

321-921

DECAL

- control console (All backhoes except extendable dipper models, Sn. 5224733 and after)

1шт.

2a

321-2454

DECAL

- control console (Extendable dipper models Sn. 5224733 and after) Not shown

1шт.

3

D47255

EXTENSION - backhoe control tower

1шт.

4

13-616

BOLT,Hex, 3/8" - 16 x 1", Gr 5, Full Thd

2шт.

5

92-6

LOCK WASHER,3/8"

med. sect. 3/8"

4шт.

6

25-106

NUT,3/8"-16, G5

- hex. (3/8" - 16 NC)

4шт.

7

413-632

BOLT,Hex, 3/8" - 16 x 2", Gr 5

4шт.

8

92-6

LOCK WASHER,3/8"

med. sect. 3/8"

4шт.

9

25-106

NUT,3/8"-16, G5

- hex. (3/8" - 16 NC)

4шт.

10

138-98

LOCK PIN,3/16" x 1 1/4", Slotted

PIN, 3/16" x 1 1/4", Slotted

1шт.

11

D30817

SHAFT

- control levers

1шт.

12

219-15

LUBE NIPPLE,5/16" NPTF

FITTING - grease, straight (5/16" drive type) Used with 3/8" - 24 NF threaded levers

6шт.

12

219-4

LUBE NIPPLE,1/8" - 27 NPTF

FITTING - grease, straight (1/8" NPT) Used with 1/2" - 20 NF threaded levers

6шт.

13

D48248

LEVER

- control, R.H. stabilizer (3/8" - 24 NF threaded end)

1шт.

13

D49984

HANDLE

LEVER - control, R.H. stabilizer (1/2" - 20 NF threaded end)

1шт.

14

D48109

LEVER

- control, boom (3/8" - 24 NF threaded end)

1шт.

When stock of 3/8" - 24 NF levers is exhausted, order proper 1/2" - 20 NF lever, (1) D49996 knob and (1) 219-4 grease fitting for service.

1шт.

14

D49994

HANDLE

LEVER - control, boom (1/2" - 20 NF threaded end)

1шт.

15

D48252

ANCHOR

LEVER - pivot, swing

1шт.

16

D48246

LEVER

- control, dipper (3/8" - 24 NF threaded end)

1шт.

16

D49995

HANDLE

LEVER - control, dipper (1/2" - 20 NF threaded end)

1шт.

17

D48108

LEVER

- control, boom (3/8" - 24 NF threaded end)

1шт.

17

D49993

HANDLE

LEVER - control, bucket (1/2" - 20 NF threaded end)

1шт.

18

D48247

LEVER

- control, L.H. stabilizer (3/8" - 24 NF threaded end)

1шт.

18

D49983

HANDLE

LEVER - control, L.H. stabilizer (1/2" - 20 NF threaded end)

1шт.

19

195-2097

WASHER,15/16" x 1 3/4" x .083"

- flat, steel (15/16")

1шт.

20

70213

KNOB

- control lever (Used with 3/8" - 24 NF threaded levers)

5шт.

20

D49996

KNOB

- control lever (Used with 1/2" - 20 NF threaded levers)

5шт.

21

132-25

COTTER PIN,3/32" x 5/8"

Pin, Split (Cotter), 3/32" x 5/8"

6шт.

22

141-4

CLEVIS PIN,3/8" x 1.060"

PIN, CLEVIS, , Mounting 3/8" x 1.060"

6шт.

23

213-4

ADJUSTABLE CLEVIS,3/8"-24 x 2 1/2"

YOKE - connecting rod

6шт.

24

25-156

JAM NUT,Jam, 3/8"-24, G5

- hex., jam (3/8" - 24 NF)

8шт.

25

D42585

ROD

- straight, connecting (R.H. and L.H. stabilizer, boom, bucket and swing control)

5шт.

26

D42584

ROD

- bent (Dipper control)

1шт.

27

132-25

COTTER PIN,3/32" x 5/8"

Pin, Split (Cotter), 3/32" x 5/8"

6шт.

28

141-3

CLEVIS PIN,5/16" x .940"

PIN, CLEVIS, , Yoke mounting 5/16" x .940"

6шт.

29

132-25

COTTER PIN,3/32" x 5/8"

Pin, Split (Cotter), 3/32" x 5/8"

3шт.

30

D21762

ROD

- "L" bend, connecting (R.H. swing control)

1шт.

31

141-4

CLEVIS PIN,3/8" x 1.060"

PIN, CLEVIS, , Mounting 3/8" x 1.060"

1шт.

32

213-4

ADJUSTABLE CLEVIS,3/8"-24 x 2 1/2"

YOKE - connecting rod

1шт.

33

D37600

YOKE

- connecting rod

1шт.

34

D30819

ROD

- "L" bend, connecting (L.H. swing control)

1шт.

35

D47936

LINING

TRIM - shield, edge guard

2шт.

36

D47222

SHIELD - swing pedal, R.H.

1шт.

37

D47223

SHIELD - swing pedal, L.H.

1шт.

38

13-612

BOLT,Hex, 3/8" - 16 x 3/4", Gr 5, Full Thd

4шт.

39

92-6

LOCK WASHER,3/8"

med. sect. 3/8"

4шт.

40

25-106

NUT,3/8"-16, G5

- hex. (3/8" - 16 NC)

4шт.

41

13-816

BOLT,Hex, 1/2" - 13 x 1", Gr 5, Full Thd

2шт.

42

92-8

LOCK WASHER,1/2"

med. sect. 1/2"

2шт.

43

25-108

NUT,1/2"-13, G5

- hex. (1/2" - 13 NC)

2шт.

43a

13-616

BOLT,Hex, 3/8" - 16 x 1", Gr 5, Full Thd

2шт.

44

D40858

BRACKET - swing pedal pivot shaft

1шт.

45

92-6

LOCK WASHER,3/8"

med. sect. 3/8"

2шт.

46

25-106

NUT,3/8"-16, G5

- hex. (3/8" - 16 NC)

2шт.

D47224

PEDAL

ASSEMBLY - swing, R.H., Inlcudes: Ref. 47 and 48

1шт.

47

NSS

NOT SOLD SEPARAT

PEDAL - swing, R.H.

1шт.

48

D30706

BUSHING

- pedal

2шт.

49

195-2097

WASHER,15/16" x 1 3/4" x .083"

- flat, steel (15/16" I.D. x 1-3/4" O.D. x 5/64" thick)

1шт.

D47225

PEDAL ASSEMBLY - swing, L.H., Inlcudes: Ref. 50 and 51

1шт.

50

NSS

NOT SOLD SEPARAT

PEDAL - swing, L.H.

1шт.

51

D30706

BUSHING

- pedal

2шт.

52

D40859

SHAFT

- swing pedal pivot

1шт.

Выбрано товаров: 65