Запчасти Case 580N (50.200.040) - VAR - 747853, 747855 - AIR CONDITIONING, EVAPORATOR (50) - CAB CLIMATE CONTROL

Схема запчастей Case 580N - (50.200.040) - VAR - 747853, 747855 - AIR CONDITIONING, EVAPORATOR (50) - CAB CLIMATE CONTROL
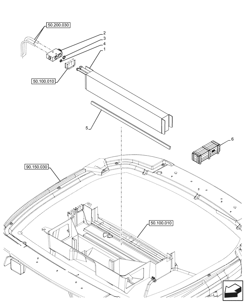
90.150.030
2
1
5
4
3
6
50.100.010
50.100.010
50.200.030
FIT
1:1
100%

Артикул

Название

Примечание

Количество

1

360263A4

EVAPORATOR

1шт.

2

386535A1

VALVE

1шт.

3

128485A1

O-RING,1.78mm Thk x 14mm ID, 70 Duro

1шт.

4

128484A1

O-RING,0.07" Thk x 0.426" ID, -13, Cl 5, 70 Duro

1шт.

5

83822C1

TAPE

3шт.

6

47955689

CONSTRUCTION DIA

Air Conditioning Conversion, Incl 1 - 5

1шт.

Valid for 580N Model Only

1шт.

To See Full DIA KIT Composition Look for all the Figures Where the DIA KIT P/N Is Shown

1шт.

6

47955677

CONSTRUCTION DIA

Air Conditioning Conversion, Incl 1 - 5

1шт.

Valid for 580SN (Livery) NRC, 580SN WT (Livery) NRC, 590SN (Livery) NRC Models Only

1шт.

To See Full DIA KIT Composition Look for all the Figures Where the DIA KIT P/N Is Shown

1шт.

Выбрано товаров: 11