Запчасти Case 580N (55.050.040) - VAR - 747853, 747855 - AIR CONDITIONING, PRESSURE SWITCH (55) - ELECTRICAL SYSTEMS

Схема запчастей Case 580N - (55.050.040) - VAR - 747853, 747855 - AIR CONDITIONING, PRESSURE SWITCH (55) - ELECTRICAL SYSTEMS
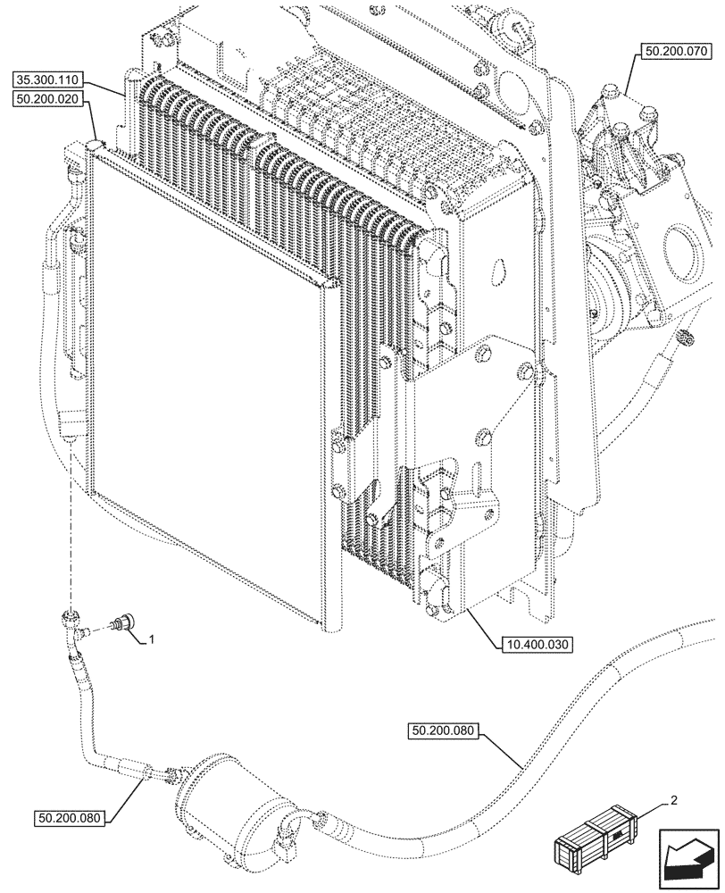
35.300.110
1
2
50.200.020
10.400.030
50.200.080
50.200.080
50.200.070
FIT
1:1
100%

Артикул

Название

Примечание

Количество

1

232948A1

SWITCH, A/C HIGH PRE

1шт.

2

47955689

CONSTRUCTION DIA

Air Conditioning Conversion, Incl 1

1шт.

Valid for 580N Model Only

1шт.

To See Full DIA KIT Composition Look for all the Figures Where the DIA KIT P/N Is Shown

1шт.

Выбрано товаров: 4