Запчасти Case 580N EP (88.100.10[02]) - DIA KIT, HIGH AMBIENT (88) - ACCESSORIES

Схема запчастей Case 580N EP - (88.100.10[02]) - DIA KIT, HIGH AMBIENT (88) - ACCESSORIES
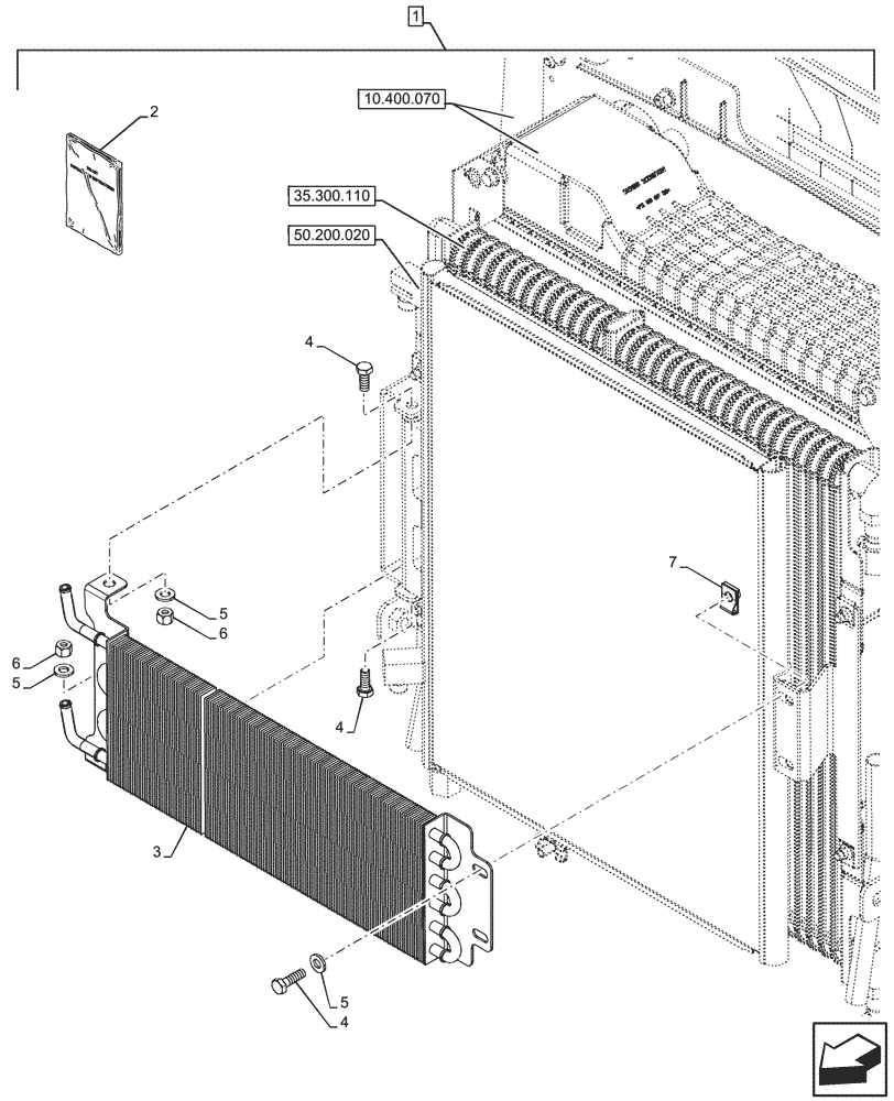
50.200.020
6
3
2
4
6
4
5
4
7
5
1
5
35.300.110
10.400.070
FIT
1:1
100%

Артикул

Название

Примечание

Количество

1

47788903

CONSTRUCTION DIA

High Ambient, Incl 1 - 7

1шт.

Refer to Installation Instructions P/N for Correct Assembly Procedure

1шт.

2

47788905

INSTRUCTION

1шт.

3

47689746

FUEL COOLER

1шт.

4

614-8020

BOLT,Hex, M8 x 1.25 x 20mm

8шт.

5

87655042

SPECIAL WASHER,8.8mm ID x 17.5mm OD x 2.2mm Thk

10шт.

6

832-10408

NUT,M8 x 1.25, Cl 8.8

2шт.

7

833-40408

NUT,M8, U

6шт.

Выбрано товаров: 0