Запчасти Case 580N EP (55.302.AG[02]) - DUAL BATTERY (55) - ELECTRICAL SYSTEMS

Схема запчастей Case 580N EP - (55.302.AG[02]) - DUAL BATTERY (55) - ELECTRICAL SYSTEMS
13
5
8
10
7
2
7
6
2
8
55.302.av (02)
4
4
4
3
4
39.100.ab (01)
9
55.302.ax
4
55.302.aw (02)
16
3
9
6
4
11
1
14
39.100.ab (03)
55.302.ax
5
12
10
15
39.100.ab (02)
FIT
1:1
100%

Артикул

Название

Примечание

Количество

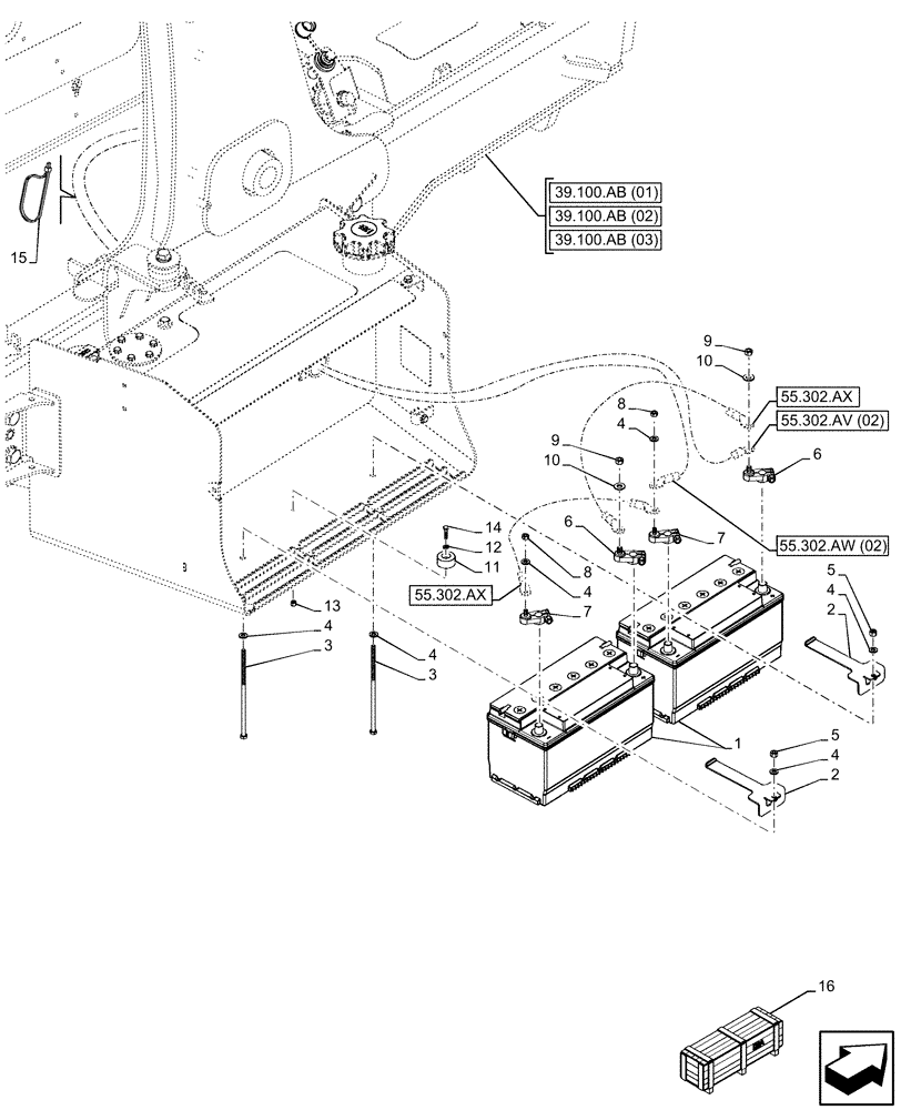
1

87403835

WET BATTERY,Group 49, 12V, 850CCA

For North America

2шт.

2

87653377

BRACKET

Battery Tie Down

2шт.

3

87522766

BOLT,Hex, M8 x 220mm, Cl 8.8

2шт.

4

87655042

SPECIAL WASHER,8.8mm ID x 17.5mm OD x 2.2mm Thk

6шт.

5

412250

NUT,M8 x 1.25, Cl 8

2шт.

6

87735577

TERMINAL CONNECTOR,3/16 - 18 Stud

Positive

2шт.

7

87735578

TERMINAL CONNECTOR,5/16 - 18 Stud

Negative

2шт.

8

425-105

NUT,5/16"-18, G5

2шт.

9

425-106

NUT,3/8"-16, Cl 5

2шт.

10

87655046

SPECIAL WASHER,10.65mm ID x 23mm OD x 2.2mm Thk

2шт.

11

87671746

BUMPER,Neoprene

1шт.

12

87655041

SPECIAL WASHER,6.85mm ID x 13.5mm OD x 2mm Thk

1шт.

13

832-10406

NUT,M6 x 1, Cl 8

1шт.

14

614-6025

BOLT,Hex, M6 x 1 x 25mm, Cl 8.8, Full Thd

1шт.

15

L18331

CABLE TIE,375.9mm L, Nylon, Black

1шт.

16

87722930

CONSTRUCTION DIA

Dual Battery, Incl 2 - 15

1шт.

To See Full DIA KIT Composition Look for all the Figures Where the DIA KIT P/N Is Shown

1шт.

Выбрано товаров: 17