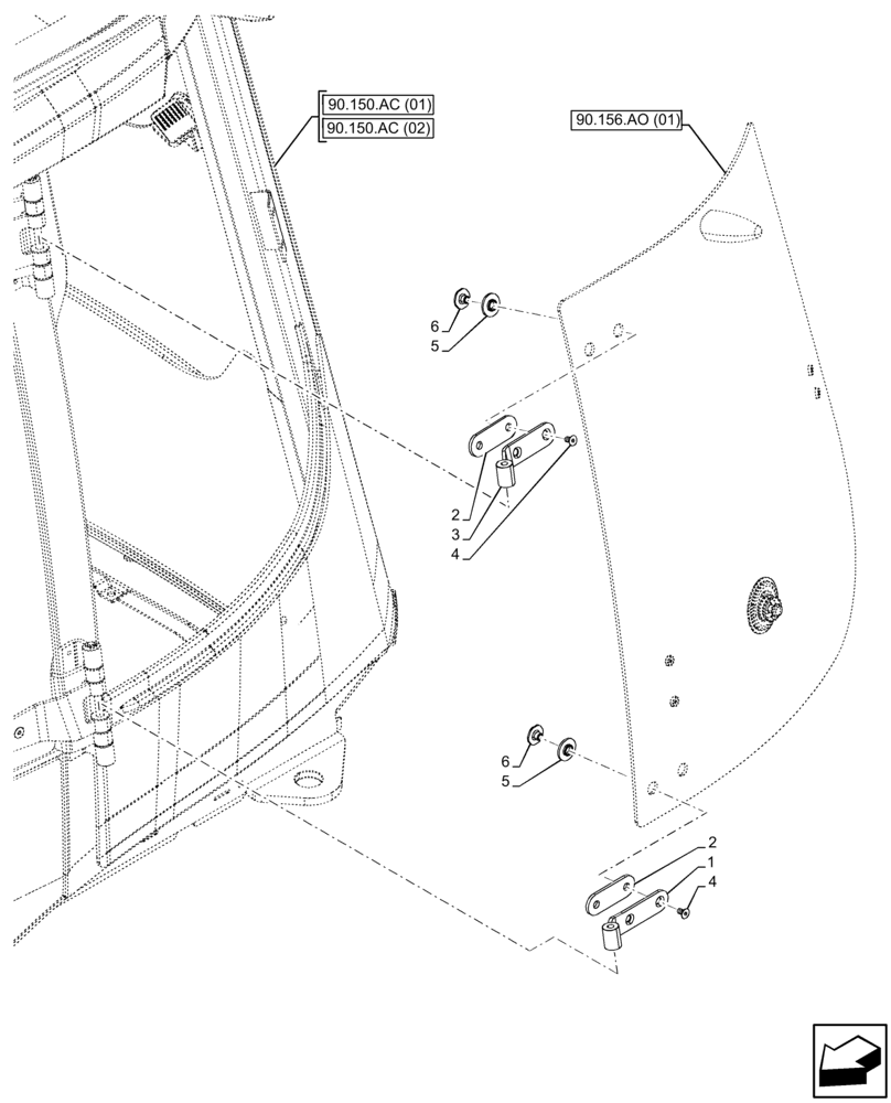
Запчасти Case 580N EP (90.156.AP[01]) - VAR - 747853, 747854, 747855 - CAB, NARROW, LEFT LATERAL WINDOW, HINGE (90) - PLATFORM, CAB, BODYWORK AND DECALS

Схема запчастей Case 580N EP - (90.156.AP[01]) - VAR - 747853, 747854, 747855 - CAB, NARROW, LEFT LATERAL WINDOW, HINGE (90) - PLATFORM, CAB, BODYWORK AND DECALS
4
2
6
6
5
5
4
2
1
90.150.ac (02)
90.156.ao (01)
3
90.150.ac (01)
FIT
1:1
100%

Артикул

Название

Примечание

Количество

1

84282071

HINGE

LH Lower

1шт.

2

84224336

SHIM,35mm OD x 5mm Thk

2шт.

3

84282065

HINGE

LH Upper

1шт.

4

84319919

SCREW,Hex, M8 x 1.25 x 14mm, Cl 10.9

4шт.

5

83961985

SPACER,12.6mm ID x 18mm OD x 6.5mm L

4шт.

6

84249588

SPECIAL NUT,M8 x 1.25

4шт.

Выбрано товаров: 6