Запчасти Case 580SD (508) - HOOD AND SIDE PANEL NOISE REDUCTION PADS (09) - CHASSIS/ATTACHMENTS

Схема запчастей Case 580SD - (508) - HOOD AND SIDE PANEL NOISE REDUCTION PADS (09) - CHASSIS/ATTACHMENTS
2
1
3
FIT
1:1
100%

Артикул

Название

Примечание

Количество

1

REF

INSTRUCTION

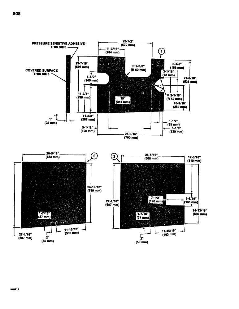
PAD - hood, cut from D89609

1шт.

2

REF

INSTRUCTION

PAD - engine side panel, left-hand, cut from D89609

1шт.

3

REF

INSTRUCTION

PAD - engine side panel, right-hand, cut from D89609

1шт.

D89609

PAD

- bulk, adhesive, 54" (1372 mm) x 36" (914 mm) x 1" (25 mm), not shown

1шт.

Выбрано товаров: 0