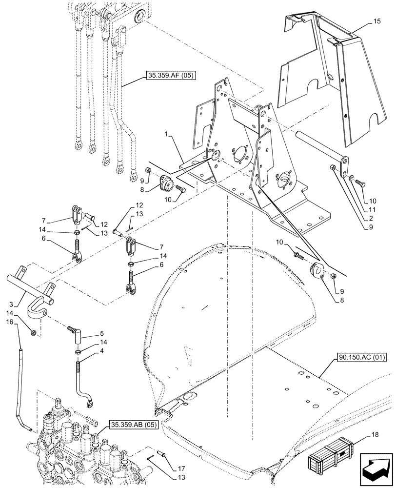
Запчасти Case 580SN (35.359.AF[07]) - BACKHOE CONTROL VALVE, 7-SPOOL, STANDARD DIPPER, MECHANICAL CONTROLS, MOUNTING PARTS (35) - HYDRAULIC SYSTEMS

Схема запчастей Case 580SN - (35.359.AF[07]) - BACKHOE CONTROL VALVE, 7-SPOOL, STANDARD DIPPER, MECHANICAL CONTROLS, MOUNTING PARTS (35) - HYDRAULIC SYSTEMS
90.150.ac (01)
13
10
11
6
7
14
8
8
2
12
6
10
14
9
13
17
9
9
5
14
13
7
4
10
18
1
15
3
16
12
14
35.359.ab (05)
35.359.af (05)
FIT
1:1
100%

Артикул

Название

Примечание

Количество

1

87418516

SUPPORT

Control Tower

1шт.

2

87401203

SHAFT,198mm L

Pivot Backhoe Controls

1шт.

3

D148994

SHAFT,182.10mm L

Swing

1шт.

4

87422239

THREADED ROD,9.53mm D x 151mm L

1шт.

5

D149295

BALL JOINT,3/8"

1шт.

6

D150503

END

2шт.

7

D149262

CLEVIS,3/8-24"

2шт.

8

D139039

BEARING ASSY,19mm ID

2шт.

9

832-10408

NUT,M8 x 1.25, Cl 8.8

5шт.

10

614-8025

BOLT,Hex, M8 x 1.25 x 25mm, Cl 8.8, Full Thd

5шт.

11

87655042

SPECIAL WASHER,8.8mm ID x 17.5mm OD x 2.2mm Thk

1шт.

12

D149288

PIN,8.33mm OD x 30.66mm L

2шт.

13

432-612

COTTER PIN,3/32" x 3/4"

2шт.

14

425-156

JAM NUT,Jam, 3/8"-24, G5

4шт.

15

87411083

COVER

Front Backhoe Console 3 Lever

1шт.

16

84398267

ADJUSTMENT ROD,9.525mm D x 315.2mm L

1шт.

17

D149287

PIN,7.9mm OD x 26.72mm L

6шт.

18

47453058

CONSTRUCTION DIA

Convert 2 Lever to Foot Swing, Incl 15

1шт.

To See Full DIA KIT Composition Look for all the Figures Where the DIA KIT P/N Is Shown

1шт.

18

47453061

CONSTRUCTION DIA

Convert 2 Lever to Foot Swing, Extendable Dipper, Incl 15

1шт.

To See Full DIA KIT Composition Look for all the Figures Where the DIA KIT P/N Is Shown

1шт.

18

84546980

CONSTRUCTION DIA

No Auxiliary to Combo Auxiliary, Mechanical Control, Standard Dipper, Incl 16

1шт.

Valid for 580N, 580SN, 580SN WT Models Only

1шт.

To See Full DIA KIT Composition Look for all the Figures Where the DIA KIT P/N Is Shown

1шт.

18

84546983

CONSTRUCTION DIA

No Auxiliary to Combo Auxiliary, Mechanical Control, Standard Dipper, Incl 16

1шт.

Valid for 590SN Model Only

1шт.

To See Full DIA KIT Composition Look for all the Figures Where the DIA KIT P/N Is Shown

1шт.

18

84396878

CONSTRUCTION DIA

Uni-Aux to Combo Auxiliary, Mechanical Control, Standard Dipper, Incl 16, 17

1шт.

To See Full DIA KIT Composition Look for all the Figures Where the DIA KIT P/N Is Shown

1шт.

Выбрано товаров: 29