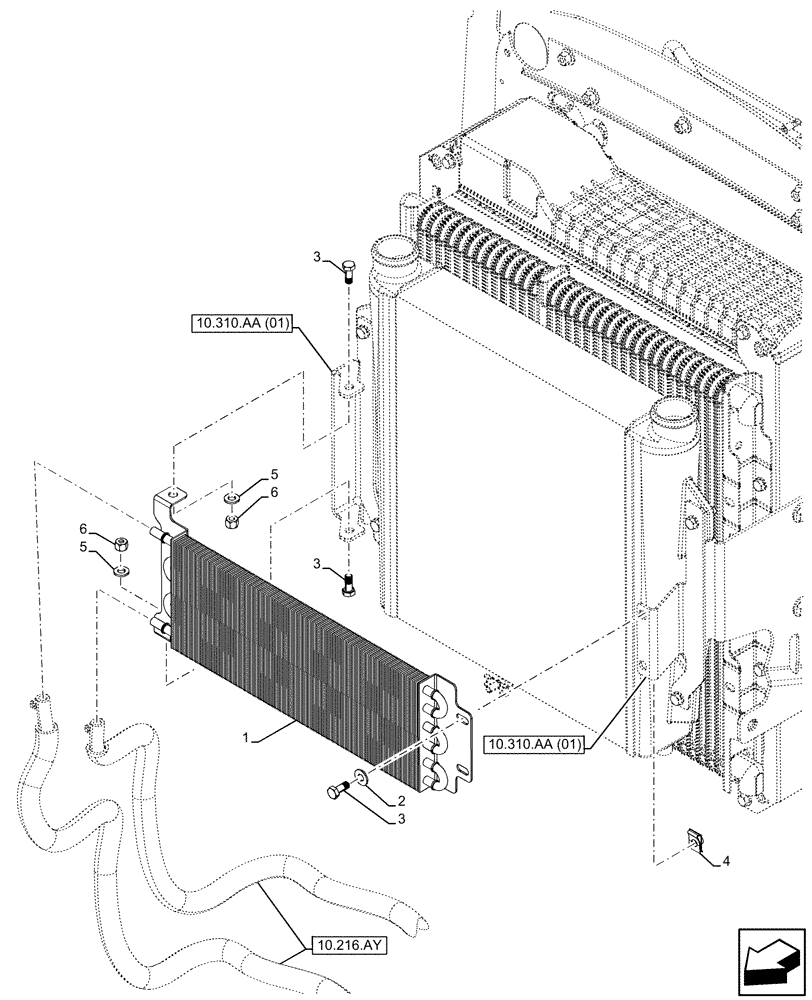
Запчасти Case 580SN (10.216.AX[01]) - VAR - 423000, 423001, 442082, 747854 - FUEL COOLER (10) - ENGINE

Схема запчастей Case 580SN - (10.216.AX[01]) - VAR - 423000, 423001, 442082, 747854 - FUEL COOLER (10) - ENGINE
10.216.ay
2
3
6
5
3
5
3
6
1
4
10.310.aa (01)
10.310.aa (01)
FIT
1:1
100%

Артикул

Название

Примечание

Количество

1

47689746

FUEL COOLER

1шт.

2

895-15008

WASHER,9mm ID x 20mm OD x 1.6mm Thk

2шт.

3

614-8020

BOLT,Hex, M8 x 1.25 x 20mm

4шт.

4

833-40408

NUT,M8, U

2шт.

5

87655042

SPECIAL WASHER,8.8mm ID x 17.5mm OD x 2.2mm Thk

2шт.

6

832-10408

NUT,M8 x 1.25, Cl 8.8

2шт.

Выбрано товаров: 6