Запчасти Case 580SN WT (90.156.070) - VAR - 747853, 747854, 747855 - CAB, LEFT, LATERAL WINDOW, HINGE (90) - PLATFORM, CAB, BODYWORK AND DECALS

Схема запчастей Case 580SN WT - (90.156.070) - VAR - 747853, 747854, 747855 - CAB, LEFT, LATERAL WINDOW, HINGE (90) - PLATFORM, CAB, BODYWORK AND DECALS
90.150.050
6
2
2
4
3
6
1
5
5
4
90.156.060
90.150.060
90.150.040
90.150.030
FIT
1:1
100%

Артикул

Название

Примечание

Количество

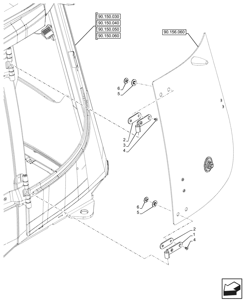
1

84282071

HINGE

Grey, LH Rear Quarter, Lower

1шт.

2

84224336

SHIM,35mm OD x 5mm Thk

2шт.

3

84282065

HINGE

Grey, LH Rear Quarter, Upper

1шт.

4

84319919

SCREW,Hex, M8 x 1.25 x 14mm, Cl 10.9

4шт.

5

47998952

SPACER

4шт.

6

47981357

FLANGE NUT

4шт.

Выбрано товаров: 6