Запчасти Case 590SN (90.156.AP[01]) - VAR - 747853, 747854, 747855 - CAB, WIDE, LEFT LATERAL WINDOW, HINGE (90) - PLATFORM, CAB, BODYWORK AND DECALS

Схема запчастей Case 590SN - (90.156.AP[01]) - VAR - 747853, 747854, 747855 - CAB, WIDE, LEFT LATERAL WINDOW, HINGE (90) - PLATFORM, CAB, BODYWORK AND DECALS
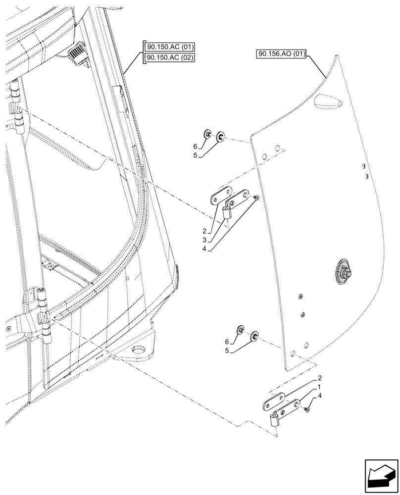
1
6
5
90.150.ac (02)
2
6
90.150.ac (01)
2
3
4
5
90.156.ao (01)
4
FIT
1:1
100%

Артикул

Название

Примечание

Количество

1

84282071

HINGE

LH Lower

1шт.

2

84224336

SHIM,35mm OD x 5mm Thk

2шт.

3

84282065

HINGE

LH Upper

1шт.

4

84319919

SCREW,Hex, M8 x 1.25 x 14mm, Cl 10.9

4шт.

5

83961985

SPACER,12.6mm ID x 18mm OD x 6.5mm L

4шт.

6

84249588

SPECIAL NUT,M8 x 1.25

4шт.

Выбрано товаров: 6