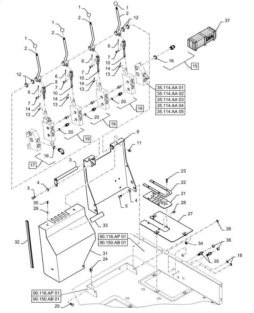
Запчасти Case 570N EP (37.108.AD[01]) - VAR - 747899 - 3 POINT HITCH CONTROLS AND MOUNTING PARTS (37) - HITCHES, DRAWBARS & IMPLEMENT COUPLINGS

Схема запчастей Case 570N EP - (37.108.AD[01]) - VAR - 747899 - 3 POINT HITCH CONTROLS AND MOUNTING PARTS (37) - HITCHES, DRAWBARS & IMPLEMENT COUPLINGS
35.114.aa 04
19
9
2
1
10
1
17
4
19
30
14
10
18
13
31
33
2
6
20
32
15
25
27
7
37
35
16
20
26
1
7
24
13
23
7
22
12
8
16
7
34
21
12
2
10
5
3
19
11
29
1
36
13
14
5
28
6
13
6
4
14
2
14
6
20
90.116.ap 01
90.116.ap 01
35.114.aa 02
35.114.aa 05
90.150.ab 01
90.150.ab 01
35.114.aa 01
35.114.aa 03
FIT
1:1
100%

Артикул

Название

Примечание

Количество

1

404169A1

KNOB

Valve Controls

4шт.

2

411048A1

HANDLE

Valve Controls

4шт.

3

84513064

SHAFT

Pivot

1шт.

4

87655046

SPECIAL WASHER,10.65mm ID x 23mm OD x 2.2mm Thk

1шт.

5

43138

BOLT,Hex, M10 x 1.5 x 20mm, Cl 8.8

1шт.

6

280250

COTTER PIN,3/32" OD x 3/4" L

4шт.

7

D149287

PIN,7.9mm OD x 26.72mm L

Clevis

4шт.

8

411069A1

ROD ASSY.

Short Control

1шт.

9

411159A1

PLATE ASSY.

Valve Mounting

1шт.

10

411070A1

ROD ASSY.

Long Control

3шт.

11

833-40406

NUT,M6, U

Spring

10шт.

12

A30881

SEALING WASHER,19.45mm ID x 31.35mm OD

4шт.

13

405776A1

CLEVIS PIN,4.72mm OD x 22.28mm L

Steel

4шт.

14

86523849

COTTER PIN,1/16" x 3/4"

4шт.

15

81827427

HYD CONNECTOR,3/4" - 16 JIC x 3/4" - 16 ORB

Incl 16

1шт.

16

128825

O-RING,0.087" Thk x 0.644" ID, -908, Cl 6, 90 Duro

Incl in 15 or 17

2шт.

17

128830

90 ELBOW,3/4" - 16 JIC x 3/4" - 16 ORB

Incl 16

1шт.

18

353-436

PLUG,.593" Hole, Nylon

2шт.

19

76350

HYD CONNECTOR,9/16" - 18 ORB x 9/16" - 18 JIC

Incl 20

6шт.

20

9617873

O-RING,0.078" Thk x 0.468" ID, -906, Cl 6, 90 Duro

Incl in 19

1шт.

21

399748A4

GROMMET

Hose

1шт.

22

400659A1

STRAP

Boot Retaining

1шт.

23

435637A2

BOLT,Hex, M6 x 1 x 25mm, Cl 10.9

4шт.

24

833-40310

NUT,M10, U

2шт.

25

121856A1

BOLT,Hex, M10 x 1.5 x 30mm, Cl 10.9

2шт.

26

829-1410

NUT,M10 x 1.5, Cl 10.9

3шт.

27

399756A1

PLATE

Rear Cover

1шт.

28

833-40406

NUT,M6, U

10шт.

29

86981721

WASHER,6.6mm ID x 25mm OD x 1.6mm Thk

4шт.

30

417310A1

BOLT,M6 x 25 Self Align W/Captured WSHR

4шт.

31

86982404

VALVE COVER

Main Valve

1шт.

32

406166A1

SEAL

To Side Console

1шт.

33

417311A1

DECAL

3PT Hitch

1шт.

34

87381288

BHD LOCK NUT

2шт.

35

86513087

FITTING,Blkhd, 9/16"-18, 37 Degree x 9/16"-18, 37 Degree

2шт.

36

574342

CAP,9/16" - 18 JIC

2шт.

37

86992957

KIT

DIA Kit, 3 Point Hitch (5 Spool) (Order From Wholegoods Only) Incl 1, 2, 7, 10, 13

1шт.

To See the Full DIA Kit Composition Look For All the Figures Where the DIA Kit P/N is Shown

1шт.

Выбрано товаров: 38