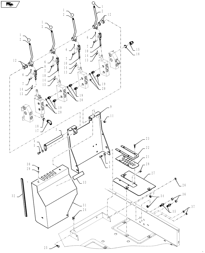
Запчасти Case 570NXT (35.114.AF) - 3 POINT HITCH CONTROLS AND MOUNTING PARTS (35) - HYDRAULIC SYSTEMS

Схема запчастей Case 570NXT - (35.114.AF) - 3 POINT HITCH CONTROLS AND MOUNTING PARTS (35) - HYDRAULIC SYSTEMS
4
18
6
2
5
13
14
19
1
21
26
5
11
20
14
17
13
25
19
home
16
23
33
2
3
2
8
34
10
28
7
31
2
1
10
37
30
1
1
10
24
7
12
14
7
22
32
20
14
6
29
13
6
27
6
19
35
15
9
4
20
7
12
36
13
FIT
1:1
100%

Артикул

Название

Примечание

Количество

1

404169A1

KNOB

Valve Controls

4шт.

2

411048A1

HANDLE

Valve Controls

4шт.

3

84513064

SHAFT

Pivot

1шт.

4

87655046

SPECIAL WASHER,10.65mm ID x 23mm OD x 2.2mm Thk

10.65 X 23

1шт.

5

43138

BOLT,Hex, M10 x 1.5 x 20mm, Cl 8.8

1шт.

6

280250

COTTER PIN,3/32" OD x 3/4" L

4шт.

7

D149287

PIN,7.9mm OD x 26.72mm L

Clevis

4шт.

8

411069A1

ROD ASSY.

Short Control

1шт.

9

411159A1

PLATE ASSY.

Valve Mounting

1шт.

10

411070A1

ROD ASSY.

Long Control

3шт.

11

833-40406

NUT,M6, U

Spring

10шт.

12

A30881

SEALING WASHER,19.45mm ID x 31.35mm OD

4шт.

13

405776A1

CLEVIS PIN,4.72mm OD x 22.28mm L

Steel

4шт.

14

86523849

COTTER PIN,1/16" x 3/4"

.062 X 75 in

4шт.

15

81827427

HYD CONNECTOR,3/4" - 16 JIC x 3/4" - 16 ORB

Does Not Incl O-Ring

2шт.

16

128825

O-RING,0.087" Thk x 0.644" ID, -908, Cl 6, 90 Duro

1шт.

17

128830

90 ELBOW,3/4" - 16 JIC x 3/4" - 16 ORB

Does Not Incl O-Ring

1шт.

18

128825

O-RING,0.087" Thk x 0.644" ID, -908, Cl 6, 90 Duro

1шт.

19

76350

HYD CONNECTOR,9/16" - 18 ORB x 9/16" - 18 JIC

Does Not Incl O-Ring

6шт.

20

9617873

O-RING,0.078" Thk x 0.468" ID, -906, Cl 6, 90 Duro

1шт.

21

399748A4

GROMMET

Hose

1шт.

22

400659A1

STRAP

Boot Retaining

1шт.

23

435637A2

BOLT,Hex, M6 x 1 x 25mm, Cl 10.9

M6 X 25

4шт.

24

833-40310

NUT,M10, U

2шт.

25

121856A1

BOLT,Hex, M10 x 1.5 x 30mm, Cl 10.9

2шт.

26

829-1410

NUT,M10 x 1.5, Cl 10.9

3шт.

27

399756A1

PLATE

Rear Cover

1шт.

28

833-40406

NUT,M6, U

Spring

10шт.

29

86981721

WASHER,6.6mm ID x 25mm OD x 1.6mm Thk

4шт.

30

417310A1

BOLT,M6 x 25 Self Align W/Captured WSHR

M6 X 25

4шт.

31

411161A1

COVER

Main Valve

1шт.

32

406166A1

SEAL

To Side Console

1шт.

33

417311A1

DECAL

3PT Hitch

1шт.

34

87381288

BHD LOCK NUT

2шт.

35

86513087

FITTING,Blkhd, 9/16"-18, 37 Degree x 9/16"-18, 37 Degree

2шт.

36

574342

CAP,9/16" - 18 JIC

2шт.

37

353-436

PLUG,.593" Hole, Nylon

2шт.

Выбрано товаров: 37