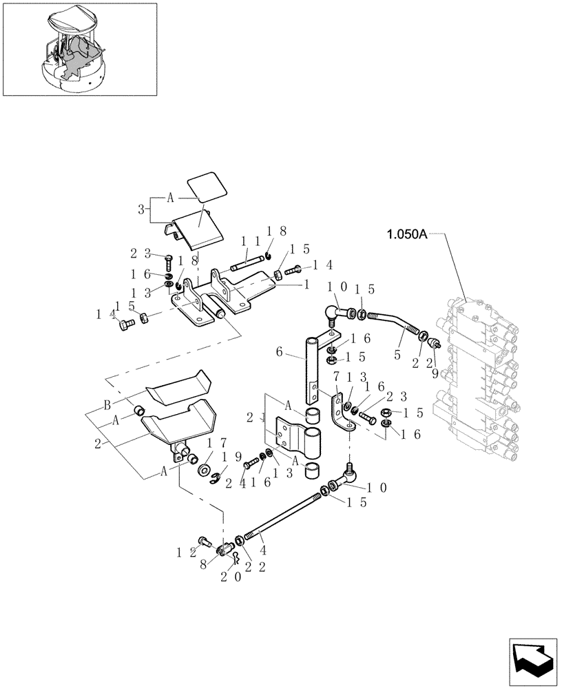
Запчасти Case CX27B (1.070[07]) - CONTROL OPERATORS - PEDAL INSTAL (01) - Section 1

Схема запчастей Case CX27B - (1.070[07]) - CONTROL OPERATORS - PEDAL INSTAL (01) - Section 1
20
18
b
14
16
9
16
14
24
6
23
21
15
17
22
a
15
16
15
22
10
15
3
15
7
1
16
10
12
16
a
8
4
13
19
a
a
13
18
11
13
15
5
2
23
a
FIT
1:1
100%

Артикул

Название

Примечание

Количество

1

72281955

SUPPORT

1шт.

2

72281956

SET OF PARTS

1шт.

2a

72204650

BUSHING

2шт.

2b

72283587

PLATE

1шт.

3

72283588

COVER

1шт.

3a

72283590

PLATE

1шт.

4

72285659

ROD

1шт.

5

72281960

ROD

1шт.

6

87352647

LINK

1шт.

7

72285660

PLATE

1шт.

8

72950770

ROD

1шт.

9

72283600

ARTICULATION

1шт.

10

72283601

ARTICULATION

2шт.

11

72283602

PIN

1шт.

Up To S/N XXX

1шт.

11

87571709

PIN

1шт.

From S/N XXX

1шт.

12

72951663

PIN

1шт.

13

14496521

WASHER,8.4mm ID x 17mm OD x 1.6mm Thk

11шт.

14

16043634

SCREW,Hex, M8 x 1.25 x 25mm, Cl 10.9, Full Thd

2шт.

15

16100824

NUT,M8, Cl 10

6шт.

16

10571779

LOCK WASHER,Helical Spring, 8.10mm ID x 14.80mm OD x 2.00mm, ZNM

11шт.

17

14496821

WASHER,15mm ID x 28mm OD x 2.5mm Thk

2шт.

18

72951673

RING

D=7

2шт.

19

72285809

RING

D=12

1шт.

20

72272933

COTTER PIN,2.4mm x 24.2mm L

1шт.

21

72281963

PLATE

1шт.

22

15896224

NUT,Hex, M6

M6

2шт.

23

16043434

BOLT,Hex, M8 x 1.25 x 20mm, Cl 10.9, Full Thd

6шт.

24

16043834

BOLT,Hex, M8 x 1.25 x 30mm, Cl 10.9, Full Thd

3шт.

Выбрано товаров: 30