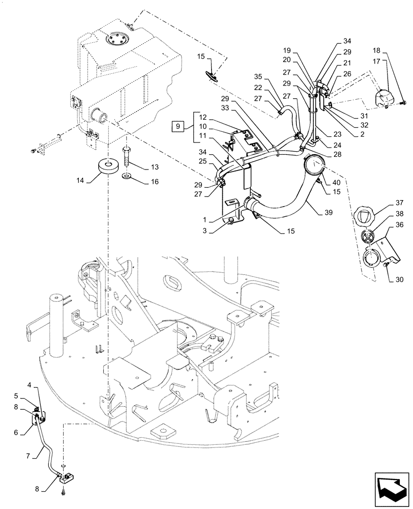
Запчасти Case CX31B (01-020[01]) - TANK INSTAL, FUEL, CANOPY ASN PW14-47630 (10) - ENGINE

Схема запчастей Case CX31B - (01-020[01]) - TANK INSTAL, FUEL, CANOPY ASN PW14-47630 (10) - ENGINE
17
27
11
30
8
29
3
40
21
23
24
27
29
27
6
22
34
16
19
10
18
33
38
5
13
8
1
14
15
37
2
20
15
32
27
25
34
39
12
29
7
15
4
35
31
28
29
9
36
26
FIT
1:1
100%

Артикул

Название

Примечание

Количество

.

Tank Install, Fuel, Canopy, PW20P00034F2

1шт.

1

ZC16X05000

CLIP

1шт.

2

ZW16X08000

WASHER,8mm ID x 17mm OD x 1.6mm Thk

1шт.

3

ZM73C10020

BOLT,M10x20mm - Course Thread

Sems

2шт.

4

ZM22C10020

BOLT

Sems

1шт.

5

YN05P00010S007

COCK, DRAIN

1шт.

6

PM05P01046P1

BOSS

1шт.

7

PA21P01005DW

HOSE,7mm ID x 500mm L

1шт.

8

PH05P01088D6

CLIP

2шт.

9

PW20P01222F1

BRACKET

Assy, Incl 10 - 12

1шт.

10

PW20P01312P1

BRACKET

1шт.

11

PW20P01227P1

RUBBER

1шт.

12

PW20P01207P1

RUBBER

2шт.

13

ZS18C10016

SCREW,Hex, M10 x 16mm

Cap

3шт.

14

PW20P01115P1

RUBBER

3шт.

15

PW20P01207P1

RUBBER

3шт.

16

ZW16K10000

WASHER

3шт.

17

PW20P00039P1

TANK

Fuel

1шт.

18

ZM73C08020

BOLT,M8x20mm - Course Thread

Sems

1шт.

19

PW21P01003D4

TUBE

1шт.

20

PW20P01348P2

HOSE

1шт.

21

PW20P01377P2

HOSE

1шт.

22

PW20P01285D3

HOSE

1шт.

23

PW20P01353P1

TUBE

1шт.

24

ZM73C06016

BOLT,M6x16mm - Course Thread

Sems

1шт.

25

PW20P01285D2

HOSE

1шт.

26

PH05P01088D7

CLIP,13.6mm - 17.5mm

1шт.

27

PH05P01088D4

CLIP

5шт.

28

2420R372D13

GROMMET

1шт.

29

PY01P01043D3

CABLE TIE,188mm L

6шт.

30

ZM22C08020

BOLT

Sems

2шт.

31

PW20P01318P1

BRACKET

1шт.

32

ZS18C08014

SCREW,Hex, M8 x 14mm

Cap

1шт.

33

PW21P01003D3

TUBE

1шт.

34

PU13E01002D7

TUBE

2шт.

35

PU13E01002DK

TUBE

1шт.

36

PW20P01404P1

NECK FILLER

1шт.

37

PY20P01009P1

CAP

Fuel

1шт.

38

PY50V00007P1

FILTER STRAINER

1шт.

39

PH20P01103P1

HOSE

1шт.

40

ZC16X08100

CLIP

1шт.

Выбрано товаров: 41