Запчасти Case CX36B (03-003[02]) - CYLINDER ASSY - CAB (35) - HYDRAULIC SYSTEMS

Схема запчастей Case CX36B - (03-003[02]) - CYLINDER ASSY - CAB (35) - HYDRAULIC SYSTEMS
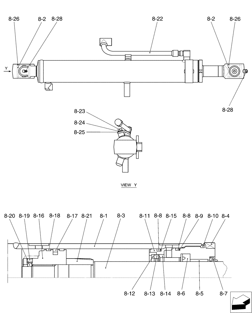
8-12
8-28
8-25
8-9
8-2
8-15
8-20
8-18
8-5
8-8
8-16
8-24
8-4
8-21
8-26
8-2
8-17
8-7
8-1
8-8
8-10
8-11
8-26
8-3
8-14
8-19
8-22
8-6
8-23
8-28
8-13
FIT
1:1
100%

Артикул

Название

Примечание

Количество

.

PX01V00066F1

CYLINDER,Double Acting, 45mm Rod, 555mm Stroke

Assembly, Incl 8-1 - 8-28

1шт.

8-1

NSS

NOT SOLD SEPARAT

Tube Assy.

1шт.

8-2

PW01V01086D1

BUSHING

2шт.

8-3

NSS

NOT SOLD SEPARAT

Rod, Piston

1шт.

8-4

PW01V00068S004

CYLINDER END CAP

Head

1шт.

8-5

PV01V00047S019

BUSHING

1шт.

8-6

2438U635S3

RING

1шт.

8-7

PH01V00006S006

RING

1шт.

8-8

ZD12G07500

O-RING,74.40mm ID x 80.60mm OD x 3.10mm

ID 74.4mm x OD 77.5mm

2шт.

8-9

PH01V00015S008

BACK-UP RING

1шт.

8-10

ZD12G08000

O-RING,79.40mm ID x 85.60mm OD x 3.10mm

1шт.

8-11

PX01V00045S011

HOLDER

1шт.

8-12

PH01V00015S024

CAP

Spacer

1шт.

8-13

PH01V00015S011

SEAL

1шт.

8-14

PW01V00068S014

COLLAR

1шт.

8-15

PW01V00014S008

BACK-UP RING

1шт.

8-16

PX01V00045S017

PISTON

1шт.

8-17

2438U852S15

RING

Piston

1шт.

8-18

PW01V00068S018

RING

2шт.

8-19

2438U1057S16

SET SCREW

1шт.

8-20

2436U946S11

BALL

1шт.

8-21

PX01V00045S022

CUSHION

Ring

1шт.

8-22

PX01V00066S022

HYD TUBE

1шт.

8-23

PM01V00060S025

CAPSCREW

SCREW Cap

1шт.

8-24

ZW22K10000

LOCK WASHER

Lock

1шт.

8-25

PR01V00002S024

WASHER

1шт.

8-26

PR01V00002S027

SEAL

Dust

4шт.

8-28

PR01V00027S023

LUBE NIPPLE

2шт.

PX01V00052R400

REPAIR KIT

Consists Of Ref: 8-1(1), 8-2(1), 8-26(2)

1шт.

PX01V00066R100

REPAIR KIT

Repair Kit, Consists Of Ref: 8-2(1), 8-3(1), 8-26(2)

1шт.

PX01V00045R300

REPAIR KIT

Consists Of Ref: 8-6(1), 8-7(1), 8-9(1), 8-10(1), 8-15(1), 8-17(1), 8-8(2), 8-18(2)

1шт.

Выбрано товаров: 31