Запчасти Case CX55B (90.150.AB[05]) - CAB ASSY (90) - PLATFORM, CAB, BODYWORK AND DECALS

Схема запчастей Case CX55B - (90.150.AB[05]) - CAB ASSY (90) - PLATFORM, CAB, BODYWORK AND DECALS
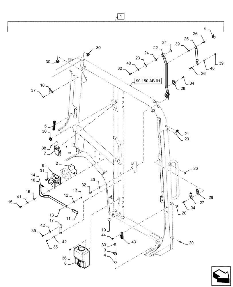
1
14
26
7
27
21
23
35
18
31
40
40
5
24
20
22
9
2
35
10
39
37
28
16
32
30
12
25
11
42
40
42
13
43
29
30
30
32
15
41
8
90.150.ab 01
34
6
26
20
36
13
34
24
3
20
44
17
4
39
19
20
33
38
FIT
1:1
100%

Артикул

Название

Примечание

Количество

1

PS02C00002F1

CAB

Assy, Incl 2 - 44

1шт.

2

LE02C01070P2

PACKING

1шт.

3

PY02C01178P1

PLUG

Stopper

2шт.

4

PY02C01338P1

SHIM

2шт.

5

PY02C01179P1

CHANNEL

2шт.

6

PM02C01396P1

STOP

2шт.

7

PW80S00007P1

LIGHT

Room

1шт.

8

PW54C00001P1

TANK

Assy, Washer

1шт.

9

PY02C01342P1

LOCK

Assy

1шт.

10

PY02C01152P1

LEVER

1шт.

11

PY02C01035P1

COVER

1шт.

12

YR02C01521P1

PACKING

1шт.

13

PY02C01339P1

CLIP

2шт.

14

PF02C01054P1

SPRING

1шт.

15

PY02C01310D1

BOLT

1шт.

16

PY02C01311D1

WASHER

2шт.

17

PY02C01153P1

GUIDE

1шт.

18

YR02C01578P1

HOOK

1шт.

19

PW02C01325D1

PLATE

1шт.

20

YT02C01567D1

PLATE

8шт.

21

PY02C01188P1

CAP

1шт.

22

PS02C01095F1

ARM

Assy

1шт.

23

PY02C01323D1

WASHER

2шт.

24

PY02C01322D1

WASHER

4шт.

25

PY02C01326P1

SPRING

2шт.

26

PY02C01349D1

SCREW

Cap

4шт.

27

PY02C01329P1

PLATE

1шт.

28

PY02C01333P1

PLATE

2шт.

29

PY02C01334P1

SHIM,1.6mm Thk

2шт.

30

PY02C01301D2

GROMMET

4шт.

31

ZM73C08020

BOLT,M8x20mm - Course Thread

Sems

10шт.

32

PY02C01193D2

SCREW

6шт.

33

ZS28C06016

SCREW,Hex Socket Head, M6 x 16mm

Cap

2шт.

34

PY02C01191D2

BOLT

Sems

8шт.

35

PY02C01193D1

SCREW

2шт.

36

PY02C01197D2

BOLT

2шт.

37

ZS31C04016

SCREW,Phillips Drive, Pan HD, M4 x 16mm

Machine

2шт.

38

ZM46C04016

SCREW

Sems

2шт.

39

PH03M01167P1

NUT

4шт.

40

PY02C01204D2

WASHER

8шт.

41

PY02C01202D3

WASHER

1шт.

42

PY02C01204D1

WASHER

2шт.

43

PS02C01088P1

GUIDE

2шт.

44

ZM46C06012

SCREW

Sems

4шт.

Выбрано товаров: 44