Запчасти Case CX55BMSR (02-022[00]) - DOZER GROUP (ANGLE DOZER) (86) - DOZER

Схема запчастей Case CX55BMSR - (02-022[00]) - DOZER GROUP (ANGLE DOZER) (86) - DOZER
8
5
6
3
1
7
8
home
2
3
8
4
FIT
1:1
100%

Артикул

Название

Примечание

Количество

.

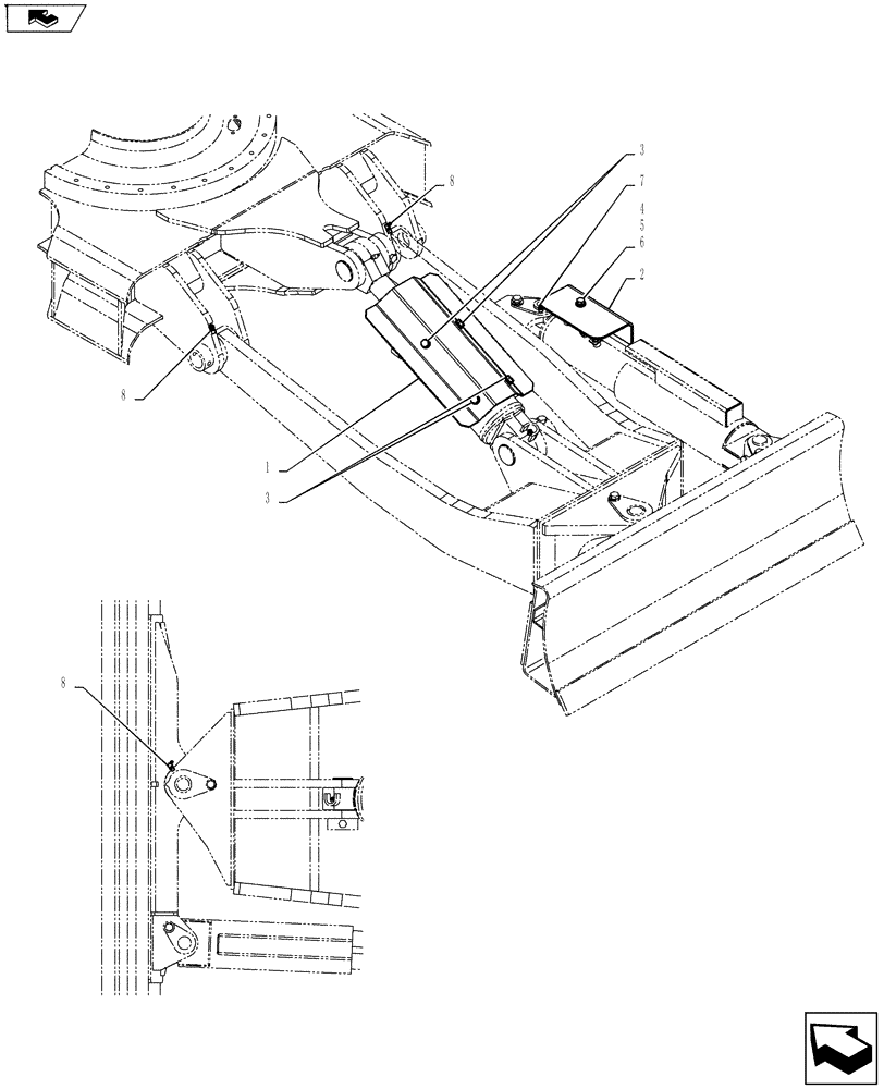
Dozer Group (Angle Dozer) PY51B00078F1, Start Serial: PS02-00101

1шт.

1

PY51B01160P1

COVER

1шт.

2

PH51B01063P1

COVER

, Serial Range: PS02-00101-PS02-01793

1шт.

2

PY51B01176P1

COVER

, Start Serial: PS02-01794

1шт.

3

ZM73C10016

BOLT,M10x16mm - Course Thread

Sems

4шт.

4

ZW16H10000

WASHER

, Serial Range: PS02-00101-PS02-01793

1шт.

4

ZW16H10000

WASHER

, Start Serial: PS02-01794

2шт.

5

ZW26X10000

LOCK WASHER

, Serial Range: PS02-00101-PS02-01793

1шт.

5

ZW26X10000

LOCK WASHER

, Start Serial: PS02-01794

2шт.

6

ZS18C10075

SCREW,Hex, M10 x 75mm

Cap, Serial Range: PS02-00101-PS02-01793

1шт.

6

ZS18C10080

SCREW,Hex, M10 x 80mm

, Start Serial: PS02-01794

2шт.

7

ZG91S02000

LUBE NIPPLE,1/8" NPT x 1/8" NPT

1шт.

8

ZG91V02000

LUBE NIPPLE,67 Degree x 1/8" PT

3шт.

Выбрано товаров: 13