Запчасти Case CX55BMSR (01-051[01]) - CONTROLS, OPERATORS (CAB) (90) - PLATFORM, CAB, BODYWORK AND DECALS

Схема запчастей Case CX55BMSR - (01-051[01]) - CONTROLS, OPERATORS (CAB) (90) - PLATFORM, CAB, BODYWORK AND DECALS
22
24
8
28
14
6
17
4
15
12
19
20
14
22
29
27
26
16
home
23
2
10
1
3
18
27
7
9
8
5
7
21
8
11
25
13
8
FIT
1:1
100%

Артикул

Название

Примечание

Количество

.

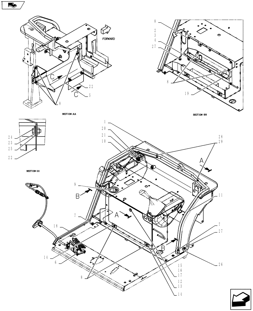
Operators Controls (Cab) PY03M00024F1, Start Serial: PS02-00101

1шт.

1

Stand Assembly PY10M01111F1

1шт.

2

Cover PY03M01303F1

1шт.

3

PY03M01304P1

PLATE

1шт.

4

PY03M01316P1

INSULATION

1шт.

5

PY03M01327P1

COVER

1шт.

6

NSS

NOT SOLD SEPARAT

Pedal Install PY55M00002F1

1шт.

7

ZM73C08020

BOLT,M8x20mm - Course Thread

Sems

2шт.

8

ZM73C08016

BOLT,M8x16mm - Course Thread

Sems

13шт.

9

EW03E01010P1

GROMMET

1шт.

10

PY03M01286P1

INSULATION

1шт.

11

PY03M01287P1

INSULATION

1шт.

12

NSS

NOT SOLD SEPARAT

Cover Assembly, PY10M01090F1

1шт.

13

PY10M01091P1

COVER

Incl 14 - 15

1шт.

14

PY10M01057P1

HINGE

2шт.

15

PH06C01072P2

LOCK

Incl 16 - 17

1шт.

16

YR22C01025P2

LOCK

1шт.

17

PH06C01071P1

COVER

1шт.

18

PY10M01083P1

INSULATION

1шт.

19

PY03M01321P1

HOLDER

1шт.

20

PY50S00004P2

SWITCH

Wiper Washer

1шт.

21

PW17M01018P1

LABEL

Wiper Switch (Wash/Off/On/Wash)

1шт.

22

PY03M01325P1

RUBBER INSULATOR

1шт.

23

YJ02H01013P1

SPACER

2шт.

24

ZS18C08020

SCREW,Hex, M8 x 20mm

Cap

2шт.

25

HY25X10027G1

WASHER,10mm ID x 27mm OD x 3.2mm Thk

2шт.

26

YT02C01567D2

PLATE

1шт.

27

ZM73C10025

BOLT,M10x25mm - Course Thread

Sems

2шт.

28

2420T8007D3

CAPSCREW

2шт.

29

ZW16H08000

WASHER

2шт.

Выбрано товаров: 0