Запчасти Case 1500-SERIES (072) - AUXILIARY HYDRAULIC SYSTEM (35) - HYDRAULIC SYSTEMS

Схема запчастей Case 1500-SERIES - (072) - AUXILIARY HYDRAULIC SYSTEM (35) - HYDRAULIC SYSTEMS
FIT
1:1
100%

Артикул

Название

Примечание

Количество

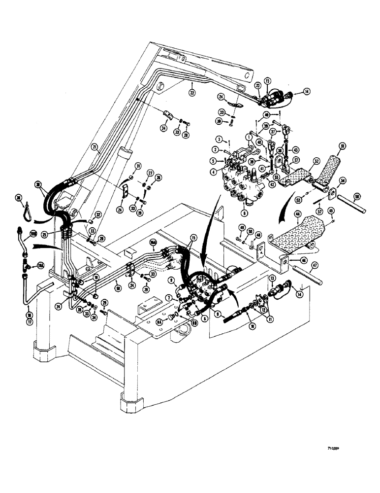
1

T40233

HANDLE

valve

2шт.

2

T40551

PIN

clevis (1/2" dia. x 1-3/8")

2шт.

3

132-7

COTTER PIN,1/16" x 3/4"

2шт.

4

36640

DRAG LINK

handle

2шт.

5

132-13

PIN

cotter (1/16" dia. x 1-1/2")

2шт.

6

T40083

VALVE ASSEMBLY - parts list Fig. 84

1шт.

7

218-5107

90 ELBOW,90 Degree Elbow, 7/8" - 14 Male JIC x 7/8" - 14 Male ORB

Male, Incl. Ref 8

4шт.

8

237-6010

O-RING,0.097" Thk x 0.755" ID, -910, Cl 6, 90 Duro

1шт.

8a

86512512

PLUG,7/8" - 14 ORB

Valve port (For use when hydraulic plumbing is removed), Incl. Ref 8B

1шт.

8b

237-6010

O-RING,0.097" Thk x 0.755" ID, -910, Cl 6, 90 Duro

1шт.

9

T41832

HOSE

, Serial Range: valve-coupling

2шт.

10

218-445

HYD CONNECTOR,7/8" - 14 Male JIC x 1/2" - 14 Male NPTF

straight, male

2шт.

11

T40267

WASHER

SPARE PART BUSHING - 14 ga. steel

4шт.

12

T42340

BUSHING

rubber

2шт.

13

T40265

COUPLING, BREAK AWAY

quick disconnect, female

4шт.

14

T40274

CAP

dust, coupling

4шт.

15

T41837

TUBE,20, 1.75" L

valve to tube (Special)

2шт.

16

T40263

SPARE PART top auxiliary, Serial Range: -9813801

1шт.

16

T41830

SPARE PART top auxiliary, Serial Range: 9813801-9814980

1шт.

16a

T42621

SPARE PART top auxiliary, Start Serial: 9814981

1шт.

17

T40264

TUBE - bottom auxiliary, Serial Range: -9813801

1шт.

17

T41831

ELECTRIC MOTOR,0.625" OD

TUBE - bottom auxiliary, Serial Range: 9813801-9814980

1шт.

18

T42622

SPARE PART bottom auxiliary, Start Serial: 9814981

1шт.

18a

218-555

TEE,7/8"-14, 37 Degree x 1/2"-14, NPTF Br

TEE - male, Serial Range: -9814981

2шт.

18b

T42511

SPARE PART jumper (For use with overhead guard or L.P. gas), Serial Range: -9814981

2шт.

19

221-525

CAP,1/2" NPT

pipe () 1/2" NPT

2шт.

20

D32833

HOSE ASSY.

tube to tube (30" long - if used)

2шт.

20

D23030

HOSE

tube to tube (36-1/2" long - if used)

2шт.

21

T41828

SPARE PART top auxiliary, on arm, Serial Range: -9814981

1шт.

21

T42625

TUBE,0.625" OD

top auxiliary, on arm, Start Serial: 9814981

1шт.

22

T40559

TUBE

bottom auxiliary, on arm, Serial Range: -9814981

1шт.

22

T42626

TUBE,0.625" OD

bottom auxiliary, on arm, Start Serial: 9814981

1шт.

23

218-485

ELBOW,90 Degree Elbow, 7/8" - 14 Male JIC x 1/2" - 14 Male NPTF

Male

2шт.

24

A13622

PLATE, LOCKING

CLAMP - tube

7шт.

25

D40236

CLAMP

hose

1шт.

26

9635082

NUT,5/16" - 18, Gr 5

1шт.

27

92-5

LOCK WASHER,5/16"

1шт.

28

13-612

BOLT,Hex, 3/8" - 16 x 3/4", Gr 5, Full Thd

If used

2шт.

29

13-628

BOLT,Hex, 3/8" - 16 x 1-3/4", Gr 5

(If used)

2шт.

30

13-620

BOLT,Hex, 3/8" - 16 x 1-1/4", Gr 5, Full Thd

(If used)

2шт.

31

D33552

BUSHING

tube clamp (If used)

4шт.

32

D33829

BUSHING

hose clamp (If used)

1шт.

33

92-6

LOCK WASHER,3/8"

1шт.

34

195-25

WASHER,3/8"

1шт.

35

25-106

NUT,3/8"-16, G5

hex. (3/8" - 16 NC)

1шт.

36

L11541

CABLE TIE,203.2mm L, Nylon

CABLE STRAP plastic, hose tie

1шт.

37

213-6

ADJUSTABLE CLEVIS,1/2"-20 x 3"

connecting rod

3шт.

38

25-118

NUT,1/2"-20, G5

hex. (1/2" - 20 NF)

2-3шт.

39

T40252

CLEVIS

yoke mounting

3шт.

40

132-48

COTTER PIN,1/8" x 1"

3шт.

41

T41620

ROD

linkage

1шт.

42

B12524

CHAIN (AG)

LINK - over center

1шт.

43

T40253

ROD

linkage, pedal control

1шт.

44

T40275

PEDAL

foot, auxiliary hydraulic, one piece control

1шт.

45

219-1

LUBE NIPPLE,1/8" - 27 NPTF

One piece control pedal

1шт.

46

T40276

BRACKET - pedal (Welds to floor plate), one piece control

1шт.

47

T40277

SHAFT - pivot, one piece control pedal

1шт.

48

213-24

ROD

PIN - retainer, one piece control pedal

1шт.

49

13-612

BOLT,Hex, 3/8" - 16 x 3/4", Gr 5, Full Thd

One piece control pedal

1шт.

50

92-6

LOCK WASHER,3/8"

one piece control pedal

1шт.

51

T42452

PEDAL

flip over half, two piece control

1шт.

52

T42457

PEDAL

linkage half, two piece control

1шт.

53

219-1

LUBE NIPPLE,1/8" - 27 NPTF

Two piece control pedal

2шт.

54

T42449

BRACKET

pedal, R.H. (Welds to floor plate), two piece control

1шт.

55

T42450

BRACKET

pedal, L.H. (Welds to floor plate), two piece control

1шт.

56

T42451

AXLE PIN

SHAFT - pivot, two piece control pedal

1шт.

57

138-104

LOCK PIN,3/16" x 2", Slotted

Two piece control pedal

1шт.

Выбрано товаров: 67