Запчасти Case 40XT (09-30) - DOOR, FRONT - WINDSHIELD, GLASS (09) - CHASSIS

Схема запчастей Case 40XT - (09-30) - DOOR, FRONT - WINDSHIELD, GLASS (09) - CHASSIS
8
3
14
8
15
22
15
5
20
17
4
14
5
14
12
6
15
16
10
18
11
19
11
7
6
2
7
24
26
13
23
17
15
16
12
25
1
10
21
9
11
FIT
1:1
100%

Артикул

Название

Примечание

Количество

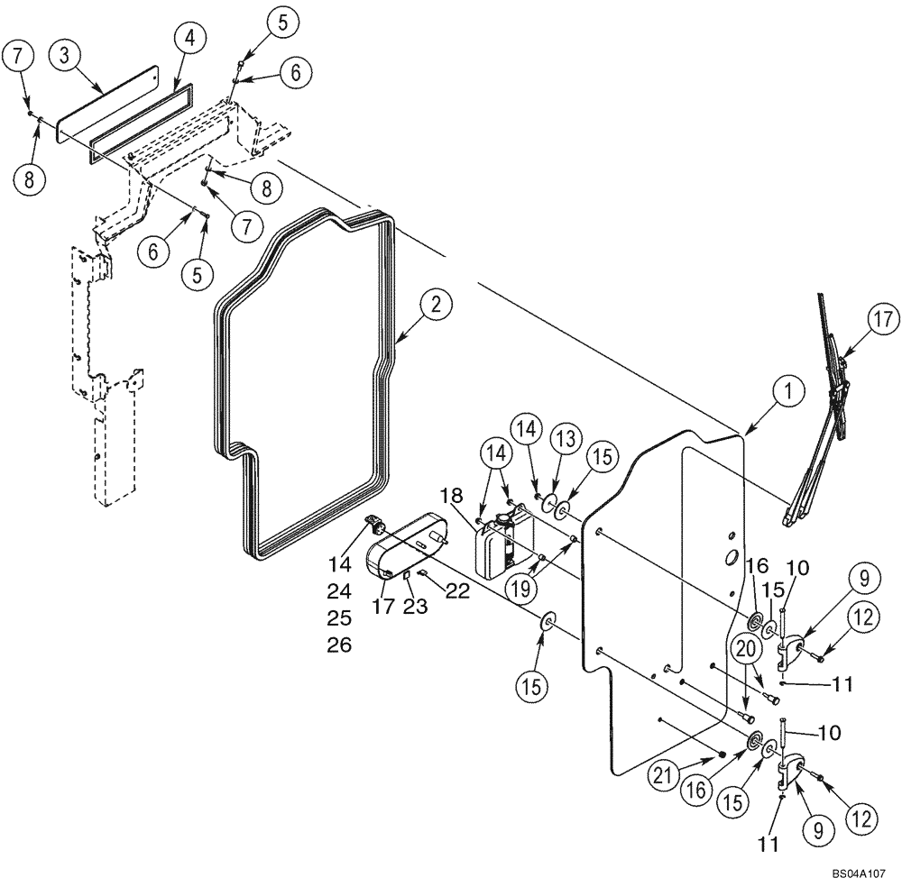
1

86988661

WINDSHIELD

Screen, Tempered; Replaces 428890A1; Incl. in Kit 86989747

1шт.

2

383464A1

SEAL

1шт.

3

402237A1

WINDOW

Door Frame

1шт.

4

394437A3

SEAL, GLASS

Top Window

1шт.

5

614-6025

BOLT,Hex, M6 x 1 x 25mm, Cl 8.8, Full Thd

2шт.

6

103777A1

SEALING WASHER

2шт.

7

832-10406

NUT,M6 x 1, Cl 8

2шт.

8

895-30100

WASHER,6.6mm ID x 15mm OD x 1.6mm Thk

6.6 x 15 x 1.6

2шт.

9

304921A1

HINGE

2шт.

10

178819A3

PIN,10mm OD x 94.55mm L

2шт.

11

235754A1

CLIP,ELECTRICAL

Ring Retaining

2шт.

12

844-8040

BOLT,Hvy Hex, M8 x 40mm, Cl 8.8

2шт.

13

376332A1

WASHER,9mm ID x 60mm OD x 3.4mm Thk

60 mm OD

1шт.

14

825-2408

FLANGE NUT,M8 x 1.25, Flg, Cl 8

Incl. in Kit 86989747 (Quantity 1)

3-4шт.

15

376336A1

RUBBER WASHER

60 mm OD

4шт.

15a

87446347

SPACER

21.5 OD; If Used, Between Ref 15, 16; Not Illustrated

2шт.

16

396848A2

WASHER,22mm ID x 60mm OD x 0.51mm Thk

7/8 x 2-3/8 x 1/16

2шт.

17

398129A2

KIT

Wiper; See Figure 04-22

1шт.

18

322651A1

RESERVOIR ASSY.

Windshield Washer

1шт.

19

397962A2

SPACER

2шт.

20

398162A2

BOLT

M8 x 55

2шт.

21

398811A1

GROMMET

1шт.

22

442962A1

CLIP, WIRE

2шт.

23

86988664

PAD

1шт.

24

86988663

ANGLE

Bottle Tetention; Incl. in Kit 86989747

1шт.

25

221429A2

SPACER

Incl. in Kit 86989747

1шт.

26

248-1210

GROMMET,1/4" ID x 1" x .062", Diag Cut

.312 in ID; Incl. in Kit 86989747

1шт.

86989747

KIT

Front Glass Service Kit; Incl. 1, 14 (Quantity 1), 24, 25, 26, and 09-32, Ref 4

1шт.

398298A2

HARNESS

Front Door; See Figure 04-17

1шт.

A149804

FUSE

30 amp; See Figure 04-13

1шт.

Выбрано товаров: 30