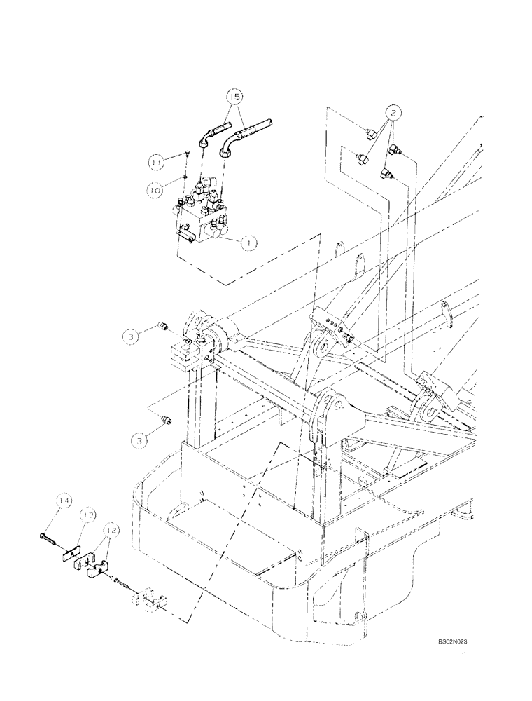
Запчасти Case 686G (8-14A) - VALVE MOUNTING & FITTINGS, LIFT & CROWD (ASN 686G JFE0000705; 686GXR JFE0001847; 688G JFE0003612) (08) - HYDRAULICS

Схема запчастей Case 686G - (8-14A) - VALVE MOUNTING & FITTINGS, LIFT & CROWD (ASN 686G JFE0000705; 686GXR JFE0001847; 688G JFE0003612) (08) - HYDRAULICS
3
3
11
1
13
10
12
15
14
2
FIT
1:1
100%

Артикул

Название

Примечание

Количество

1

450640A1

VALVE

Lift and Crowd

1шт.

Component Parts Not Serviced Separately

1шт.

See Figure 8-14B For Fittings

1шт.

See Figure 8-14C For Lift & Crowd Hoses

1шт.

2

309956A1

ADAPTER

4шт.

3

318087A1

ADAPTER

2шт.

10

430112A1

SPECIAL WASHER

3шт.

11

614-10020

BOLT,Hex, M10 x 1.5 x 20mm, Cl 8.8, Full Thd

3шт.

12

365764A1

CLAMP

2шт.

13

310076A1

PLATE

1шт.

14

426-528

BOLT,Hex, 5/16" - 18 x 1-3/4", Gr 8

1шт.

Выбрано товаров: 0