Качественные детали и логистика
Оригинальные и аналоговые запчасти с доставкой по России, Казахстану и Беларуси
©2022 PartSell ООО "Система" ИНН 2463123282 ОГРН 1212400004838
Центральный офис: г. Красноярск, Академика Киренского, д.87, пом.4
Телефон: 8 (800) 777-65-74 Email: zakaz@partsell.ru
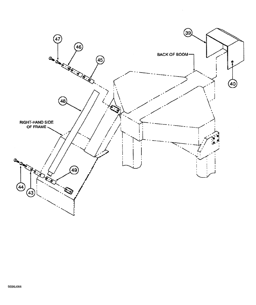
(09-06) - BOOM REST TUBE AND MOUNTING
№
Артикул
Название
Примечание
Количество
39
339081A1
COVER
boom end
1шт.
40
318207A1
LOCK BOLT
lock, 3/8 NC x 3/4 inch
3шт.
43
339080A1
PLATE
cover
44
413-636
BOLT,Hex, 3/8" - 16 x 2-1/4", Gr 5
2шт.
45
339082A1
CLAMP
tube
46
339083A1
47
424-764
BOLT,Hex, 7/16" - 14 x 4", Gr 2
hex, 7/16 NC x 4 inch, grade 2
48
339084A1
TUBE
boom rest
49
339085A1
Выбрано товаров: 0