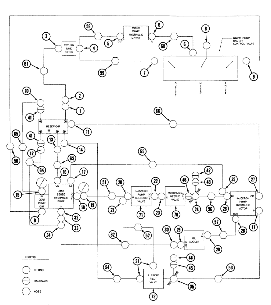
Запчасти Case BPGHP335 (09-27) - BPDHP335 HYDRAULIC CIRCUIT

Схема запчастей Case BPGHP335 - (09-27) - BPDHP335 HYDRAULIC CIRCUIT
6
64
70
58
11
9
15
42
7
71
66
51
55
54
52
35
53
29
10
1
43
24
60
59
2
34
27
16
9
29
3
44
41
46
22
17
20
18
19
26
32
25
13
30
57
50
17
45
65
62
56
31
61
28
6
72
33
8
23
14
5
12
4
63
21
41
FIT
1:1
100%

Артикул

Название

Примечание

Количество

1

218-5064

HYD CONNECTOR,1-1/16" - 12 Male JIC x 1-1/16" - 12 Male ORB

Incl. 237-6012

1шт.

237-6012

O-RING,0.116" Thk x 0.924" ID, -912, Cl 6, 90 Duro

1шт.

2

98001200

VALVE, CHECK

1шт.

3

218-5108

ELBOW,90 Degree Elbow, 1-1/16" - 12 Male JIC x 1-1/16" - 12 Male ORB

Incl. 237-6012

1шт.

237-6012

O-RING,0.116" Thk x 0.924" ID, -912, Cl 6, 90 Duro

1шт.

4

218-5239

TEE,1-1/16" - 12 Male JIC x 1-1/16" - 12 Male JIC x 1-1/16" - 12 Male ORB

1-1/16 fl x fl x Or, Includes 237-6012

1шт.

237-6012

O-RING,0.116" Thk x 0.924" ID, -912, Cl 6, 90 Duro

1шт.

5

218-5353

HYD CONNECTOR,1 1/16"-12, 37 Degree x 3/4"-16, O-Ring

Includes 237-6008

1шт.

237-6008

O-RING,0.087" Thk x 0.644" ID, -908, Cl 6, 90 Duro

1шт.

6

218-5106

90 ELBOW,90 Degree Elbow, 3/4" - 16 Male JIC x 3/4" - 16 Male ORB

Incl. 237-6008

2шт.

237-6008

O-RING,0.087" Thk x 0.644" ID, -908, Cl 6, 90 Duro

1шт.

7

218-5123

ELBOW,90 Degree Elbow, 1-1/16" - 12 Male JIC x 7/8" - 14 Male ORB

1-1/16 fl x 7/8 Or, Includes 237-6010

1шт.

237-6010

O-RING,0.097" Thk x 0.755" ID, -910, Cl 6, 90 Duro

1шт.

8

214389

PLUG,3/4" - 16 ORB

Includes 237-6008

1шт.

237-6008

O-RING,0.087" Thk x 0.644" ID, -908, Cl 6, 90 Duro

1шт.

9

218-5121

ELBOW,90 Degree Elbow, 3/4" - 16 Male JIC x 7/8" - 14 Male ORB

Includes 237-6010

2шт.

237-6010

O-RING,0.097" Thk x 0.755" ID, -910, Cl 6, 90 Duro

1шт.

10

218-5525

ELBOW,45 Degree, 1 5/16"-12 x 1 5/8"-12, 37 Degree

1-5/16 fl x 1-5/8 Or, Includes 237-6020

1шт.

237-6020

O-RING,0.118" Thk x 1.475" ID, -920, Cl 6, 90 Duro

1шт.

11

218-5320

ELBOW,90 Degree, 7/16"-20, 37 Degree x 3/4"-16, O-Ring

7/16 fl x 3/4 Or, Includes 237-6008

1шт.

237-6008

O-RING,0.087" Thk x 0.644" ID, -908, Cl 6, 90 Duro

1шт.

12

218-5086

HYD CONNECTOR,1 5/16"-12, 37 Degree x 1 5/8"-12, O-Ring

5/16-12 fl x 1-5/8, Includes 237-6020

1шт.

237-6020

O-RING,0.118" Thk x 1.475" ID, -920, Cl 6, 90 Duro

1шт.

13

218-5058

HYD CONNECTOR,9/16" - 18 Male JIC x 3/4" - 18 Male ORB

9/16 fl x 3/4 Or, Includes 237-6008

1шт.

237-6008

O-RING,0.087" Thk x 0.644" ID, -908, Cl 6, 90 Duro

1шт.

14

218-5359

HYD CONNECTOR,7/16"-20, 37 Degree x 3/4"-16, O-Ring

7/16 fl x 3/4 Or, Includes 237-6008

1шт.

237-6008

O-RING,0.087" Thk x 0.644" ID, -908, Cl 6, 90 Duro

1шт.

15

302869A1

ELBOW

Includes 237-6016, At Pressure Gauge

1шт.

237-6016

O-RING,0.116" Thk x 1.171" ID, -916, Cl 6, 90 Duro

1шт.

16

218-5128

ELBOW,90° Elbow, 9/16" - 18 Male JIC x 3/4" - 16 Male ORB

Incl. 237-6008

1шт.

237-6008

O-RING,0.087" Thk x 0.644" ID, -908, Cl 6, 90 Duro

1шт.

17

218-5103

90 ELBOW,90 Degree Elbow, 7/16" - 20 Male JIC x 7/16" - 20 Male ORB

7/16 fl x adj Or, Includes 237-6004

2шт.

237-6004

O-RING,0.072" Thk x 0.351" ID, -904, Cl 6, 90 Duro

1шт.

18

302341A1

KIT

1-1/16, With Hardware

1шт.

19

302870A1

ELBOW

Includes 237-6012, At Pressure Gauge

1шт.

237-6012

O-RING,0.116" Thk x 0.924" ID, -912, Cl 6, 90 Duro

1шт.

20

302871A1

ELBOW

Includes 237-6012

1шт.

237-6012

O-RING,0.116" Thk x 0.924" ID, -912, Cl 6, 90 Duro

1шт.

21

218-1092

ELBOW,45 Degree, 7/16-20" NPTF x 1/4"-18 37 Degree

7/16 fl x 1/4 PT

1шт.

22

218-5120

ELBOW,90 Degree Elbow, 3/4" - 16 Male JIC x 1-1/16" - 12 Male ORB

3/4 fl x 1-1/16 adj Or, Includes 237-6012

1шт.

237-6012

O-RING,0.116" Thk x 0.924" ID, -912, Cl 6, 90 Duro

1шт.

23

253510A1

FITTING

3/4 fem sw x 3/4 Or, Includes 237-6008

1шт.

237-6008

O-RING,0.087" Thk x 0.644" ID, -908, Cl 6, 90 Duro

1шт.

24

218-674

FITTING,Blkhd, 3/4"-16, 37 Degree x 3/4"-16, 37 Degree

3/4 fl x blkhd fl

1шт.

25

218-1022

HYD CONNECTOR,7/16"-20, 37 Degree x 1/4"-18, NPTF

7/16 fl x 1/4 PT

1шт.

26

302872A1

ELBOW

Includes 237-6010

1шт.

237-6010

O-RING,0.097" Thk x 0.755" ID, -910, Cl 6, 90 Duro

1шт.

27

218-491

ELBOW,90 Degree Elbow, 7/16" - 20 Male JIC x 1/4" - 18 Male NPTF

1/4 PT x 7/16 fl

1шт.

28

218-5056

HYD CONNECTOR,1/2"-20, 37 Degree x 1/2"-20, O-Ring

1/2 fl x Or, Includes 237-6005

1шт.

237-6005

O-RING,0.072" Thk x 0.414" ID, -905, Cl 6, 90 Duro

1шт.

29

218-1046

ELBOW,90 Degree, 1 1/16"-12, 37 Degree x 1"-11 1/2, NPTF

1-1/16 fl x 1 PT

2шт.

30

218-486

ELBOW,90 Degree Elbow, 1-1/16" - 12 Male JIC x 3/4" - 14 Male NPTF

1шт.

31

218-5283

ELBOW,90 Degree, 7/16"-20, 37 Degree x 9/16"-18, O-Ring

7/16 fl x 9/16 Or, Includes 237-6006

2шт.

237-6006

O-RING,0.078" Thk x 0.468" ID, -906, Cl 6, 90 Duro

1шт.

32

302340A1

KIT

1-5/8, With Hardware

1шт.

33

218-5315

HYD CONNECTOR

1-5/8 male Or x 1-1/16 fe, Includes 237-6020

1шт.

237-6020

O-RING,0.118" Thk x 1.475" ID, -920, Cl 6, 90 Duro

1шт.

34

218-5185

TEE,1-1/16" - 12 Male JIC x 1-1/16" - 12 Male JIC x 1-1/16" - 12 Male ORB

1-1/16 OR x fl x fl, Includes 237-6012

1шт.

237-6012

O-RING,0.116" Thk x 0.924" ID, -912, Cl 6, 90 Duro

1шт.

35

218-673

FITTING,Blkhd, 9/16"-18, 37 Degree x 9/16"-18, 37 Degree

9/16 fl x blkhd fl

1шт.

41

98010301

FILTER

3-3/8 in

2шт.

42

237-6008

O-RING,0.087" Thk x 0.644" ID, -908, Cl 6, 90 Duro

1шт.

43

218-1255

BHD LOCK NUT,Blkhd, 3/4"-16

1шт.

44

237-6006

O-RING,0.078" Thk x 0.468" ID, -906, Cl 6, 90 Duro

1шт.

45

218-1254

LOCK NUT,Blkhd, 9/16"-18

1шт.

46

496-11081

WASHER,13/16" x 1 1/2" x .134", HDN

2шт.

50

302715A1

HOSE ASSY.

345 mm (13-19/32 in), Gear Pump Outlet To Mixer Pump Control Valve Inlet

1шт.

51

302718A1

HOSE ASSY.

580 mm (22-27/32 in), Load Sense Hydraulic Pump Outlet To Injection Pump Solenoid Valve Inlet

1шт.

52

302720A1

HOSE ASSY.

315 mm (12-7/16 in), Injection Pump Solenoid Valve Inlet To 2-Speed Solenoid Valve

1шт.

53

302721A1

HOSE ASSY.

310 mm (12-1/4 in), 2-Speed Solenoid Valve To Injection Pump Hydraulic Motor P-Port

1шт.

54

302722A1

HOSE ASSY.

970 mm (38-3/16 in), Reservoir To 2-Speed Solenoid Valve

1шт.

55

302723A1

HOSE ASSY.

565 mm (22-1/4 in), Load Sense Hydraulic Pump LS-Port To Injection Pump Hydraulic Motor Inlet

1шт.

56

302724A1

HOSE ASSY.

535 mm (21-1/16 in), Needle Valve Outlet To Injection Pump Hydraulic Motor Inlet

1шт.

57

302725A1

HOSE ASSY.

705 mm (27-3/4 in), Injection Pump Hydraulic Motor Outlet To Oil Cooler Inlet

1шт.

58

302726A1

HOSE ASSY.

370 mm (14-5/8 in), Mixer Pump Hydraulic Motor Outlet To Filter

1шт.

59

302727A1

HOSE ASSY.

620 mm (24-7/16 in), Mixer Pump Control Valve Outlet To Filter

1шт.

60

302728A1

HOSE ASSY.

380 mm (15 in), Mixer Pump Control Valve To Mixer Pump Hydraulic Motor Inlet

1шт.

61

302729A1

HOSE ASSY.

340 mm (13-7/16 in), Return Line Filter To Reservoir

1шт.

62

302730A1

HOSE ASSY.

1435 mm (56-1/2 in), Oil Cooler Outlet To Load Sense Hydraulic Pump Inlet

1шт.

63

302731A1

HOSE ASSY.

310 mm (12-1/4 in), Load Sense Hydraulic Pump CD-Port To Reservoir

1шт.

64

302732A1

HOSE ASSY.

365 mm (14-3/8 in), Load Sense Hydraulic Pump Inlet To Reservoir

1шт.

65

302733A1

HOSE ASSY.

565 mm (22-1/4 in), Gear Pump Inlet To Reservoir

1шт.

66

302734A1

HOSE ASSY.

920 mm (36-1/4 in), Injection Pump Hydraulic Motor CD-Port To Reservoir

1шт.

70

99810151

VALVE, CONTROL

Motorized Needle Valve, Component Parts Not Serviced Separately

1шт.

896-11030

WASHER,33mm ID x 56mm OD x 5mm Thk

33 x 56 x 5

1шт.

496-21081

WASHER,13/16" x 1 1/2" x .179", HDN

1шт.

71

99821112

VALVE, CONTROL

Injection Pump Solenoid Valve, Component Parts Not Serviced Separately

1шт.

98011025

BRACKET

1шт.

413-456

BOLT,Hex, 1/4" - 20 x 3-1/2", Gr 5

1/4 x 3-1/2

2шт.

496-21028

WASHER,.281" x 5/8" x .075", HDN

9/32 x 5/8 x 5/64

4шт.

231-1444

NUT,1/4"-20, GB

2шт.

72

15083011

VALVE, CONTROL

2-Speed Pilot Solenoid Valve, Component Parts Not Serviced Separately

1шт.

Выбрано товаров: 92