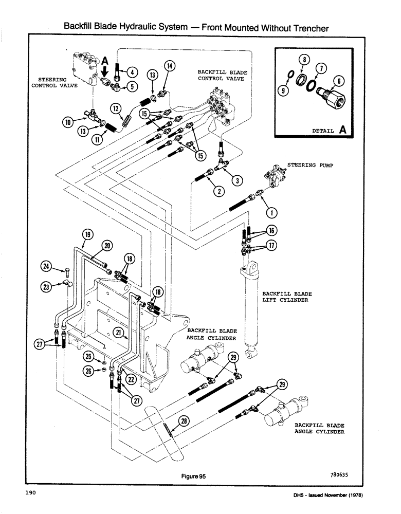
Запчасти Case DH5 (190) - BACKFILL BLADE HYDRAULIC SYSTEM - FRONT MOUNTED WITHOUT TRENCHER (35) - HYDRAULIC SYSTEMS

Схема запчастей Case DH5 - (190) - BACKFILL BLADE HYDRAULIC SYSTEM - FRONT MOUNTED WITHOUT TRENCHER (35) - HYDRAULIC SYSTEMS
FIT
1:1
100%

Артикул

Название

Примечание

Количество

1

218-5059

HYD CONNECTOR,3/4"-16, 37 Degree x 3/4"-16, O-Ring

CONNECTOR, HYD., 3/4"-16, 37º x 3/4"-16, O-Ring

1шт.

2

H323857

HOSE ASSY.

HOSE - 3/4 x 94 (3/4 JIC Fm Swv Ends)

1шт.

3

218-5292

TEE,37 Degree, 3/4"-16, 7/8"-14 O-Ring Run, 3/4"-16

1шт.

237-6010

O-RING,0.097" Thk x 0.755" ID, -910, Cl 6, 90 Duro

(7/8)

1шт.

4

H202150

HOSE ASSY.

HOSE - 3/8 x 10 1/2 (3/4 JIC Fm Swv Ends)

1шт.

5

218-5121

ELBOW,90 Degree Elbow, 3/4" - 16 Male JIC x 7/8" - 14 Male ORB

- 90 degree Adj

1шт.

237-6010

O-RING,0.097" Thk x 0.755" ID, -910, Cl 6, 90 Duro

(7/8)

1шт.

D61608

SLEEVE

ADAPTER - Pressure Beyond

1шт.

6

NSS

NOT SOLD SEPARAT

BODY

1шт.

7

A18414

O-RING,0.07" Thk x 0.489" ID, -14, Cl 5, 75 Duro

1шт.

8

D37070

SEAL,13.16mm ID x 15.85mm OD x 1.25mm Thk

WASHER - Backup

1шт.

9

A7982

O-RING,0.103" Thk x 0.612" ID, -114, Cl 5, 75 Duro

1шт.

10

H356634

TEE

1шт.

11

H93385

HOSE

- 3/4 x 7

1шт.

12

H315986

SPRING

- Hose

1шт.

13

214-254

HOSE CLAMP,#12, 0.69" - 1.25", Type F Worm

CLAMP - Hose

2шт.

14

217-398

FITTING,3/4" Hose Barb x 7/8" - 14 Male ORB

CONNECTOR

1шт.

237-6010

O-RING,0.097" Thk x 0.755" ID, -910, Cl 6, 90 Duro

(7/8)

1шт.

15

218-5354

HYD CONNECTOR,9/16"-18, 37 Degree x 7/8"-14, O-Ring

FITTING, 9/16"-18, 37° x 7/8"-14, O-Ring

6шт.

237-6010

O-RING,0.097" Thk x 0.755" ID, -910, Cl 6, 90 Duro

(7/8)

1шт.

16

H350942

HOSE,0.25" ID x 140.00", SAE 100R1

2шт.

17

218-5058

HYD CONNECTOR,9/16" - 18 Male JIC x 3/4" - 18 Male ORB

CONNECTOR

2шт.

18

H357590

HOSE,0.25" ID x 115.00", SAE 100R1A

4шт.

19

H634451

TUBE ASSEMBLY (3/8 O.D.) 0.375" OD

1шт.

20

H634469

TUBE ASSEMBLY (3/8 O.D.) 0.375" OD

1шт.

21

H634477

TUBE ASSEMBLY (3/8 O.D.) 0.375" OD

1шт.

22

H634485

TUBE ASSY.,0.375" OD

TUBE ASSEMBLY (3/8 O.D.)

1шт.

23

H59345

CLAMP

- Tube

2шт.

24

113-121

BOLT,Hex, 5/16" - 18 x 2", Gr 5

- NC HH (5/16 x 1 3/4)

2шт.

25

195-521

WASHER,5/16", SAE

- Flat (5/16)

2шт.

26

131-176

LOCK NUT,Prev Torque, Hex, 5/16" - 18, Gr A

NUT - NC Hex C/L (5/16)

2шт.

27

H195362

HYDRAULIC HOSE,6.35 mm ID x 685.80 mm, SAE 100R1

6.35 mm ID x 685.80 mm, SAE 100R1

4шт.

28

H52548

SPRING

1шт.

29

218-5105

ELBOW,90 Degree Elbow, 9/16" - 18 Male JIC x 9/16" - 18 Male ORB

- 90 degree Adj

4шт.

218-5005

O-RING,0.078" Thk x 0.468" ID, -906, Cl 6, 90 Duro

(9/16)

1шт.

218-5006

O-RING,0.087" Thk x 0.644" ID, -908, Cl 6, 90 Duro

(3/4)

1шт.

218-5006

O-RING,0.087" Thk x 0.644" ID, -908, Cl 6, 90 Duro

1шт.

218-5006

O-RING,0.087" Thk x 0.644" ID, -908, Cl 6, 90 Duro

(3/4)

1шт.

Выбрано товаров: 38