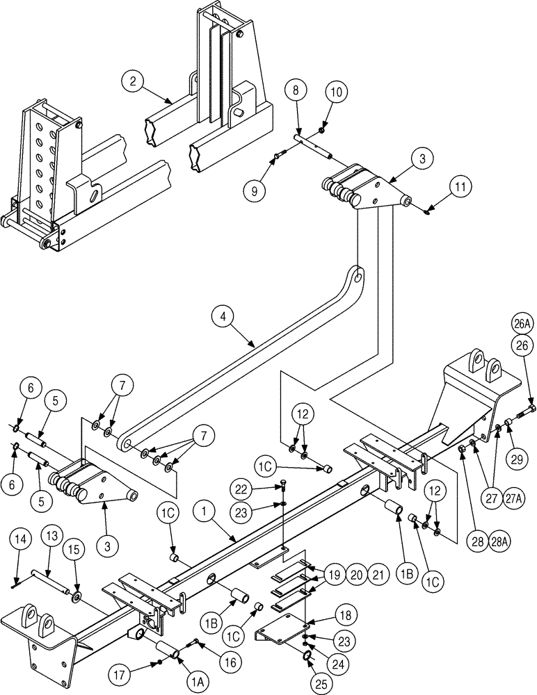
Запчасти Case 6010 (09-03) - PIPE LOADER - PIPE LIFTER (89) - TOOLS

Схема запчастей Case 6010 - (09-03) - PIPE LOADER - PIPE LIFTER (89) - TOOLS
26
11
22
7
3
1c
23
19
25
14
18
29
3
28a
13
4
5
27
5
28
1b
10
27a
26a
20
24
1
17
15
1b
1b
6
12
1c
1a
1c
7
12
9
1c
23
2
6
8
21
FIT
1:1
100%

Артикул

Название

Примечание

Количество

1

347839A3

FRAME ASSY

Drill Pipe Loader, Replaces: 347839A2, Includes: 1A, 1B, 1C

1шт.

1a

NSS

NOT SOLD SEPARAT

Bushing, Cylinder Bracket, Welded-On, Not Serviced Separately

1шт.

1b

NSS

NOT SOLD SEPARAT

Tube, Bushing, Replaces 326029A1, Welded-On, Not Serviced Separately

2шт.

1c

338980A1

BEARING

Welded-On

4шт.

2

347836A1

Drill Pipe, See figure 9-04

1шт.

3

346590A3

ARM

Lifter, Replaces 346590A2, 346590A1

2шт.

4

326074A2

LINK

1шт.

5

347819A1

PIN

3шт.

6

100-11100

SNAP RING,#100, Ext

6шт.

7

495-11106

WASHER,1", SAE

(1-1/16 x 2 x 1/8")

10шт.

8

326013A1

PIN

Lifter

2шт.

9

413-440

BOLT,Hex, 1/4" - 20 x 2-1/2", Gr 5

2шт.

10

231-1444

NUT,1/4"-20, GB

2шт.

11

219-8

LUBE NIPPLE,1/4" - 28 NPTF

2шт.

12

495-11106

WASHER,1", SAE

(1-1/16 x 2 x 1/8")

8шт.

13

326011A1

PIN

Cylinder

1шт.

14

432-1632

COTTER PIN,1/4" x 2"

1/4" x 2"

1шт.

15

496-21106

WASHER,1 1/16" x 2" x .209", HDN

1шт.

16

413-440

BOLT,Hex, 1/4" - 20 x 2-1/2", Gr 5

1шт.

17

231-1444

NUT,1/4"-20, GB

1шт.

18

347848A2

BRACKET

Replaces: 347848A1

1шт.

19

377006A1

SHIM

1,52 mm

1шт.

20

376630A1

SHIM

3,42 mm

1шт.

21

376631A1

SHIM

6,35 mm

1шт.

22

413-840

BOLT,Hex, 1/2" - 13 x 2-1/2", Gr 5

1/2 x 2-1/2

4шт.

23

496-21053

WASHER,17/32" x 1 1/16" x .134"

Hardened

8шт.

24

231-1448

NUT,1/2"-13, GB

4шт.

25

100-11175

SNAP RING,#175, Ext

1шт.

26

413-1240

BOLT,Hex, 3/4" - 10 x 2-1/2", Gr 5

Used without Spacer, Ref 29, No Longer Used, Order: 26A, 27A, 28A, 29

7шт.

26a

426-1248

BOLT,Hex, 3/4" - 10 x 3", Gr 8

Replaces: 26

7шт.

27

496-31081

WASHER,13/16" x 1 1/2" x .219", HDN

13/16 x 1-1/2 x 7/32, Hardened, Used Without Spacer, Ref 29, No Longer Used, Order: 26A, 27A, 28A, 29

14шт.

27a

496-41081

WASHER,13/16" x 1 3/4" x .219", HDN

Replaces 27

14шт.

28

232-41112

NUT,3/4"-10, GC

Used without Spacer, Ref 29, No Longer Used, Order: 26A, 27A, 28A, 29

7шт.

28a

429-1012

NUT,3/4"-10, G8

Replaces 28

7шт.

29

376446A1

SPACER

Used With 26A, 27A, 28A

7шт.

Выбрано товаров: 35