Запчасти Doosan Daewoo COVER ASSY BODY PARTS

12
13
14
10
11
12
13
14
4
1
12
13
14
2
12
5
6
7
8
9
15
3
13
14
FIT
1:1
100%

Артикул

Название

Примечание

Количество

-

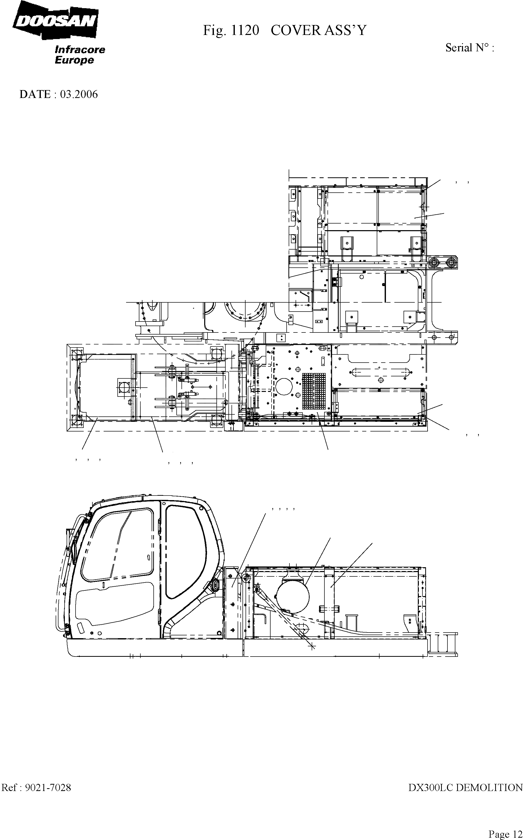
9621-1118

COVER ASS'Y

SC: D

-2шт.

1

9621-1114

COVER FRONT

1шт.

2

9621-1113

COVER REAR

1шт.

3

9195-1402

SUPPORT

1шт.

4

9621-1115

AIR CLEANER COVER

1шт.

5

9621-1117

COVER

1шт.

6

S0509253

BOLT

3шт.

7

S4012533

NUT

3шт.

8

S5102503

WASHER;SPRING

3шт.

9

S5010513

WASHER;PLAIN

3шт.

10

9621-1130

UNDER COVER

1шт.

11

9621-1131

UNDER COVER

1шт.

12

S0560466

BOLT

22шт.

13

S5102703

WASHER;SPRING

22шт.

14

DS401188

WASHER;PLAIN

22шт.

15

9124-1016

BAND ASSЎЇY

2шт.

Выбрано товаров: 16