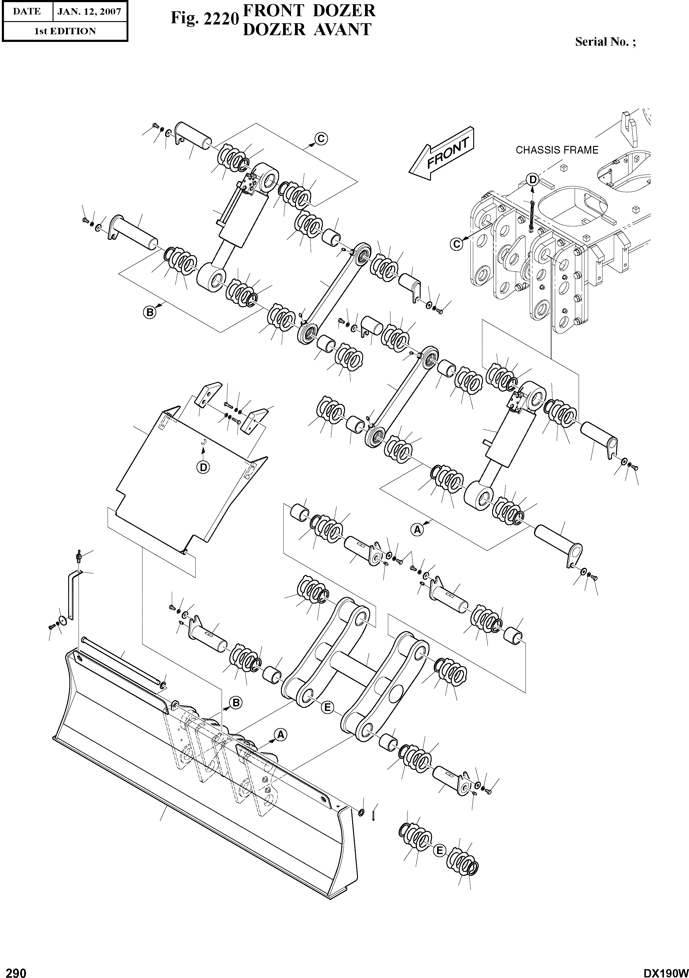
Запчасти Doosan Daewoo FRONT DOZER POWER TRAIN

32
10
15
11
12
6
14
13
13
14
31
10
11
8
2
12
15
32
32
14
13
13
14
32
7
25
32
14
13
5
15
12
15
13
11
14
10
32
25
11
13
12
14
32
10
13
14
13
32
14
7
32
15
25
32
19
15
5
14
21
13
20
32
18
25
14
13
32
17
16
14
3
20
13
13
21
14
32
19
32
14
13
6
32
12
14
11
13
10
15
15
14
13
13
14
32
8
12
11
15
10
28
11
32
12
9
26
9
10
25
12
11
11
12
25
15
13
10
27
14
9
32
15
13
25
15
29
22
30
14
4
32
24
13
14
15
32
32
14
13
14
13
4A
12
11
10
15
4A
32
24
23
9
15
32
25
1
13
14
14
13
32
15
5A
5A
5A
5A
4A
4
FIT
1:1
100%

Артикул

Название

Примечание

Количество

-

K1006554C

BLADE ASS'Y-FRONT

SC: D

-2шт.

1

K1006555B

BLADE;DOZER

desc: LAME DE DOZER

1шт.

2

K1008330A

CYLINDER;DOZER(L.H)

desc: CYLINDRE DE DOZER

1шт.

3

K1008331A

CYLINDER;DOZER(R.H)

desc: CYLINDRE DE DOZER

1шт.

4

K1006556B

LINK

desc: LIEN

1шт.

4A

K1006525A

BUSHING

desc: . DOUILLE

4шт.

5

K1006464B

LINK

desc: LIEN

2шт.

5A

K1006526

BUSHING

desc: . DOUILLE

2шт.

6

K1006515B

PIN

desc: GOUJON D'ASSEMBLAGE

2шт.

7

K1024034

PIN

desc: GOUJON D'ASSEMBLAGE

2шт.

8

K1006517B

PIN

desc: GOUJON D'ASSEMBLAGE

2шт.

9

K1007931B

PIN

desc: GOUJON D'ASSEMBLAGE

4шт.

10

S0515066

BOLT

desc: BOULON A 6 PANS

10шт.

11

S5102703

WASHER;SPRING

desc: RONDELLE ELASTIQUE

10шт.

12

4114-4078A

WASHER

desc: CALE

10шт.

13

DS7752012

SHIM

desc: ENTERTOISE

24шт.

14

DS7752013

SHIM

desc: ENTERTOISE

24шт.

15

2180-9055

SEAL;DUST

desc: BAGUE D'ETANCHEITE

16шт.

16

K1008154B

COVER

desc: COUVERCLE

1шт.

17

K1003383A

RUBBER

desc: CAOUTCHOUC

1шт.

18

K1003405A

RUBBER

desc: CAOUTCHOUC

1шт.

19

S0512566

BOLT

desc: BOULON A 6 PANS

4шт.

20

S5010613

WASHER;PLAIN

desc: RONDELLE

4шт.

21

S5102603

WASHER;SPRING

desc: RONDELLE ELASTIQUE

4шт.

22

K1004079

PIN

desc: GOUJON D'ASSEMBLAGE

1шт.

23

S5735751

COTTER PIN

desc: CLAVETTE DE PIN

1шт.

24

DS0401189

WASHER

desc: CALE

2шт.

25

S6710043

NIPPLE

desc: GRAISSEUR

8шт.

26

K1000813

BRACKET

desc: SUPPORT

2шт.

27

K1002629

REFLECTOR

desc: REFLECTEUR

2шт.

28

S3051201

BOLT;WING

desc: BOULON D'AILE

2шт.

29

S5102203

WASHER;SPRING

desc: RONDELLE ELASTIQUE

2шт.

30

S3450853

SCREW

desc: VIS

2шт.

31

K1014452B

CHAIN;DOZER CYL. COVER

desc: CHAINE

1шт.

32

DS7752078

SHIM

desc: ENTERTOISE

24шт.

Выбрано товаров: 35