Запчасти Doosan Daewoo CABIN MOUNTING BODY PARTS

12
12
12
12
12
13
13
12
12
14
14
13
13
11
11
14
14
8
11
9
11
10
3
8
9
10
6
10
5
6
9
2
7
1
8
9
10
10
9
7
10
10
9
8
9
10
7
9
4
8
10
9
8
FIT
1:1
100%

Артикул

Название

Примечание

Количество

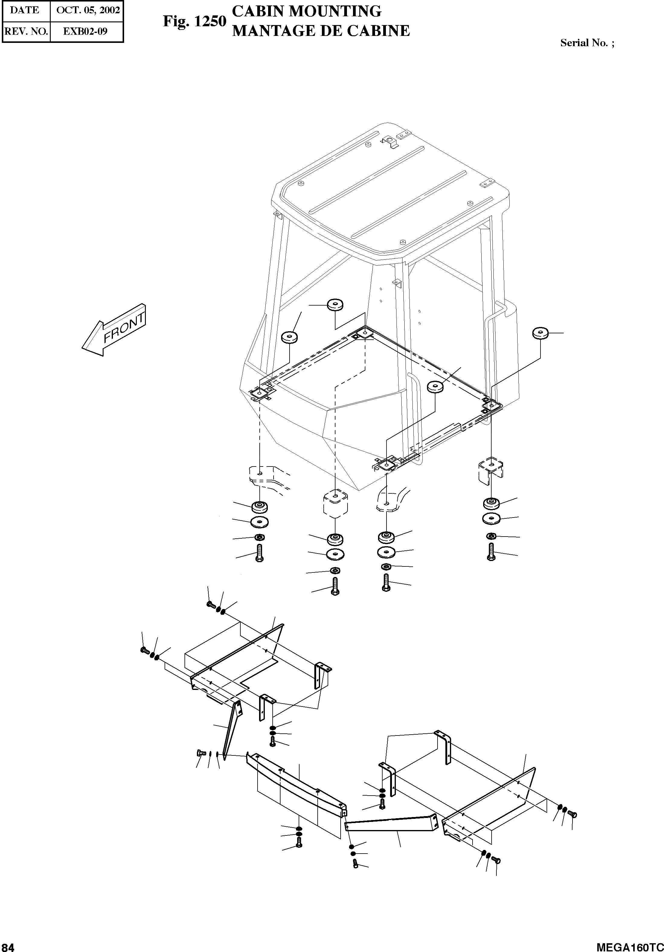
-

4622-1524

CAB MOUNTS & COVER ASS'Y

SC: D

-2шт.

1

4627-1626

COVER;CENTER

desc: COUVERCLE

1шт.

2

4627-1610A

COVER(L.H)

desc: COUVERCLE

1шт.

3

4627-1618B

COVER(R.H)

desc: COUVERCLE

1шт.

4

4627-1619

COVER(L.H)

desc: COUVERCLE

1шт.

5

4627-1620

COVER(R.H)

desc: COUVERCLE

1шт.

6

4197-2405A

BRACKET

SERIAL: 1001-1023

4шт.

6

4197-2405B

BRACKET

SERIAL: 1024

4шт.

7

S0509053

BOLT M8X1.25X25

desc: BOULON A 6 PANS

12шт.

8

S0508653

BOLT M8X1.25X16

desc: BOULON A 6 PANS

14шт.

9

S5102503

WASHER;SPRING M8

desc: RONDELLE ELASTIQUE M8

26шт.

10

2114-1058D29

WASHER;PLAIN M8

desc: RONDELLE

26шт.

11

S0576261

BOLT;HEX. M24X3.0X160

SERIAL: 1001-1022

4шт.

11

S0576266

BOLT;HEX. M24X3.0X160

SERIAL: 1023

4шт.

12

2161-9413

MOUNT;CAB CBC 45-2-9

desc: CAOUTCHOUC

8шт.

13

4114-4156A

WASHER;REBOUND

desc: RONDELLE

4шт.

14

2114-1831

WASHER;HARD

desc: RONDELLE

4шт.

Выбрано товаров: 0