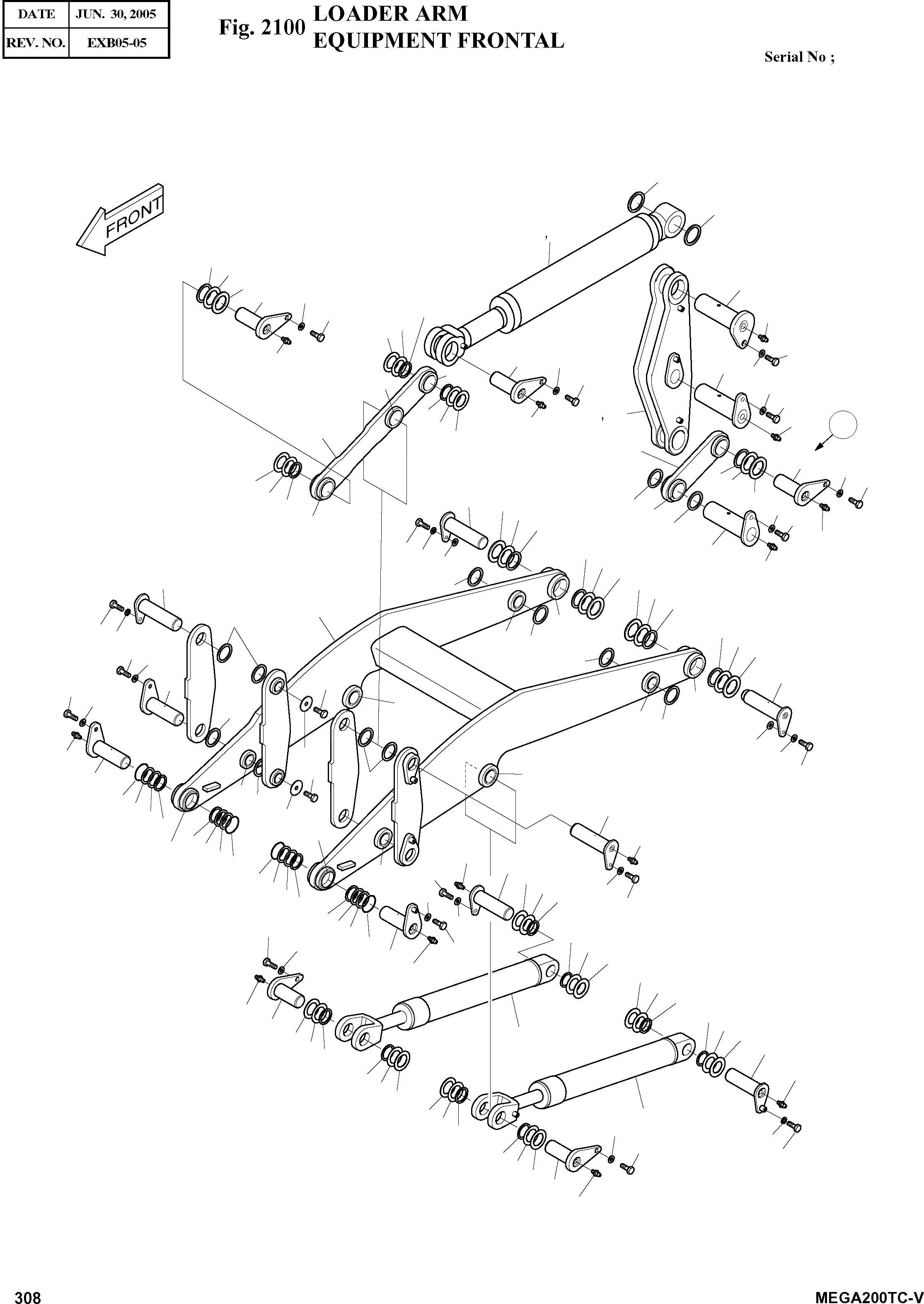
Запчасти Doosan Daewoo LOADER ARM FRONT PARTS

6B
6A
6C
11A
9
10
1A
1A
1A
1A
1C
1C
1D
1D
1B
1B
27
27
4
5
21
16
45
17
42
19
27
41
15
28
29
41
55
42
15
43
42
41
42
41
27
15
54
15
6
28
29
11
26
42
41
27
17
28
23
29
13
16
27
42
21
12
41
20
27
15
41
20
45
42
12
40
15
13
37
13
20
12
20
1
21
20
41
12
42
20
13
41
42
20
18
52
37
7
41
42
21
8
20
40
53
42
15
52
49
41
21
38
36
21
37
33
48
53
32
34
34
15
32
15
33
36
26
41
29
36
28
33
42
42
27
32
34
41
34
42
32
41
27
33
28
42
36
41
38
29
15
29
28
27
27
15
28
31
29
2
29
26
28
27
15
27
28
29
29
2
28
42
27
42
41
41
27
28
29
31
15
FIT
1:1
100%

Артикул

Название

Примечание

Количество

-

701-00442

LOADER;ARM

SC: D

-2шт.

1

701-00020B

ARM;LOADER SUB ASS'Y

desc: EQUIPMENT FRONTALE

1шт.

1A

4110-1381A

BUSHING

desc: . COUSSINET

4шт.

1B

4110-1382A

BUSHING

desc: . COUSSINET

2шт.

1C

110-00003

BUSHING

desc: . COUSSINET

2шт.

1D

110-00001

BUSHING

desc: . COUSSINET

2шт.

2

440-00243B

CYLINDER;LIFT

desc: VERIN DE LEVAGE

2шт.

4

440-00004A

CYLINDER;BUCKET(L.H)

SERIAL: 1001-1011

1шт.

4

440-00004B

CYLINDER;BUCKET(L.H)

SERIAL: 1012-1014

1шт.

4

440-00004C

CYLINDER;BUCKET(L.H)

SERIAL: 1015

1шт.

5

440-00005A

CYLINDER;BUCKET(R.H)

SERIAL: 1001-1011

1шт.

5

440-00005B

CYLINDER;BUCKET(R.H)

SERIAL: 1012-1014

1шт.

5

440-00005C

CYLINDER;BUCKET(R.H)

SERIAL: 1015

1шт.

6

133-00007A

LEVER SUB ASS'Y

desc: ENSEMBLE LEVIER

2шт.

6A

4110-1382A

BUSHING

desc: . COUSSINET

1шт.

6B

110-00003

BUSHING

desc: . COUSSINET

1шт.

6C

110-00005

BUSHING

desc: . COUSSINET

1шт.

7

137-00003B

LINK;BUCKET(R.H)

desc: LEVIER DE GODET

1шт.

8

137-00004B

LINK;BUCKET(R.H)

desc: LEVIER DE GODET

1шт.

9

133-00026B

LEVER;TILT(R.H)

desc: LEVIER

1шт.

10

133-00027B

LEVER;TILT(L.H)

desc: LEVIER

1шт.

11

137-00008A

LINK SUB ASS'Y

desc: ENSEMBLE LEVIER

2шт.

11A

110-00004

BUSHING

desc: . COUSSINET

2шт.

12

2114-1059D63

SHIM 1.0T

desc: CALE

8шт.

13

2114-1059D64

SHIM 2.3T

desc: CALE

4шт.

15

S6710042

NIPPLE;GREASE

desc: GRAISSEUR

22шт.

16

2114-1059D150

SHIM 1.0T

desc: CALE

16шт.

17

2114-1059D153

SHIM 2.0T

desc: CALE

4шт.

18

123-00290

PIN

desc: BROCHE

1шт.

19

123-00006B

PIN

desc: BROCHE

2шт.

20

2180-1106BD5

SEAL;DUST

desc: PARE-POUSSIERES

8шт.

21

2180-1106BD9

SEAL;DUST

desc: PARE-POUSSIERES

12шт.

23

123-00004A

PIN

desc: BROCHE

1шт.

26

4123-2366C

PIN

SERIAL: 1001-1023

2шт.

26

4123-2366C

PIN

SERIAL: 1024

4шт.

27

2180-1106BD3

SEAL;DUST

desc: PARE-POUSSIERES

24шт.

28

2114-1059D88

SHIM 1.2T

desc: CALE

16шт.

29

2114-1059D90

SHIM 2.3T

desc: CALE

12шт.

31

4123-2367B

PIN

desc: BROCHE

2шт.

32

2114-1059D17

SHIM 1.2T

desc: CALE

2шт.

33

2114-1059D18

SHIM 2.3T

desc: CALE

4шт.

34

2180-1106BD13

SEAL;DUST

desc: PARE-POUSSIERES

2шт.

36

2180-1105D9

O-RING

desc: JOINT TORIQUE

4шт.

37

123-00008C

PIN

desc: BROCHE

4шт.

38

123-00148A

PIN

desc: BROCHE

2шт.

40

S5011113

WASHER;PLAIN M20

desc: RONDELLE

2шт.

41

S0511853

BOLT M10X1.5X20

desc: BOULON A 6 PANS

24шт.

42

4114-4104A

WASHER

SERIAL: 1001-1017

24шт.

42

DS0401180

WASHER

SERIAL: 1018

24шт.

43

123-00007C

PIN

desc: BROCHE

2шт.

45

123-00010C

PIN

desc: BROCHE

4шт.

48

137-00006B

LINK;BUCKET(L.H)

desc: LEVIER DE GODET

1шт.

49

137-00005B

LINK;BUCKET(L.H)

desc: LEVIER DE GODET

1шт.

52

S0521361

BOLT M16X2.0X35

desc: BOULON A 6 PANS

4шт.

53

114-00121

WASHER

SERIAL: 1001-1025

4шт.

53

114-00121A

WASHER

SERIAL: 1026

4шт.

54

123-00291

PIN

SERIAL: 1001-1023

2шт.

55

123-00292

PIN

desc: BROCHE

2шт.

Выбрано товаров: 58