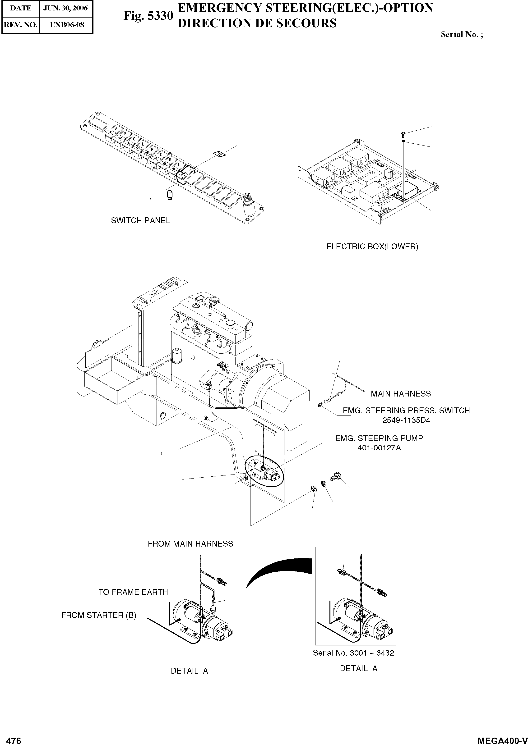
Запчасти Doosan Daewoo EMERGENCY STEERING(ELEC.)-OPTION OPTION PARTS

1A
4
2
5
1
3
12
7
13
8
9
11
10
6
14
FIT
1:1
100%

Артикул

Название

Примечание

Количество

-

500-00349

EMERGENCY STEERING-ELEC

SC: D

-2шт.

1

2549-9110

SWITCH;EMG.STEERING

desc: INTERRUPTEUR

1шт.

1A

K9000353

LAMP;PILOT

desc: . LAMPE

1шт.

2

2190-2036D21

INSERT;EMG.STEERING

desc: INSERTION

1шт.

3

537-00039A

TIMER;EMG.STEERING

SERIAL: 3001-3432

1шт.

3

537-00039B

TIMER;EMG.STEERING

SERIAL: 3433

1шт.

4

S3450973

SCREW M6X1.0X16

desc: VIS

2шт.

5

S5102303

WASHER;SPRING

desc: RONDELLE ELASTIQUE

2шт.

6

2527-1027

LINK;FUSIBLE

SERIAL: 3001-3432

1шт.

7

2553-1275D34

CABLE;STARTER-PUMP

desc: CABLE BATTERIE A BATTERIE

1шт.

8

2553-1275D22

CABLE;PUMP-EARTH

desc: CABLE BATTERIE A BATTERIE

1шт.

9

S0511653

BOLT M10X1.5X16

desc: BOULON A 6 PANS

1шт.

10

S5102603

WASHER;SPRING

desc: RONDELLE ELASTIQUE

1шт.

11

S5010613

WASHER;PLAIN

desc: RONDELLE PLATE

1шт.

12

2530-1400

HARNESS;PRESS SWITCH

desc: FAISCEAU

1шт.

13

S987031H

CAP;RUBBER

desc: CHAPEAU DE CAOUTCHOUC

1шт.

14

530-00067

HARNESS;PRESS SWITCH

SERIAL: 3433

1шт.

Выбрано товаров: 17