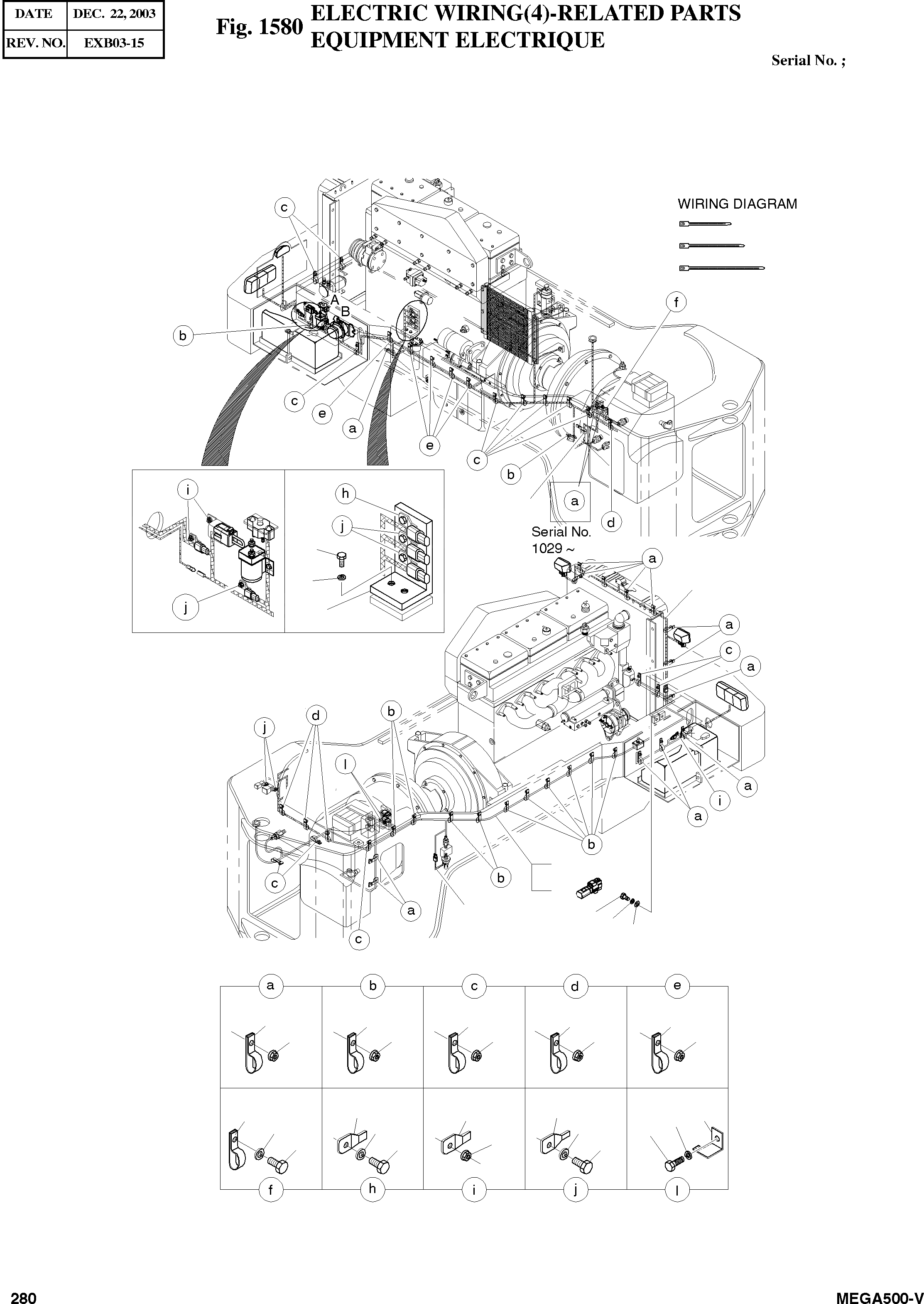
Запчасти Doosan Daewoo ELECTRIC WIRING(4)-RELATED PARTS BODY PARTS

29
28
26
7
30
35
31
35
32
35
24
35
27
28
24
27
28
30
25
28
27
22
23
21
35
34
35
33
20
19
18
2A
2
6
31
1
36
37
38
FIT
1:1
100%

Артикул

Название

Примечание

Количество

-

500-00014

ELECTRIC WIRING

SC: D

-2шт.

1

599-00004A

DIAGRAM;WIRING

SERIAL: 1001-1010

1шт.

1

599-00004B

DIAGRAM;WIRING

SERIAL: 1011-1028

1шт.

1

599-00004E

DIAGRAM;WIRING

SERIAL: 1029

1шт.

2

530-00023A

HARNESS;MAIN

SERIAL: 1001-1010

1шт.

2

530-00023B

HARNESS;MAIN

SERIAL: 1011-1014

1шт.

2

530-00023C

HARNESS;MAIN

SERIAL: 1015-1028

1шт.

2

530-00023E

HARNESS;MAIN

SERIAL: 1029

1шт.

2A

2548-1027

DIODE ASS'Y

desc: . DIODE

8шт.

6

530-00027

HARNESS;REAR LAMP/BACK BUZZER

desc: FAISCEAU

1шт.

7

530-00067

HARNESS;STOP LAMP

desc: FAISCEAU

1шт.

18

S0511653

BOLT M10X1.5X16

desc: BOULON A 6 PANS M10X1.5X16

1шт.

19

S5102603

WASHER;SPRING M10

desc: RONDELLE ELASTIQUE M10

1шт.

20

S5010613

WASHER;PLAIN M10

desc: RONDELLE

1шт.

21

2195-3500

BRACKET;HOUSING

desc: SUPPORT

3шт.

22

S0504453

BOLT M6X1.0X12

desc: BOULON A 6 PANS

3шт.

23

S5102303

WASHER;SPRING M6

desc: RONDELLE ELASTIQUE M6

3шт.

24

2197-1660

BRACKET;HOUSING

desc: SUPPORT

4шт.

25

2197-1661

BRACKET;HOUSING

desc: SUPPORT

6шт.

26

4197-2051

BRACKET;CONNECTOR

desc: SUPPORT

1шт.

27

S0508653

BOLT M8X1.25X16

desc: BOULON A 6 PANS

8шт.

28

S5102503

WASHER;SPRING M8

desc: RONDELLE ELASTIQUE M8

10шт.

29

S0508853

BOLT M8X1.25X20

desc: BOULON A 6 PANS

2шт.

30

2124-1509D1

CLIP D12XM8

SERIAL: 1001-1010

14шт.

30

2124-1509D1

CLIP D12XM8

SERIAL: 1011-1028

15шт.

30

2124-1509D1

CLIP D12XM8

SERIAL: 1029

17шт.

31

2124-1509D2

CLIP D18XM8

desc: ATTACHE

12шт.

32

2124-1509D3

CLIP D24XM8

desc: ATTACHE

13шт.

33

2124-1509D4

CLIP D30XM8

desc: ATTACHE

4шт.

34

2124-1509D5

CLIP D36XM8

desc: ATTACHE DE TUYAU

5шт.

35

2121-1305

NUT M8X1.25

SERIAL: 1001-1010

50шт.

35

2121-1305

NUT M8X1.25

SERIAL: 1011-1028

51шт.

35

2121-1305

NUT M8X1.25

SERIAL: 1029

53шт.

36

2124-1622D1

CLIP;BAND 150L

desc: ATTACHE

10шт.

37

2124-1622D2

CLIP;BAND 200L

desc: ATTACHE

30шт.

38

2124-1622D3

CLIP;BAND 280L

desc: ATTACHE

10шт.

Выбрано товаров: 36