Запчасти Doosan Daewoo CONTROL SYSTEM(3) BODY PARTS

17
141
19
29
142
28
18
216
176
216
29
177
19
28
27
18
26
30
31
32
24
23
22
58
55
21
56
47
58
25
57
21
54
44
20
59
42
60
17
43
15
16
43
40
46
45
50
6
41
15
52
49
7
48
8
12
52
14
5
51
11
39
13
36
53
10
41
37
33
37
1
61
38
62
63
2
3
4
34
2
5
35
3
4
9
8
7
6
FIT
1:1
100%

Артикул

Название

Примечание

Количество

-

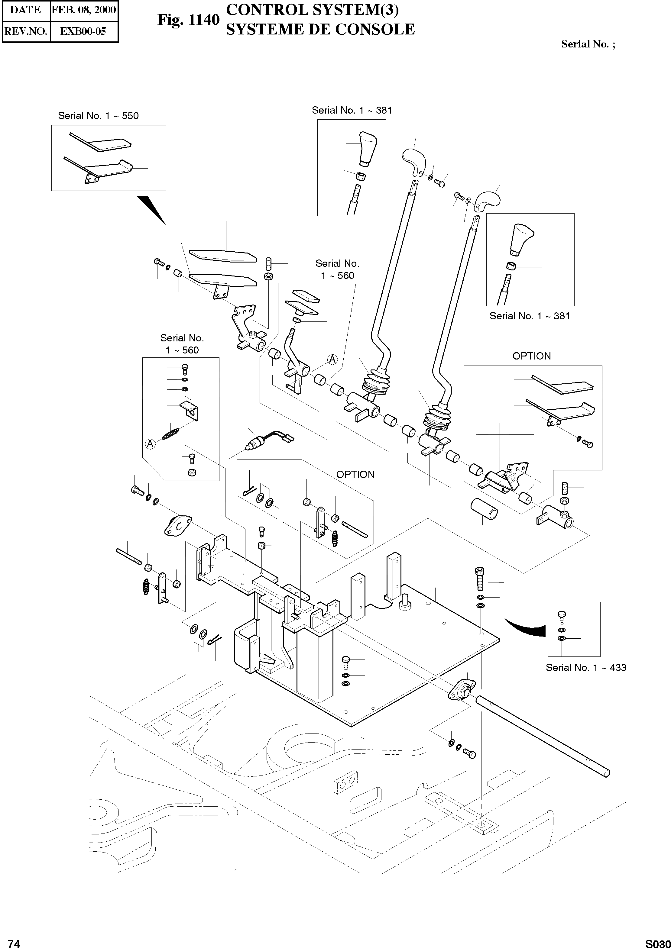
2133-7045

CONTROL LEVER

SC: D

-2шт.

1

2420-1197

VALVE MOUNT ASS'Y

SERIAL: 1-168

1шт.

1

2420-1197B

VALVE MOUNT ASS'Y

SERIAL: 169-427

1шт.

1

2197-2437A

VALVE MOUNT ASS'Y

SERIAL: 428-433

1шт.

1

2197-2437B

VALVE MOUNT ASS'Y

SERIAL: 434-560

1шт.

1

2197-2437C

VALVE MOUNT ASS'Y

SERIAL: 561

1шт.

2

S0512053

BOLT M10X1.5X25

SERIAL: 1-433

4шт.

2

S0512053

BOLT M10X1.5X25

SERIAL: 434

3шт.

3

S5102603

WASHER;SPRING M10

SERIAL: 1-433

4шт.

3

S5102603

WASHER;SPRING M10

SERIAL: 434

3шт.

4

S5010613

WASHER;PLAIN M10

SERIAL: 1-433

4шт.

4

S5010613

WASHER;PLAIN M10

SERIAL: 434

3шт.

5

30640-60006

UNIT;PILLOW

desc: UNITE

2шт.

6

S0509053

BOLT M8X1.25X25

desc: BOULON A 6 PANS

4шт.

7

S5102503

WASHER;SPRING M8

desc: RONDELLE ELASTIQUE

4шт.

8

S5010513

WASHER;PLAIN M8

desc: RONDELLE PLATE

4шт.

9

2112-1220A

SHAFT

desc: ARBRE

1шт.

10

2137-1174

LINK

desc: ARTICULATION

1шт.

11

S4012633

NUT M10X1.5

desc: ECROU HEXAGONAL

1шт.

12

S3524901

SCREW;SET

desc: VIS DE REGLAGE

1шт.

13

2114-1748

COLLAR

desc: COLLIER

1шт.

14

2133-1979A

LEVER;DRIVE(L.H)

SERIAL: 1-381

1шт.

14

2133-1979B

LEVER;DRIVE(L.H)

SERIAL: 382

1шт.

15

2110-1184D38

BUSH 23/20-20L

desc: . COUSSINET

2шт.

16

2133-1980A

LEVER;DRIVE(R.H)

SERIAL: 1-381

1шт.

16

2133-1980B

LEVER;DRIVE(R.H)

SERIAL: 382

1шт.

17

2110-1184D38

BUSH 23/20-20L

desc: . COUSSINET

2шт.

18

S4032833

NUT M14X1.5

SERIAL: 1-381

2шт.

19

41301-01610

GRIP

SERIAL: 1-381

2шт.

20

2137-1175A

LINK;OVER DRIVE

SERIAL: 1-560

1шт.

21

2110-1184D38

BUSH 23/20-20L

desc: . COUSSINET

2шт.

22

S4012633

NUT M10X1.5

SERIAL: 1-560

1шт.

23

2134-1133

PEDAL

SERIAL: 1-560

1шт.

24

41121-00022

RUBBER

SERIAL: 1-455

1шт.

24

512-00002

RUBBER

SERIAL: 456-560

1шт.

25

2137-1176

LINK;SWING

SERIAL: 1-560

1шт.

25

2137-1176A

LINK;SWING

SERIAL: 561

1шт.

26

S4012633

NUT M10X1.5

desc: ECROU HEXAGONAL

1шт.

27

S3524901

SCREW;SET

desc: VIS DE REGLAGE

1шт.

28

2134-1131

PEDAL

SERIAL: 1-550

1шт.

28

2134-1131A

PEDAL

SERIAL: 551

1шт.

29

2166-1006

NONSLIP

SERIAL: 1-550

1шт.

29

2166-1006A

NONSLIP

SERIAL: 551

1шт.

30

S0509053

BOLT M8X1.25X25

desc: BOULON A 6 PANS

2шт.

31

S5102503

WASHER;SPRING M8

desc: RONDELLE ELASTIQUE

2шт.

32

2114-1749

COLLAR

desc: COLLIER

2шт.

33

2137-1177

LINK;STOPPER

desc: ARTICULATION

1шт.

34

S5010513

WASHER;PLAIN M8

desc: RONDELLE PLATE

2шт.

35

S5735241

PIN;SPLIT

desc: GOUPILLE FENDUE

1шт.

36

2123-2124

PIN

desc: BROCHE

1шт.

37

S4012533

NUT M8X1.25

desc: ECROU HEXAGONAL

2шт.

38

2129-1426

SPRING

desc: RESSORT

1шт.

39

S0508853

BOLT M8X1.25X20

SERIAL: 1-48

8шт.

39

S0509053

BOLT M8X1.25X25

SERIAL: 49

8шт.

40

S0509053

BOLT M8X1.25X25

SERIAL: 1-560

1шт.

41

S4012533

NUT M8X1.25

SERIAL: 1-560

9шт.

41

S4012533

NUT M8X1.25

SERIAL: 561

8шт.

42

2137-1178

LINK

desc: ARTICULATION

1шт.

43

2110-1184D38

BUSH 23/20-20L

desc: . COUSSINET

2шт.

44

2134-1131

PEDAL

desc: PEDALE

1шт.

45

S0508653

BOLT M8X1.25X16

SERIAL: 1-48

2шт.

45

S0509053

BOLT M8X1.25X25

SERIAL: 49

2шт.

46

S5102503

WASHER;SPRING M8

desc: RONDELLE ELASTIQUE

2шт.

47

2166-1006

NONSLIP

desc: NONSLIP

1шт.

48

2137-1177

LINK STOPPER

desc: ARTICULATION

1шт.

49

S5010513

WASHER;PLAIN M8

desc: RONDELLE PLATE

2шт.

50

S5735241

PIN;SPLIT

desc: GOUPILLE FENDUE

1шт.

51

2123-2124

PIN

desc: BROCHE

1шт.

52

S4012533

NUT M8X1.25

desc: ECROU HEXAGONAL

2шт.

53

2129-1426

SPRING

desc: RESSORT

1шт.

54

2159-1158

PLATE

SERIAL: 1-560

1шт.

55

S0504853

BOLT M6X1.0X20

SERIAL: 1-560

2шт.

56

S5102303

WASHER;SPRING M6

SERIAL: 1-560

2шт.

57

S5010313

WASHER;PLAIN M6

SERIAL: 1-560

2шт.

58

822-00080

BOOTS

desc: BOOTS

2шт.

59

2129-1426

SPRING

SERIAL: 1-560

2шт.

60

6549-1002

SWITCH

desc: INTERRUPTEUR

1шт.

61

S2212061

BOLT;SOCKET M10X1.5X25

SERIAL: 434

1шт.

62

S5110601

WASHER;SPRING

SERIAL: 434

1шт.

63

S5010613

WASHER;PLAIN

SERIAL: 434

1шт.

141

2132-1134B

GRIP;LEVER(R.H)

SERIAL: 382

1шт.

142

S5000113

WASHER;PLAIN M4

SERIAL: 382

1шт.

176

2132-1133B

GRIP;LEVER(L.H)

SERIAL: 382

1шт.

177

S5000113

WASHER;PLAIN M4

SERIAL: 382

1шт.

216

S3450573

SCREW;PAN HEAD M4X0.7X10

SERIAL: 382

2шт.

Выбрано товаров: 85