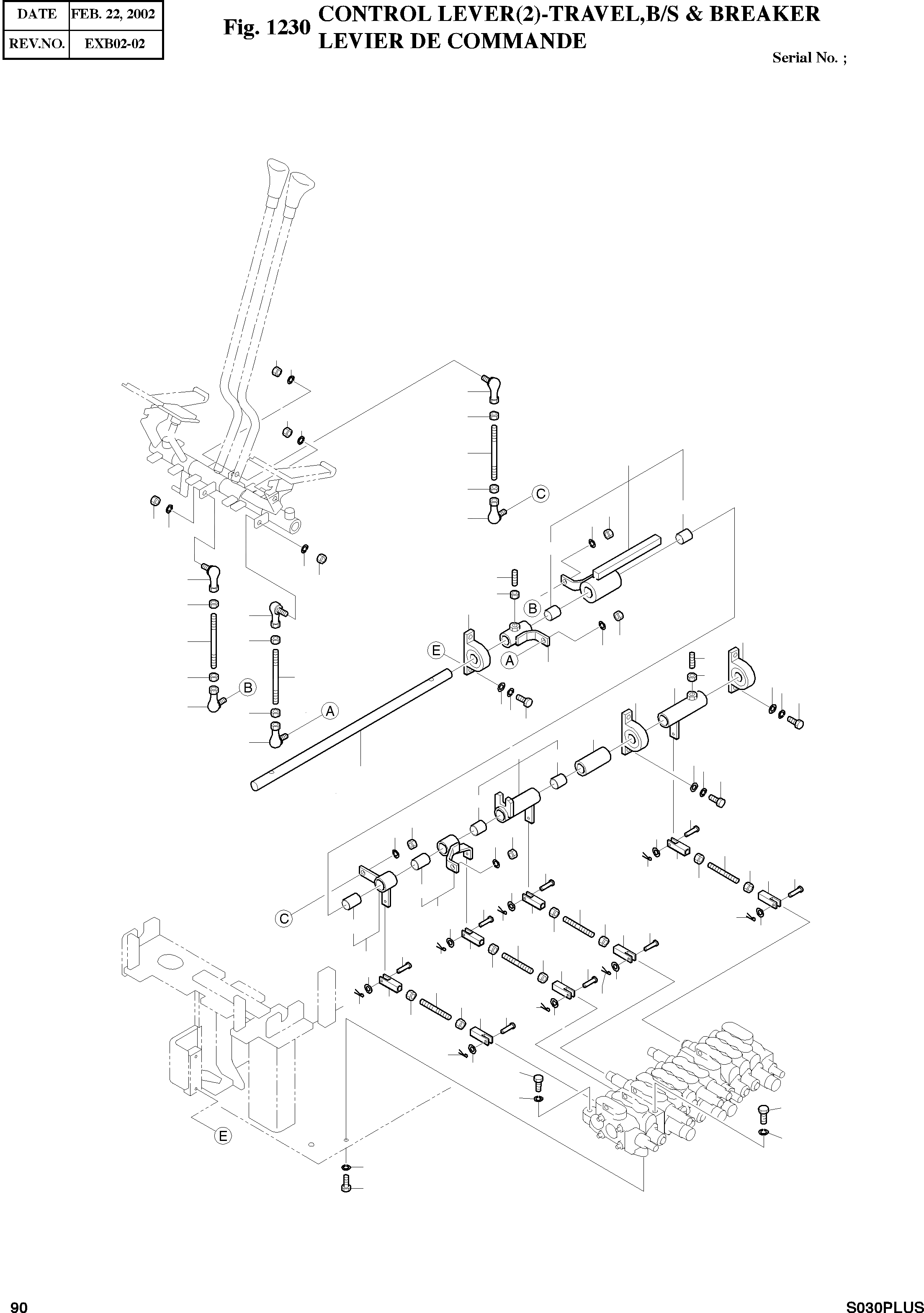
Запчасти Doosan Daewoo CONTROL LEVER(2)-TRAVEL.B/S & BREAKER UPPER STRUCTURE

34
35
30
29
35
34
36
37
37
36
28
31
32
33
35
34
33
11
12
14
13
34
35
30
29
35
34
33
32
31
29
28
30
35
33
34
33
28
31
32
33
35
34
27
26
16
27
42
1
15
16
17
2
26
27
6
3
4
5
2
7
8
10
27
26
9
24
25
21
23
22
27
27
26
26
26
27
22
23
21
25
24
24
25
23
22
21
26
27
10
2
5
4
3
20
19
18
4
5
3
33
30
29
28
31
32
33
34
35
43
44
FIT
1:1
100%

Артикул

Название

Примечание

Количество

-

2133-2117

LEVER ASS'Y

SC: D

-2шт.

1

2112-1221A

SHAFT

desc: ARBRE

1шт.

2

30640-60005

UNIT;PILLOW

desc: UNITE

3шт.

3

S0509053

BOLT M8X1.25X25

desc: BOULON A 6 PANS

6шт.

4

S5102503

WASHER;SPRING M8

desc: RONDELLE ELASTIQUE

6шт.

5

S5010513

WASHER M8

desc: RONDELLE PLATE

6шт.

6

2137-1180A

LINK;DRIVE

desc: ARTICULATION

1шт.

7

S4012633

NUT

desc: ECROU

1шт.

8

S3524901

SCREW;SET

desc: VIS DE REGLAGE

1шт.

9

2137-1181B

LINK

desc: ARTICULATION

1шт.

10

2110-1184D38

BUSH

desc: COUSSINET

2шт.

11

2137-1199A

LINK;DRIVE

desc: ARTICULATION

1шт.

12

2110-1184D40

BUSH

desc: COUSSINET

2шт.

13

137-00001A

LINK;PTO

desc: ARTICULATION

1шт.

14

2110-1184D38

BUSH

desc: COUSSINET

2шт.

15

2137-1200A

LINK

desc: ARTICULATION

1шт.

16

2110-1184D38

BUSH

desc: COUSSINET

2шт.

17

2114-1750A

COLLAR

desc: COLLIER

1шт.

18

2137-1201A

LINK

desc: ARTICULATION

1шт.

19

S4012633

NUT

desc: ECROU

1шт.

20

S3524901

SCREW;SET

desc: VIS DE REGLAGE

1шт.

21

2136-1419

ROD(E)

SERIAL: 1001-1054

3шт.

21

2136-1419A

ROD(E)

SERIAL: 1055

3шт.

22

2138-9018

BALL;LINK(L.H)

desc: BILLE

3шт.

23

2121-1298

NUT(L.H)

desc: ECROU

3шт.

24

2138-9017

BALL;LINK

desc: BILLE

3шт.

25

S4012633

NUT

desc: ECROU

3шт.

26

S4012633

NUT

desc: ECROU

6шт.

27

S5102603

WASHER;SPRING

desc: RONDELLE ELASTIQUE

6шт.

28

2136-1448

ROD

SERIAL: 1001-1054

4шт.

28

2136-1448A

ROD

SERIAL: 1055

4шт.

29

2121-1298

NUT(L.H)

desc: ECROU

4шт.

30

2138-1032

END;ROD(L.H)

desc: BOUCHON

4шт.

31

S4012633

NUT

desc: ECROU

4шт.

32

2138-1033

END;ROD(R.H)

desc: BOUCHON

4шт.

33

2123-2093

PIN;CLEVIS

desc: BROCHE

8шт.

34

S5000213

WASHER

desc: RONDELLE PLATE

8шт.

35

S5735051

PIN;SPLIT

desc: GOUPILLE FENDUE

8шт.

36

S0509253

BOLT M8X1.25X30

desc: BOULON A 6 PANS

2шт.

37

S5102503

WASHER;SPRING

desc: RONDELLE ELASTIQUE

2шт.

43

S2213461

BOLT M10X1.5X105

desc: BOULON A 6 PANS CREUX

1шт.

44

S5110601

WASHER;SPRING M10

desc: RONDELLE ELASTIQUE

1шт.

Выбрано товаров: 42