Запчасти Doosan Daewoo CONTROL SYSTEM(4) BODY PARTS

42
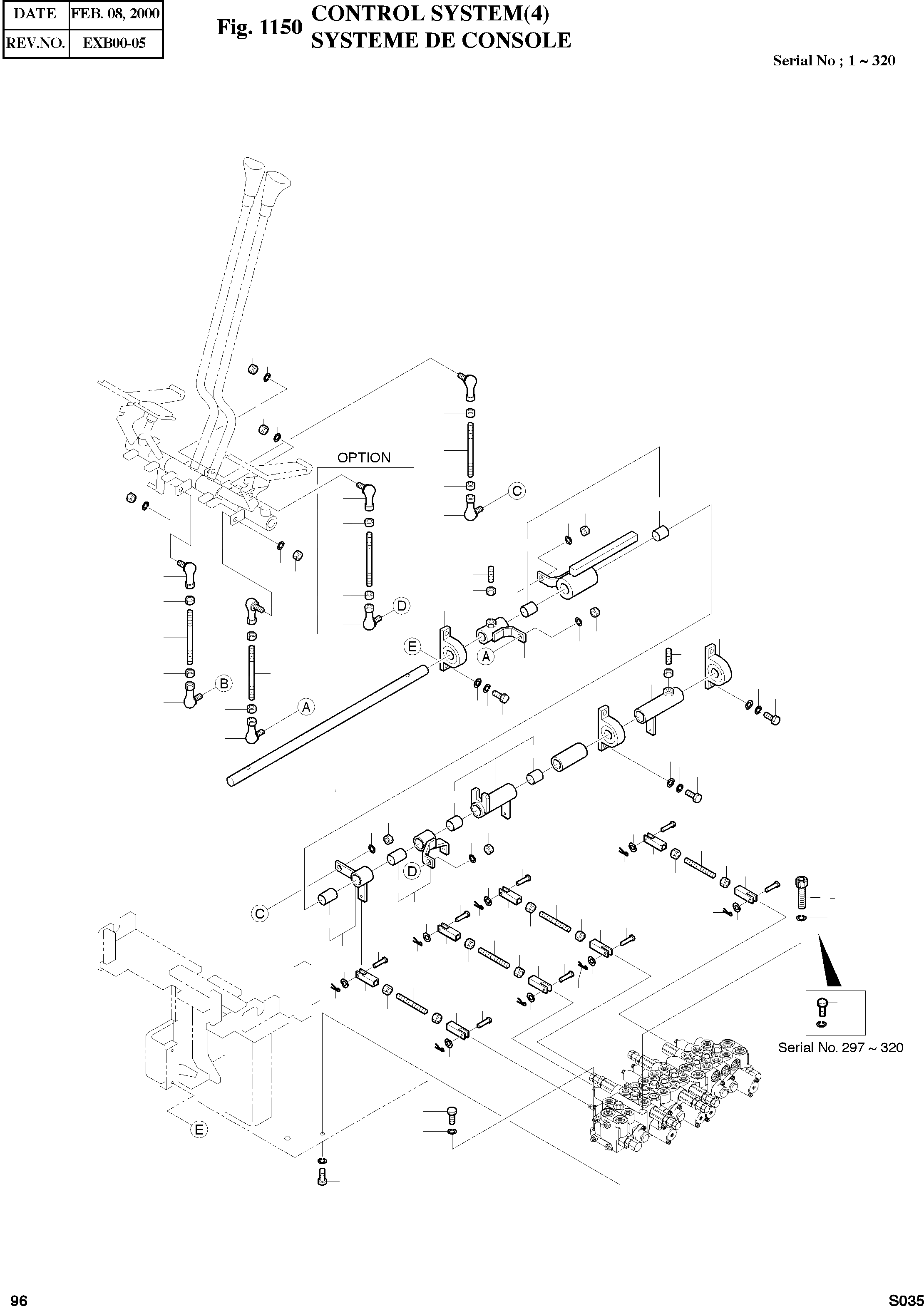
1
26
27
22
27
21
23
41
9
21
25
21
16
39
26
24
15
27
14
26
40
27
38
27
8
22
26
7
42
23
2
22
2
23
13
26
27
20
10
6
25
5
4
3
2
24
5
25
4
18
3
24
16
5
4
3
12
11
33
26
27
42
34
27
17
28
30
33
33
32
35
29
34
43
31
28
33
35
35
30
34
44
33
32
35
34
29
28
31
33
30
35
33
31
32
34
10
29
34
28
31
35
19
30
33
43
35
32
29
34
44
35
34
36
37
37
36
FIT
1:1
100%

Артикул

Название

Примечание

Количество

-

2133-7043

CONTROL LEVER

SERIAL: 1-320

-1шт.

1

2112-1221

SHAFT

SERIAL: 1-8

1шт.

1

2112-1221A

SHAFT

SERIAL: 9

1шт.

2

30640-60005

UNIT;PILLOW

desc: UNITE

3шт.

3

S0509053

BOLT M8X1.25X25

desc: BOULON A 6 PANS

6шт.

4

S5102503

WASHER;SPRING M8

desc: RONDELLE ELASTIQUE

6шт.

5

S5010513

WASHER;PLAIN M8

desc: RONDELLE PLATE

6шт.

6

2137-1180A

LINK;DRIVE

desc: ARTICULATION

1шт.

7

S4012633

NUT M10X1.5

desc: ECROU

1шт.

8

S3524901

SCREW;SET

desc: VIS DE REGLAGE

1шт.

9

2137-1181A

LINK

SERIAL: 1-168

1шт.

9

2137-1181B

LINK

SERIAL: 169

1шт.

10

2110-1184D38

BUSH 23/20-20L

desc: COUSSINET

2шт.

11

2137-1182A

LINK;DRIVE

SERIAL: 1-296

1шт.

11

2137-1199A

LINK

SERIAL: 297

1шт.

12

2110-1184D40

BUSH

desc: COUSSINET

2шт.

13

2137-1183A

LINK;PTO

SERIAL: 1-320

1шт.

13

137-00001

LINK;PTO

SERIAL: 321

1шт.

14

2110-1184D38

BUSH 23/20-20L

desc: COUSSINET

2шт.

15

2137-1184A

LINK

SERIAL: 1-296

1шт.

15

2137-1200A

LINK

SERIAL: 297

1шт.

16

2110-1184D38

BUSH 23/20-20L

desc: COUSSINET

2шт.

17

2114-1750A

COLLAR

desc: COLLIER

1шт.

18

2137-1185A

LINK

SERIAL: 1-296

1шт.

18

2137-1201A

LINK

SERIAL: 297

1шт.

19

S4012633

NUT M10X1.5

desc: ECROU

1шт.

20

S3524901

SCREW;SET

desc: VIS DE REGLAGE

1шт.

21

2136-1419

ROD(E)

desc: TIGE

3шт.

22

30621-61020

BALL;LINK(L.H)

SERIAL: 1-285

3шт.

22

2138-9018

BALL;LINK(L.H)

SERIAL: 286

3шт.

23

2121-1298

NUT(L.H) M10X1.5

desc: ECROU

3шт.

24

30621-61010

BALL;LINK

SERIAL: 1-285

3шт.

24

2138-9017

BALL;LINK

SERIAL: 286

3шт.

25

S4012633

NUT M10X1.5

desc: ECROU

3шт.

26

S4012633

NUT M10X1.5

desc: ECROU

6шт.

27

S5102603

WASHER;SPRING M10

desc: RONDELLE ELASTIQUE

6шт.

28

2136-1426

ROD

SERIAL: 1-296

4шт.

28

2136-1448

ROD

SERIAL: 297

4шт.

29

2121-1298

NUT(L.H) M10X1.5

desc: ECROU

4шт.

30

2138-1025

END;ROD(L.H)

SERIAL: 1-296

4шт.

30

2138-1032

END;ROD(L.H)

SERIAL: 297

4шт.

31

S4012633

NUT M10X1.5

desc: ECROU

4шт.

32

2138-1026

END;ROD(L.H)

SERIAL: 1-296

4шт.

32

2138-1033

END;ROD(L.H)

SERIAL: 297

4шт.

33

2123-2093

PIN;CLEVIS

desc: BROCHE

8шт.

34

S5000213

WASHER;PLAIN M5

desc: RONDELLE PLATE

8шт.

35

S5735051

PIN;SPLIT

desc: GOUPILLE FENDUE

8шт.

36

S0509253

BOLT M8X1.25X30

desc: BOULON A 6 PANS

4шт.

36

S0509053

BOLT M8X1.25X25

desc: BOULON A 6 PANS

4шт.

36

S0509253

BOLT M8X1.25X30

SERIAL: 297

2шт.

37

S5102503

WASHER;SPRING M8

SERIAL: 1-296

4шт.

37

S5102503

WASHER;SPRING M8

SERIAL: 297

2шт.

38

2136-1419

ROD(E)

desc: TIGE

1шт.

39

30621-61020

BALL;LINK(L.H)

SERIAL: 1-285

1шт.

39

2138-9018

BALL;LINK(L.H)

SERIAL: 286

1шт.

40

2121-1298

NUT(L.H) M10X1.5

desc: ECROU

1шт.

41

30621-61010

BALL;LINK

SERIAL: 1-285

1шт.

41

2138-9017

BALL;LINK

SERIAL: 286

1шт.

42

S4012633

NUT M10X1.5

desc: ECROU

3шт.

43

S0559653

BOLT M10X105

SERIAL: 297-320

1шт.

43

S2213461

BOLT;SOCKET M10X1.5X90

SERIAL: 321

1шт.

44

S5102603

WASHER;SPRING M10

SERIAL: 297-320

1шт.

44

S5110601

WASHER;SPRING M10

SERIAL: 321

1шт.

Выбрано товаров: 63