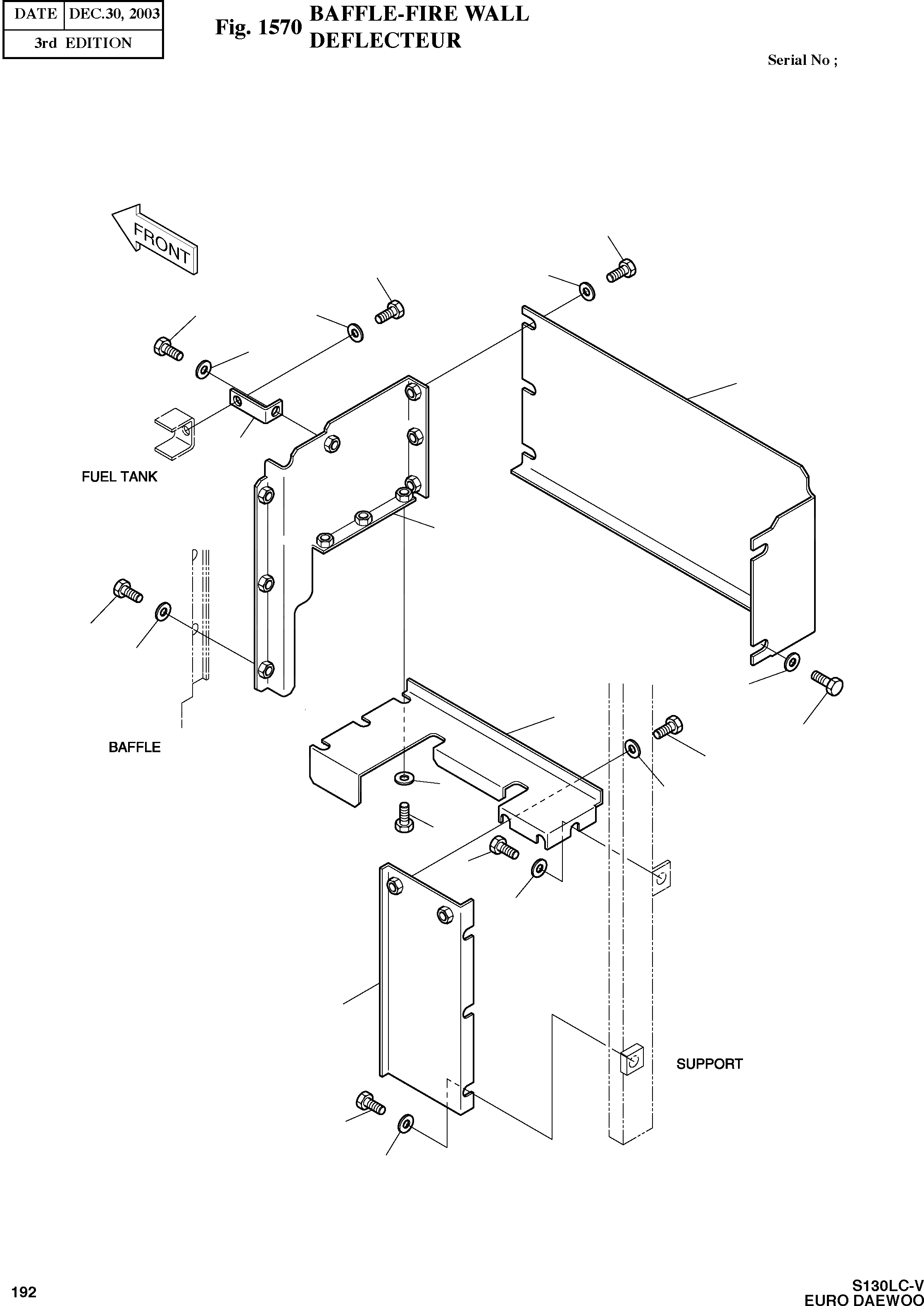
Запчасти Doosan Daewoo BAFFLE-FIRE WALL BODY PARTS

8
8
9
9
8
9
7
14
4
8
9
9
5
8
8
9
9
8
8
9
6
8
9
FIT
1:1
100%

Артикул

Название

Примечание

Количество

-

2627-1148

BAFFLE ASS'Y

SC: D

-2шт.

4

2621-3636A

COVER

SERIAL: 1-50280

1шт.

4

2621-3636C

COVER

SERIAL: 50281

1шт.

5

2621-3637A

COVER

desc: COUVERCLE

1шт.

6

2621-3638A

COVER

desc: COUVERCLE

1шт.

7

2621-3639A

COVER

SERIAL: 1-50280

1шт.

7

2621-3639B

COVER

SERIAL: 50281

1шт.

8

S0511853

BOLT M10X1.5X20

desc: BOULON A 6 PANS

19шт.

9

2114-1058D10

WASHER

desc: RONDELLE

19шт.

14

2891-1398

PLATE

desc: PLAQUE

1шт.

Выбрано товаров: 10