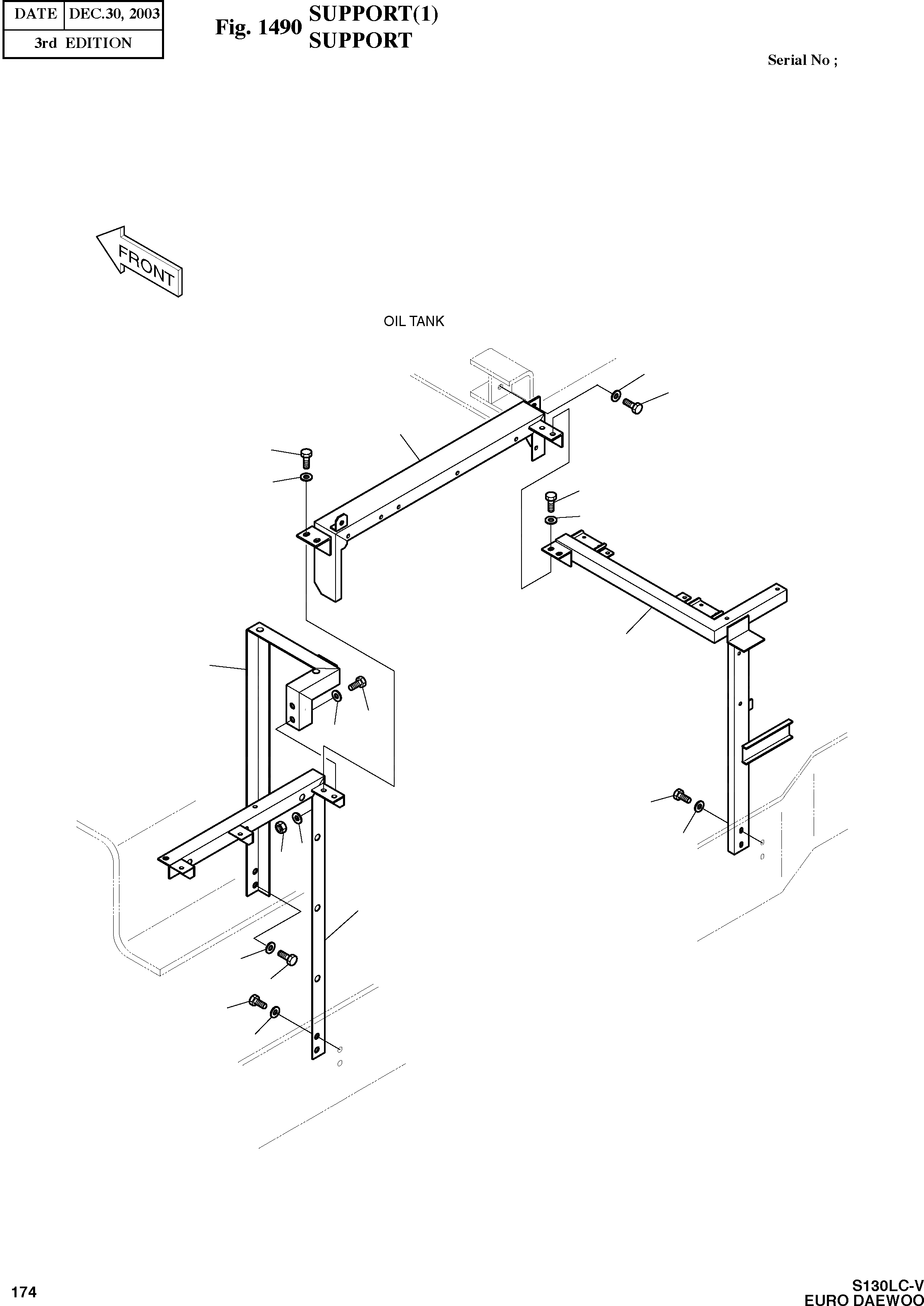
Запчасти Doosan Daewoo SUPPORT(1) BODY PARTS

6
5
2
5
6
5
6
1
4
5
6
5
6
6
7
3
6
5
5
6
FIT
1:1
100%

Артикул

Название

Примечание

Количество

-

2197-1567A

SUPPORT ASS'Y

SC: D

-2шт.

1

2197-1561A

SUPPORT

desc: SUPPORT

1шт.

2

2197-1511A

SUPPORT

desc: SUPPORT

1шт.

3

2197-1443A

SUPPORT

desc: SUPPORT

1шт.

4

2197-1442B

SUPPORT

desc: SUPPORT

1шт.

5

S0515253

BOLT M12X1.75X30

desc: BOULON A 6 PANS

14шт.

6

2114-1058D30

WASHER

desc: RONDELLE

16шт.

7

S4012733

NUT M12X1.75

desc: ECROU

2шт.

Выбрано товаров: 8