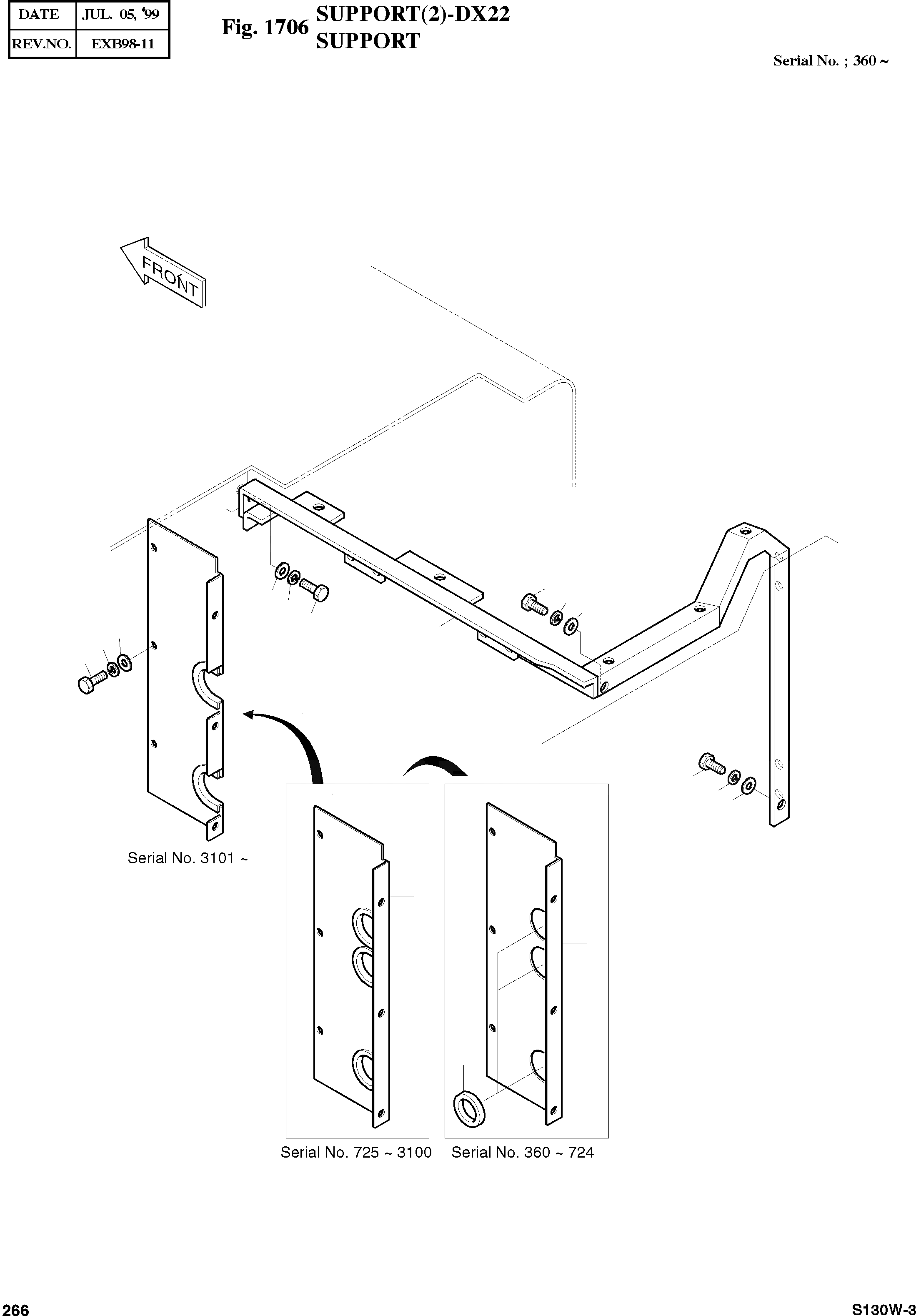
Запчасти Doosan Daewoo SUPPORT(2)-DX22 BODY PARTS

8
9
13
10
12
11
13
2
12
11
8
9
10
5
5
6
FIT
1:1
100%

Артикул

Название

Примечание

Количество

-

2191-3607A

SUPPORT ASS'Y

SERIAL: 360

1шт.

2

2191-3675A

SUPPORT

SERIAL: 645-1055

1шт.

2

2191-3675B

SUPPORT

SERIAL: 1056

1шт.

5

2621-3066A

COVER

SERIAL: 360-724

1шт.

5

REP_PNO: 2160-1004D30

-1шт.

5

2621-3066B

COVER

SERIAL: 725-1055

1шт.

5

2621-3066C

COVER

SERIAL: 1056-3100

1шт.

5

REP_PNO: 2191-3671C

-1шт.

5

2621-3066E

COVER

SERIAL: 3101

1шт.

6

2160-1004D15

BUSHING

SERIAL: 360-724

3шт.

6

REP_PNO: 2621-3066B

-1шт.

6

2160-1004D30

BUSHING

SERIAL: 725-1055

3шт.

8

S0515053

BOLT M12X1.75X25

desc: BOULON A 6 PANS

2шт.

9

S5102703

WASHER;SPRING M12

desc: RONDELLE ELASTIQUE

2шт.

10

S5010713

WASHER;PLAIN M12

desc: RONDELLE PLATE

2шт.

11

S0511853

BOLT M10X1.5X20

desc: BOULON A 6 PANS

4шт.

12

S5102603

WASHER;SPRING M10

desc: RONDELLE ELASTIQUE

4шт.

13

S5010613

WASHER;PLAIN M10

desc: RONDELLE PLATE

4шт.

Выбрано товаров: 18