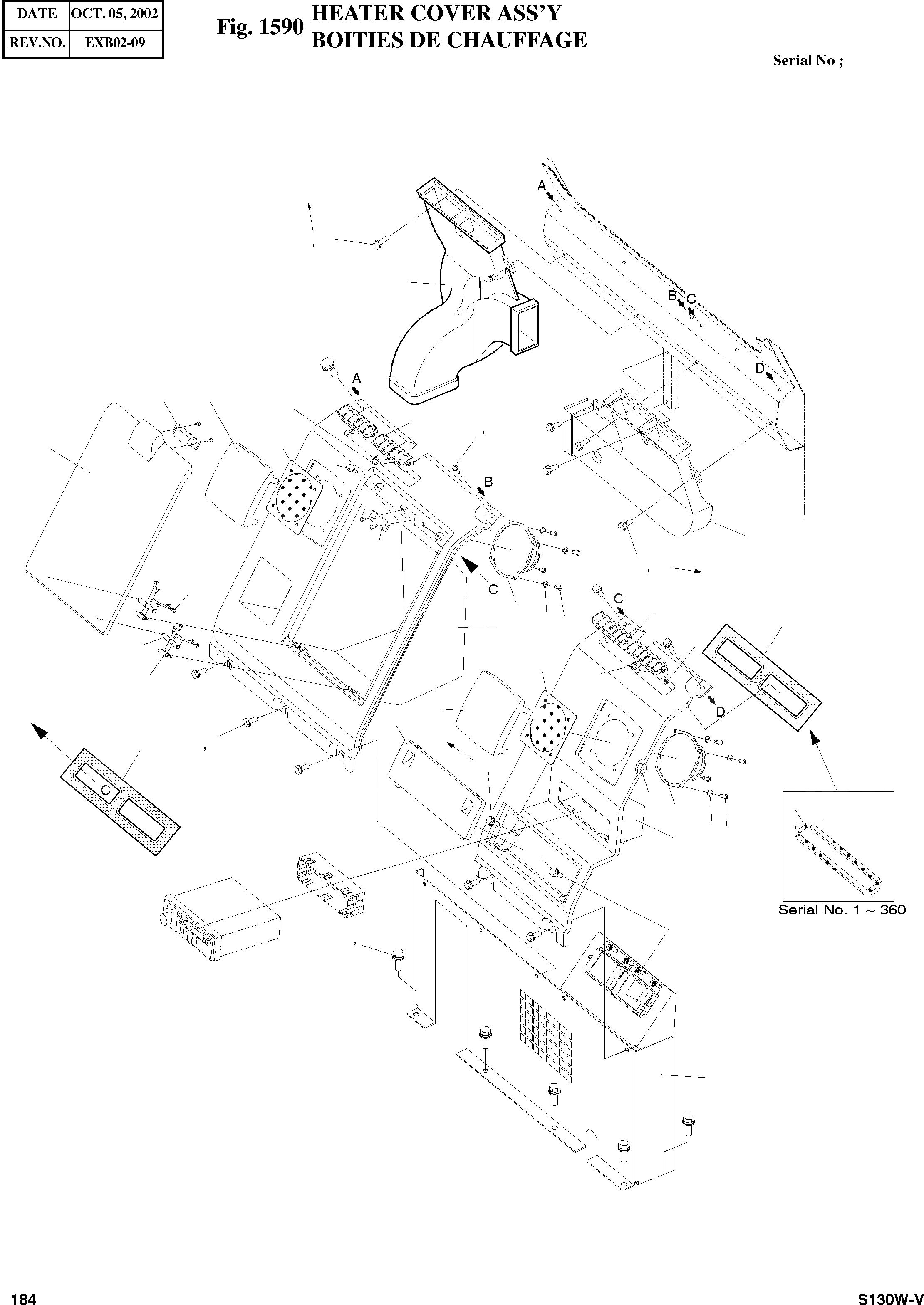
Запчасти Doosan Daewoo HEATER COVER ASSY BODY PARTS

29
27
24
15
7
19
10
28
9
24
15
11
3
6
16
8
19
24
15
27
16
9
17
25
29
18
1
21
12
11
28
13
10
5
4
27
25
24
15
24
15
22
25
26
17
2
27
18
23
14
5
FIT
1:1
100%

Артикул

Название

Примечание

Количество

-

2621-3878B

HEATER COVER ASS'Y

SERIAL: 1-600

-2шт.

-

2621-3878E

HEATER COVER ASS'Y

SERIAL: 601-1409

-2шт.

-

2621-3878G

HEATER COVER ASS'Y

SERIAL: 1410

-2шт.

1

2621-3771

HEATER COVER(RH)

SERIAL: 1-600

1шт.

1

2621-3771A

HEATER COVER(RH)

SERIAL: 601

1шт.

2

2621-3772

HEATER COVER(LH)

SERIAL: 1-600

1шт.

2

2621-3772A

HEATER COVER(LH)

SERIAL: 601

1шт.

3

2621-3773

LID;CENTER

SERIAL: 1-360

1шт.

3

2621-3773A

LID;CENTER

SERIAL: 361

1шт.

4

2621-3774A

LID;FUSE BOX

desc: COUVERCLE

1шт.

5

2920-1074A

HEATER COVER ASS'Y

SERIAL: 1-1409

1шт.

5

2920-1074B

HEATER COVER ASS'Y

SERIAL: 1410

1шт.

6

2116-1520

STOPPER;H/C LID

desc: TAQUET D'ARRET

2шт.

7

2213-1098A

DUCT;VENT(RH)

desc: COUVERCLE

1шт.

8

2213-1099A

DUCT;VENT(LH)

SERIAL: 1-600

1шт.

8

2213-1099B

DUCT;VENT(LH)

SERIAL: 601

1шт.

9

2415-1015

LOUVER;FACE & VENT

SERIAL: 1-360

4шт.

9

2415-1015A

LOUVER;FACE & VENT

SERIAL: 361

4шт.

10

2623-1252A

GRILL SPEAKER

desc: GARDE

2шт.

11

2197-1741A

BRACKET;SPEAKER

desc: SUPPORT

2шт.

12

2171-1084

HINGE

SERIAL: 1-360

2шт.

12

2171-1084A

HINGE

SERIAL: 361

2шт.

13

2121-1304

NUT;SPIRE

desc: ECROU

2шт.

14

2120-2166D5

BOLT M8X1.25X20

desc: BOULON A 6 PANS

5шт.

15

2120-2166D6

BOLT M6X1.0X16

SERIAL: 1-360

17шт.

15

2120-2166D6

BOLT M6X1.0X16

SERIAL: 361

11шт.

16

S3644163

SCREW;TAPPING M3

desc: VIS

12шт.

17

2541-9018

SPEAKER

SERIAL: 1-625

2шт.

17

2541-9020

SPEAKER

SERIAL: 626

2шт.

18

S3450373

SCREW M3X16

desc: VIS

8шт.

19

2125-1095

CATCH;MAGNETIC

SERIAL: 1-360

1шт.

19

2125-1095A

CATCH;MAGNETIC

SERIAL: 361

1шт.

21

2161-2290

SPONGE

SERIAL: 1-360

4шт.

22

2161-2289

RUBBER;CUSHION

desc: CAOUTCHOUC

2шт.

23

2114-1898D2

WASHER

desc: RONDELLE

5шт.

24

2114-1898D3

WASHER

SERIAL: 1-360

17шт.

24

2114-1898D5

WASHER

SERIAL: 361

9шт.

25

2161-2297

SPONGE

SERIAL: 1-360

4шт.

25

2161-2397

SPONGE

SERIAL: 361-600

1шт.

25

2161-2397

SPONGE

SERIAL: 601

2шт.

26

2161-2298

SPONGE

SERIAL: 1-360

4шт.

27

2120-2166D10

SCREW

SERIAL: 361

8шт.

28

2160-1329

BUSHING

SERIAL: 361

4шт.

29

S5000013

WASHER;PLAIN

SERIAL: 626

8шт.

Выбрано товаров: 44